Nous utilisons des témoins et d’autres technologies pour assurer le fonctionnement et la sécurité de nos services en ligne, et pour vous offrir une expérience personnalisée. En continuant à utiliser nos services en ligne, vous acceptez notre Politique de confidentialité et les conditions d’utilisation. Pour obtenir des informations sur la façon de régler vos paramètres de confidentialité, veuillez consulter notre Politique sur les témoins.
Masquer
Accueil BC Grand Vancouver Vancouver Oakridge
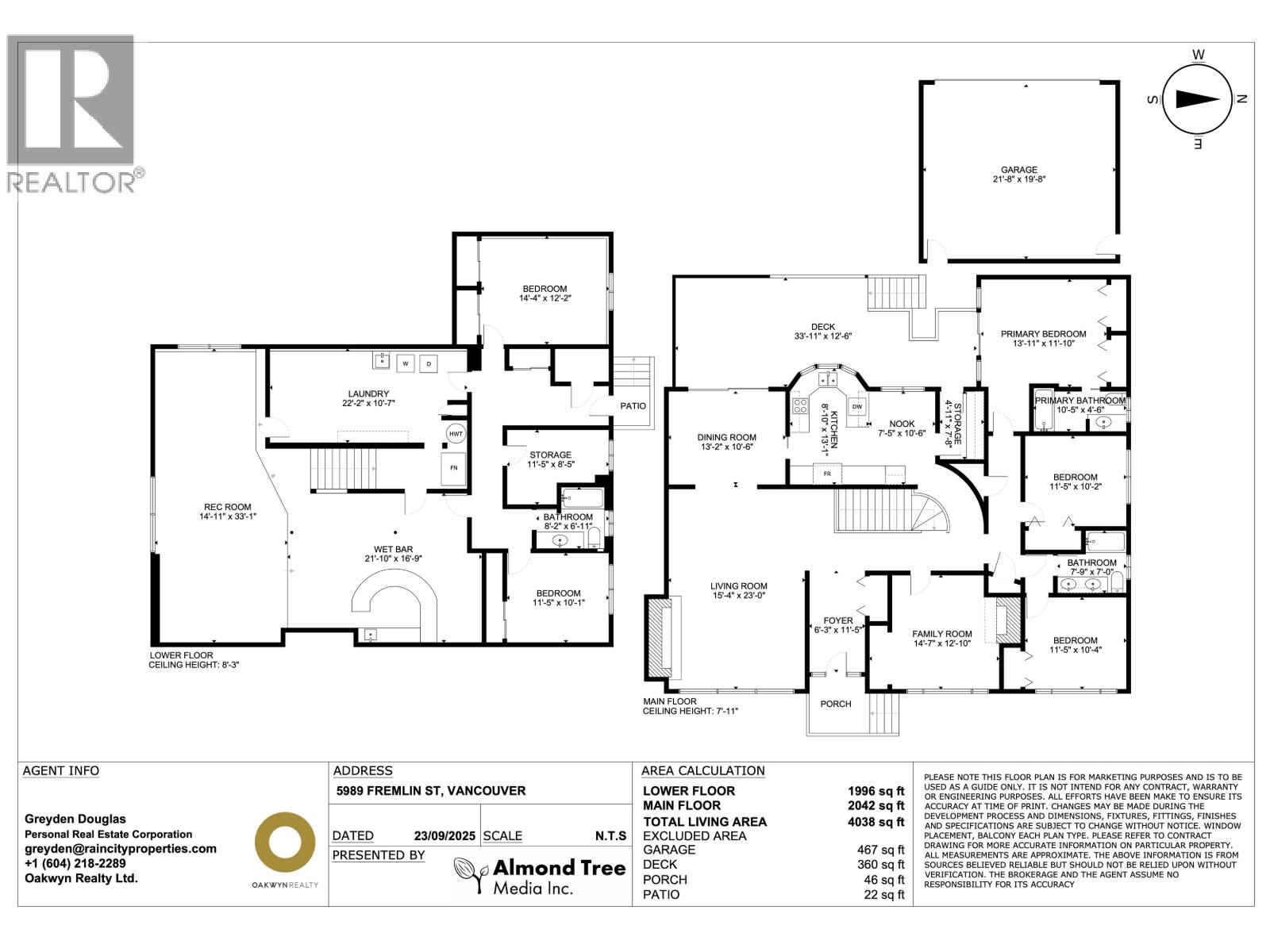
5989 FREMLIN STREET
Directions Imprimer
5989 FREMLIN STREET 2 999 900 $
Depuis 3 jours
2 999 900 $
Masquer
Favoris

5989 FREMLIN STREET
Vancouver, Colombie-Britannique V5Z3W8

Numéro MLS® : R3072843
5
Chambres
3
Salles de bain
4038
Pieds carrés

Résumé de la propriété

Type de propriété
Unifamiliale
Type de bâtiment
Unifamilial
Étages
1
Superficie
4038 pi2
Titre
Tenure franche
Superficie du terrain
7500 pi2
Date de construction
1962
Impôt foncier annuel
14 104,30 $
Type de stationnement
Garage (2)
Sur REALTOR.ca depuis
3 jours

Édifice

Salles de bain
Total
3
Caractéristiques intérieures
Caractéristiques du sous-sol
Inconnu
Type de sous-sol
Inconnu (Aménagé)
Caractéristiques du bâtiment
Caractéristiques
Site central
Style
Isolée
Style d'architecture
Bungalow
Chauffage et refroidissement
Foyer
1
Type de chauffage
(Gaz naturel)
Caractéristiques du quartier
Commodités à proximité
Terrain de golf, Loisirs, Centres commerciaux
Stationnement
Type de stationnement
Garage (2)
Nombre total d'espaces de stationnement
2

Mesures

Superficie
4038 pi2

Terrain

Caractéristiques du terrain
Façade
62 pi 6 po
Données fournies par : Greater Vancouver REALTORS®
Souhaitez-vous visiter cette propriété?
Demander une visite

Inscriptions semblables

Greyden Douglas