Nous utilisons des témoins et d’autres technologies pour assurer le fonctionnement et la sécurité de nos services en ligne, et pour vous offrir une expérience personnalisée. En continuant à utiliser nos services en ligne, vous acceptez notre Politique de confidentialité et les conditions d’utilisation. Pour obtenir des informations sur la façon de régler vos paramètres de confidentialité, veuillez consulter notre Politique sur les témoins.
Masquer
Accueil QC Grande région de Québec Québec Sainte-Foy-Sillery-Cap-Rouge Sillery
2401 Boul. Laurier
Directions Imprimer
2401 Boul. Laurier 849 000 $
849 000 $
Masquer
Favoris

2401 Boul. Laurier
Québec (Sainte-Foy/Sillery/Cap-Rouge), Québec G1T1C3

Numéro MLS® : 12292964
6
Chambres
3
Salles de bain
2328
Pieds carrés

Description de l’inscription

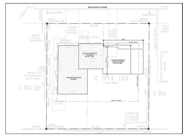
Sillery. Grand cottage utilisé en maison de chambres et pension (offrait 10 chambres, 2 cuisines et 4 salles de bain), cherche nouvelle vocation pour lui redonner son lustre d'antan. Vaste terrain plat sans voisin avant, rue tranquille à sens unique longeant le boulevard Laurier. Face à l'université. Emplacement cinq étoiles. Le plan avec triple garage suggère une idée réalisable et conforme en rénovant l'actuelle propriété. Opportunité incontournable. (41446757)

Résumé de la propriété

Type de propriété
Unifamiliale
Type de bâtiment
Unifamilial
Étages
2
Superficie
2328 pi2
Quartier
Sillery
Superficie du terrain
10399.99 pi2
Date de construction
1950
Type de stationnement
Autre
Sur REALTOR.ca depuis
47 jours

Édifice

Salles de bain
Total
3
Partielle
1
Caractéristiques du bâtiment
Caractéristiques
Allée non pavée
Type de fondation
Béton coulé
Style
Isolée
Services publics
Égouts
Égout municipal
Eau
Approvisionnement en eau par la municipalité
Caractéristiques extérieures
Style de toiture
Bardeaux d'asphalte
Revêtement extérieur
Aluminium, Bois, Brique
Caractéristiques du quartier
Commodités à proximité
Autoroute, Un cégep, Un hôpital, Parc, Écoles, Transport en commun, Université
Stationnement
Type de stationnement
Autre
Nombre total d'espaces de stationnement
4

Mesures

Superficie
2328 pi2

Pièces

MétriqueImpérial
Niveau principal
Autre
Autre
Cuisine
Cuisine
Salon
Salon
Salle à manger
Salle à manger
Salle de bains partielle
Salle de bain
Chambre principale
Chambre à coucher
Chambre à coucher
Deuxième niveau
Salle de bain
Chambre à coucher
Chambre à coucher
Chambre à coucher
Sous-sol
Salle familiale
Lieu de rangement
Salle de bain

Terrain

Autres informations sur la propriété
Type de Zonage
Résidentiel
Caractéristiques de la ferme
Type de ferme
Autre
Souhaitez-vous visiter cette propriété?
Demander une visite

Inscriptions semblables

Richard Caron