We use cookies and other technologies for functionality, security, and to provide you with a personalized experience on our online services. By continuing to use our online services, you agree to our Privacy Policy and Terms of Use. For information on how to adjust your privacy settings, visit our Cookie Policy.
Dismiss
Home QC Greater Québec City Québec Sainte-Foy-Sillery-Cap-Rouge Sillery
2401 Boul. Laurier
Directions Print
2401 Boul. Laurier $849,000
$849,000
Hide
Favourite

2401 Boul. Laurier
Québec (Sainte-Foy/Sillery/Cap-Rouge), Quebec G1T1C3

MLS® Number: 12292964
6
Bedrooms
3
Bathrooms
2328
Square Feet

Listing Description

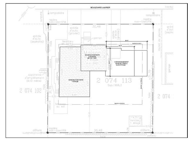
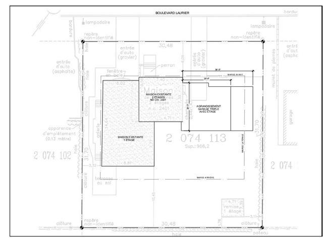
Sillery. Grand cottage utilisé en maison de chambres et pension (offrait 10 chambres, 2 cuisines et 4 salles de bain), cherche nouvelle vocation pour lui redonner son lustre d'antan. Vaste terrain plat sans voisin avant, rue tranquille à sens unique longeant le boulevard Laurier. Face à l'université. Emplacement cinq étoiles. Le plan avec triple garage suggère une idée réalisable et conforme en rénovant l'actuelle propriété. Opportunité incontournable. (41446757)

Property Summary

Property Type
Single Family
Building Type
House
Storeys
2
Square Footage
2328 sqft
Neighbourhood Name
Sillery
Land Size
10399.99 sqft
Built in
1950
Parking Type
Other
Time on REALTOR.ca
47 days

Building

Bathrooms
Total
3
Partial
1
Building Features
Features
Non Paved Driveway
Foundation Type
Poured Concrete
Style
Detached
Utilities
Utility Sewer
Municipal sewage system
Water
Municipal water
Exterior Features
Roof Style
Asphalt shingle
Exterior Finish
Aluminum siding, Wood, Brick
Neighbourhood Features
Amenities Nearby
Highway, CEGEP, Hospital, Park, Schools, Public Transit, University
Parking
Parking Type
Other
Total Parking Spaces
4

Measurements

Square Footage
2328 sqft

Rooms

MetricImperial
Main level
Other
Other
Kitchen
Kitchen
Living room
Living room
Dining room
Dining room
Partial bathroom
Bathroom
Primary Bedroom
Bedroom
Bedroom
Second level
Bathroom
Bedroom
Bedroom
Bedroom
Basement
Family room
Storage
Bathroom

Land

Other Property Information
Zoning Type
Residential
Farm Features
Farm Type
Other
Are you interested in touring this listing?
Request a showing

Similar Listings

Richard Caron