Nous utilisons des témoins et d’autres technologies pour assurer le fonctionnement et la sécurité de nos services en ligne, et pour vous offrir une expérience personnalisée. En continuant à utiliser nos services en ligne, vous acceptez notre Politique de confidentialité et les conditions d’utilisation. Pour obtenir des informations sur la façon de régler vos paramètres de confidentialité, veuillez consulter notre Politique sur les témoins.
Masquer
Accueil AB Grand Calgary Division No. 6 Calgary Arbour Lake
147 Arbour Lake Court NW
Directions Imprimer
147 Arbour Lake Court NW 593 248,95 $
Prochaine visite libre
1
mars
593 249 $
Masquer
Favoris

147 Arbour Lake Court NW
Calgary, Alberta T3G2L4

Numéro MLS® : A2261665
3
Chambres
3
Salles de bain
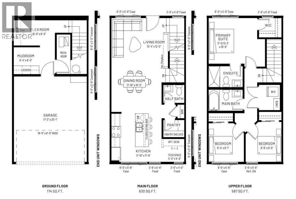
1260
Pieds carrés

Visites libres

1 mars
14 h - 16 h
7 mars
10 h - 13 h
Ajouter au calendrier

Résumé de la propriété

Type de propriété
Unifamiliale
Type de bâtiment
Maison en rangée
Étages
3
Superficie
1260 pi2
Titre
Copropriété divise
Superficie du terrain
Inconnu
Date de construction
2025
Type de stationnement
Garage attenant (2)
Sur REALTOR.ca depuis
147 jours

Édifice

Chambres
Au-dessus du niveau du sol
3
Salles de bain
Total
3
Partielle
1
Caractéristiques intérieures
Appareils électroménagers inclus
Réfrigérateur, Lave-vaisselle, Cuisinière, Four à micro-ondes avec hotte intégrée
Couvre-plancher
plancher recouvert de tapis, Planche vinyle
Type de sous-sol
Pas de sous-sol
Caractéristiques du bâtiment
Caractéristiques
Voir remarques, Stationnement
Type de fondation
Béton coulé
Style
En rangée
Matériau de Construction
Charpente en bois
Chauffage et refroidissement
Système de refroidissement
Voir les notes
Type de chauffage
Air pulsé
Caractéristiques du quartier
Caractéristiques de la communauté
Accès au lac, Animaux admissibles
Commodités à proximité
Parc, Terrain de jeu, Loisirs à proximité, Écoles, Centres commerciaux, Près de l'eau
Infos entretien ou copropriété
Frais d'entretien
229,16 $ mois
Les frais d'entretien comprennent
Entretien de la zone commune, Assurance, Gestion immobilière, Contributions au fonds de réserve, Élimination des déchets
Société de gestion de l'entretien
TBD
Stationnement
Type de stationnement
Garage attenant (2)
Nombre total d'espaces de stationnement
2

Mesures

Superficie
1260 pi2
Superficie totale aménagée
1260 pi2

Pièces

MétriqueImpérial
Niveau principal
Salle de bain - 2 éléments
Autre
Cuisine
Salle à manger
Salon
Niveau inférieur
Coin repos
Niveau supérieur
Chambre à coucher
Chambre à coucher
Salle de bain - 4 éléments
Salle de bain - 3 éléments
Chambre principale

Terrain

Caractéristiques du terrain
Clôture
Non clôturé
Données fournies par : Pillar 9™
Souhaitez-vous visiter cette propriété?
Demander une visite

Inscriptions semblables

Jamie Ostby