We use cookies and other technologies for functionality, security, and to provide you with a personalized experience on our online services. By continuing to use our online services, you agree to our Privacy Policy and Terms of Use. For information on how to adjust your privacy settings, visit our Cookie Policy.
Dismiss
Home AB Greater Calgary Division No. 6 Calgary Arbour Lake
147 Arbour Lake Court NW
Directions Print
147 Arbour Lake Court NW $593,248.95
Next Open House
Mar
1
$593,249
Hide
Favourite

147 Arbour Lake Court NW
Calgary, Alberta T3G2L4

MLS® Number: A2261665
3
Bedrooms
3
Bathrooms
1260
Square Feet

Listing Description

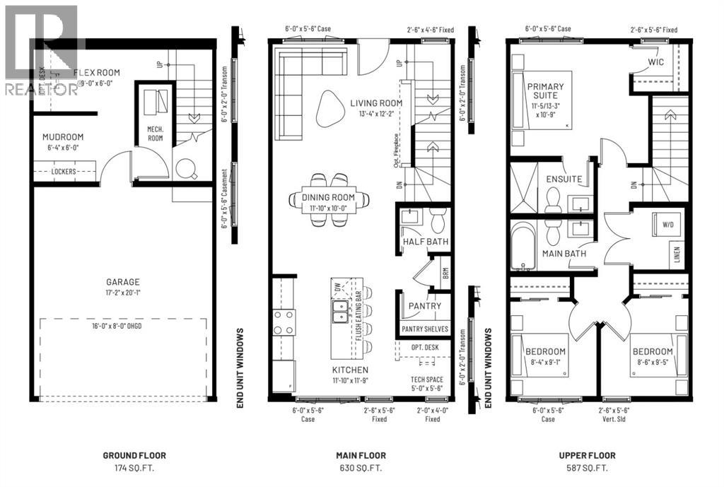
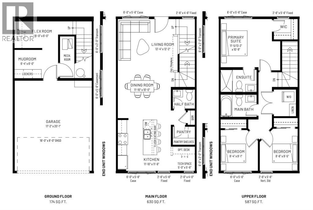
**Open House Sunday 2pm to 4pm - PLEASE GO TO THE SHOWHOME FOR ACCESS** Step into a new chapter of life with the Metro Tailored Tiered 18, a canvas for your dreams and aspirations. Whether you're embarking on a career, venturing into homeownership, or seeking to right-size, this townhome offers affordability and flexibility, opening doors to endless possibilities. Experience the true essence of homeownership with three floors of living space, oversized windows, beautiful finishes and an awesome location this townhome sets the stage for your next chapter. Indulge in the thoughtful features, from the spacious patio and expansive kitchen island to the versatile corner flex area and convenient upper floor laundry facilities. With three bedrooms, ample storage space, and a double car garage, this townhome is designed to meet the needs of modern living while allowing you to create your masterpiece. Located in one of Calgary’s Best neighbourhoods Arbour Lake has is it all! A pristine lake brimming with rainbow trout, neighbourhood parks, spectacular mountain views, a regional bike and walkway path carved through rolling hills. Swimming, boating, fishing, ice skating, community events and much more. Your activities are only limited by your imagination. As Northwest Calgary’s only lake community, Arbour Lake offers a quality of living that is truly unparalleled. Photos are representative of the property being built. (31210944)

Open Houses

Mar 1
2-4 PM
**Open House Sunday 2pm to 4pm - PLEASE GO TO THE SHOWHOME FOR ACCESS**
Mar 7
10-1 PM
Add to Calendar

Property Summary

Property Type
Single Family
Building Type
Row / Townhouse
Storeys
3
Square Footage
1260 sqft
Community Name
Arbour Lake
Subdivision Name
Arbour Lake
Title
Condominium/Strata
Land Size
Unknown
Built in
2025
Parking Type
Attached Garage (2)
Time on REALTOR.ca
148 days

Building

Bedrooms
Above Grade
3
Bathrooms
Total
3
Partial
1
Interior Features
Appliances Included
Refrigerator, Dishwasher, Stove, Microwave Range Hood Combo
Flooring
Carpeted, Vinyl Plank
Basement Type
None
Building Features
Features
See remarks, Parking
Foundation Type
Poured Concrete
Style
Attached
Construction Material
Wood frame
Heating & Cooling
Cooling
See Remarks
Heating Type
Forced air
Neighbourhood Features
Community Features
Lake Privileges, Pets Allowed
Amenities Nearby
Park, Playground, Recreation Nearby, Schools, Shopping, Water Nearby
Maintenance or Condo Information
Maintenance Fees
$229.16 Monthly
Maintenance Fees Include
Common Area Maintenance, Insurance, Property Management, Reserve Fund Contributions, Waste Removal
Maintenance Management Company
TBD
Parking
Parking Type
Attached Garage (2)
Total Parking Spaces
2

Measurements

Square Footage
1260 sqft
Total Finished Area
1260 sqft

Rooms

MetricImperial
Main level
2pc Bathroom
Other
Kitchen
Dining room
Living room
Lower level
Den
Upper Level
Bedroom
Bedroom
4pc Bathroom
3pc Bathroom
Primary Bedroom

Land

Lot Features
Fencing
Not fenced
Other Property Information
Zoning Description
TBD
Data provided by: Pillar 9™
Are you interested in touring this listing?
Request a showing

Similar Listings

Jamie Ostby