Nous utilisons des témoins et d’autres technologies pour assurer le fonctionnement et la sécurité de nos services en ligne, et pour vous offrir une expérience personnalisée. En continuant à utiliser nos services en ligne, vous acceptez notre Politique de confidentialité et les conditions d’utilisation. Pour obtenir des informations sur la façon de régler vos paramètres de confidentialité, veuillez consulter notre Politique sur les témoins.
Masquer
Accueil BC Grand Vancouver Greater Vancouver Burnaby Douglas-Gilpin
5623 WOODSWORTH STREET
Directions Imprimer
5623 WOODSWORTH STREET 1 498 000 $
1 498 000 $
Masquer
Favoris

5623 WOODSWORTH STREET
Burnaby, Colombie-Britannique V5G3P6

Numéro MLS® : R3050628
4
Chambres
5
Salles de bain
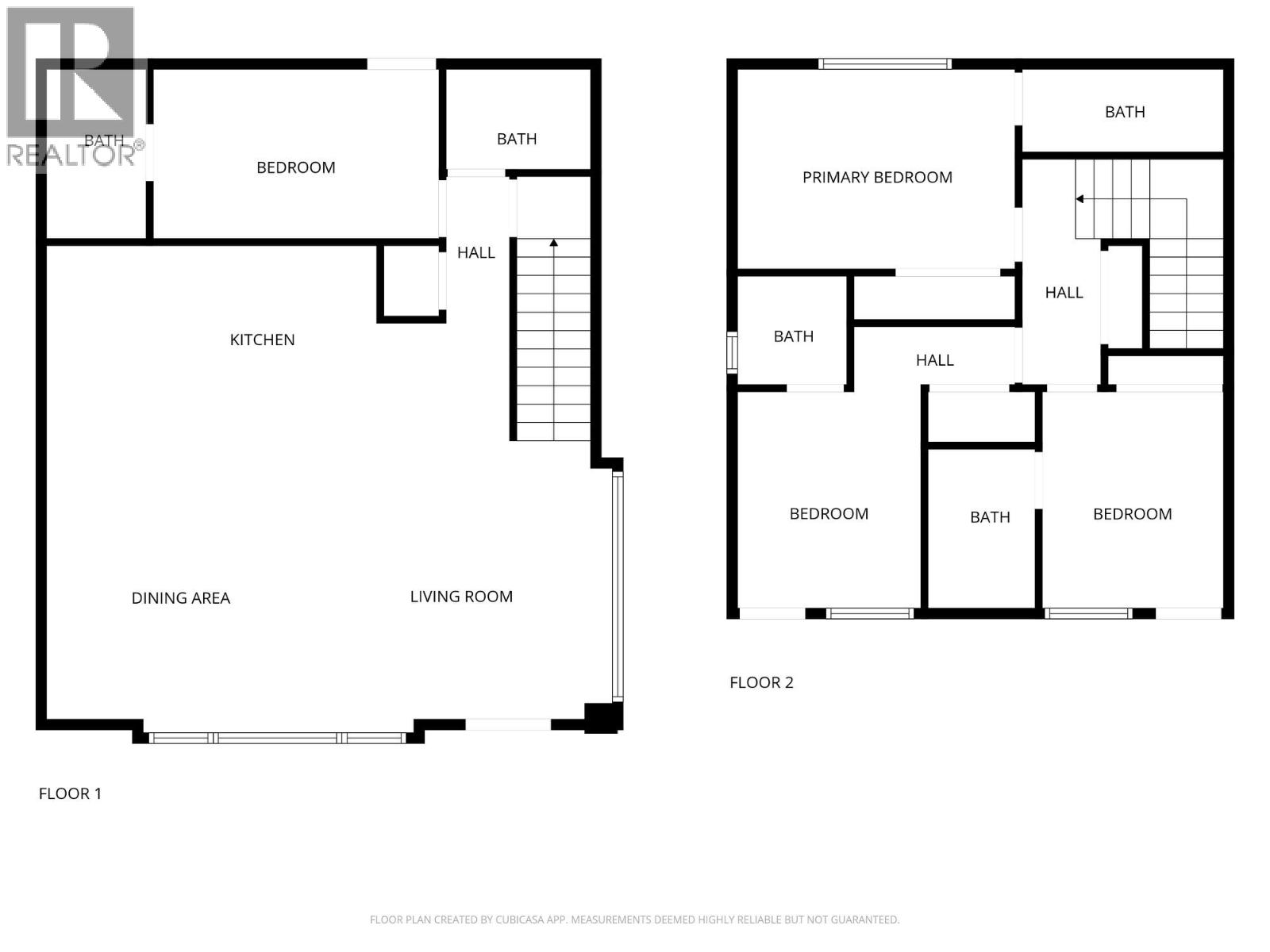
1619
Pieds carrés

Résumé de la propriété

Type de propriété
Unifamiliale
Type de bâtiment
Duplex
Superficie
1619 pi2
Titre
Copropriété divise
Superficie du terrain
5712 pi2
Date de construction
2025
Impôt foncier annuel
4 206 $
Nombre total d'espaces de stationnement
1
Sur REALTOR.ca depuis
117 jours

Édifice

Salles de bain
Total
5
Caractéristiques intérieures
Appareils électroménagers inclus
Toutes les options
Caractéristiques du sous-sol
Inconnu
Type de sous-sol
Sous-sol complet (Inconnu)
Caractéristiques du bâtiment
Caractéristiques
Site central
Style d'architecture
2 étages
Protection contre les incendies
Détecteurs de fumée
Chauffage et refroidissement
Système de refroidissement
Climatisé
Type de chauffage
Chauffage par rayonnement
Stationnement
Nombre total d'espaces de stationnement
1

Mesures

Superficie
1619 pi2
Données fournies par : Greater Vancouver REALTORS®
Souhaitez-vous visiter cette propriété?
Demander une visite

Inscriptions semblables

Fred Choy