Nous utilisons des témoins et d’autres technologies pour assurer le fonctionnement et la sécurité de nos services en ligne, et pour vous offrir une expérience personnalisée. En continuant à utiliser nos services en ligne, vous acceptez notre Politique de confidentialité et les conditions d’utilisation. Pour obtenir des informations sur la façon de régler vos paramètres de confidentialité, veuillez consulter notre Politique sur les témoins.
Masquer
Accueil QC Grande région de Québec Québec Charlesbourg Trait-Carré
75e Rue E.
Directions Imprimer
75e Rue E. 994 900 $ + TPS + TVQ
994 900 $ + TPS + TVQ
Masquer
Favoris

75e Rue E.
Québec (Charlesbourg), Québec G1H1H6

Numéro MLS® : 19437103
3
Chambres
1
Salles de bain
-
Pieds carrés

Description de l’inscription

OCCASION UNIQUE!-Charlesbourg, les Jésuites. Superbe propriété à étages avec garage à construire. Parfaite opportunité de choisir les matériaux intérieurs selon vos goûts. Le projet comprend actuellement 3 chambres à coucher à l'étage, chacune munie d'un walk-in pour maximum de rangement, rez-de-chausée à aire ouverte offrant hall, salon, cuisine et salle à manger de bonne dimensions avec walk-in/garde-manger, ainsi qu'une salle d'eau. Possibilité de sous-sol en option pour ajout de deux chambres à coucher, salle familiale et salle de bain additionnelle. Matériaux de qualité, terrain de plus de 6000 pi2, possession flexible, à qui la chance? TPS/TVQ doivent être ajoutées au prix demandé (48315930)

Résumé de la propriété

Type de propriété
Unifamiliale
Type de bâtiment
Unifamilial
Étages
2
Quartier
Des Jésuites
Superficie du terrain
566.6 m2
Âge de l'édifice
Bâtiment neuf
Type de stationnement
Autre, Garage
Sur REALTOR.ca depuis
121 jours

Édifice

Salles de bain
Total
1
Partielle
1
Caractéristiques intérieures
Type de sous-sol
Sous-sol complet
Caractéristiques du bâtiment
Caractéristiques
Fenêtres aluminium, Fenêtres PVC, Allée non pavée
Type de fondation
Béton coulé
Style
Isolée
Chauffage et refroidissement
Type de chauffage
(Électrique)
Services publics
Égouts
Égout municipal
Eau
Approvisionnement en eau par la municipalité
Caractéristiques extérieures
Style de toiture
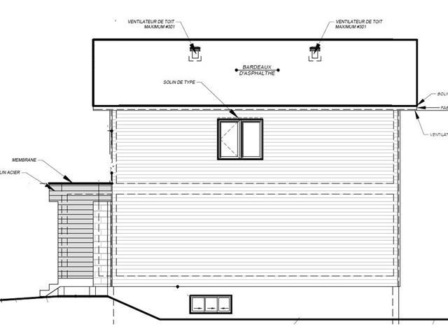
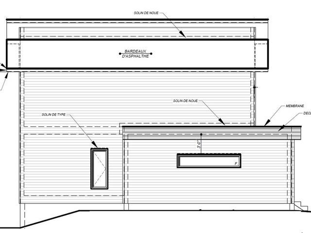
Bardeaux d'asphalte
Revêtement extérieur
Pierre
Caractéristiques du quartier
Commodités à proximité
Autoroute, Un cégep, Terrain de golf, Parc, Transport en commun
Stationnement
Type de stationnement
Autre, Garage
Nombre total d'espaces de stationnement
4

Pièces

MétriqueImpérial
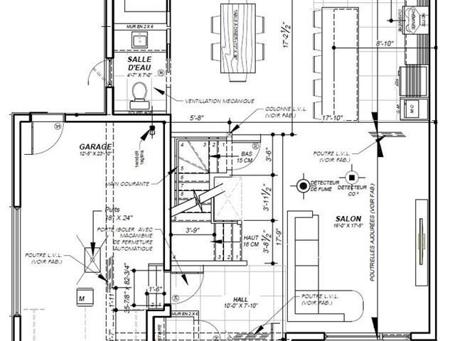
Niveau principal
Autre
Salon
Cuisine
Salle à manger
Salle de bains partielle
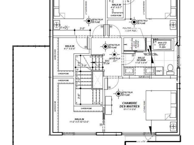
Deuxième niveau
Chambre à coucher
Chambre à coucher
Chambre à coucher
Salle de bain
Sous-sol
Salle familiale
Chambre à coucher
Chambre à coucher
Salle de bain
Buanderie

Terrain

Autres informations sur la propriété
Type de Zonage
Résidentiel
Caractéristiques de la ferme
Type de ferme
Autre
Souhaitez-vous visiter cette propriété?
Demander une visite

Inscriptions semblables

Sarah Lagacé