We use cookies and other technologies for functionality, security, and to provide you with a personalized experience on our online services. By continuing to use our online services, you agree to our Privacy Policy and Terms of Use. For information on how to adjust your privacy settings, visit our Cookie Policy.
Dismiss
Home QC Greater Québec City Québec Charlesbourg Trait-Carré
75e Rue E.
Directions Print
75e Rue E. $994,900 + GST + QST
$994,900 + GST + QST
Hide
Favourite

75e Rue E.
Québec (Charlesbourg), Quebec G1H1H6

MLS® Number: 19437103
3
Bedrooms
1
Bathrooms
-
Square Feet

Listing Description

OCCASION UNIQUE!-Charlesbourg, les Jésuites. Superbe propriété à étages avec garage à construire. Parfaite opportunité de choisir les matériaux intérieurs selon vos goûts. Le projet comprend actuellement 3 chambres à coucher à l'étage, chacune munie d'un walk-in pour maximum de rangement, rez-de-chausée à aire ouverte offrant hall, salon, cuisine et salle à manger de bonne dimensions avec walk-in/garde-manger, ainsi qu'une salle d'eau. Possibilité de sous-sol en option pour ajout de deux chambres à coucher, salle familiale et salle de bain additionnelle. Matériaux de qualité, terrain de plus de 6000 pi2, possession flexible, à qui la chance? GST/QST must be added to the asking price (48315930)

Property Summary

Property Type
Single Family
Building Type
House
Storeys
2
Neighbourhood Name
Des Jésuites
Land Size
566.6 m2
Age Of Building
New building
Parking Type
Other, Garage
Time on REALTOR.ca
122 days

Building

Bathrooms
Total
1
Partial
1
Interior Features
Basement Type
Full
Building Features
Features
Aluminium window, PVC window, Non Paved Driveway
Foundation Type
Poured Concrete
Style
Detached
Heating & Cooling
Heating Type
(Electric)
Utilities
Utility Sewer
Municipal sewage system
Water
Municipal water
Exterior Features
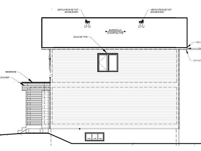
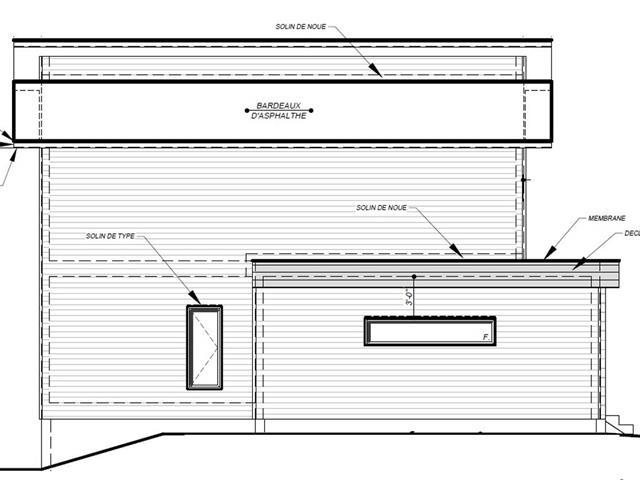
Roof Style
Asphalt shingle
Exterior Finish
Stone
Neighbourhood Features
Amenities Nearby
Highway, CEGEP, Golf Course, Park, Public Transit
Parking
Parking Type
Other, Garage
Total Parking Spaces
4

Rooms

MetricImperial
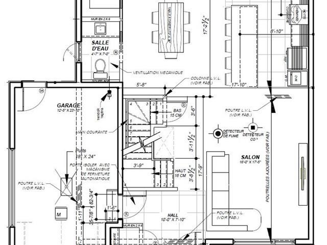
Main level
Other
Living room
Kitchen
Dining room
Partial bathroom
Second level
Bedroom
Bedroom
Bedroom
Bathroom
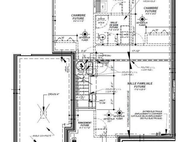
Basement
Family room
Bedroom
Bedroom
Bathroom
Laundry room

Land

Other Property Information
Zoning Type
Residential
Farm Features
Farm Type
Other
Are you interested in touring this listing?
Request a showing

Similar Listings

Sarah Lagacé