Nous utilisons des témoins et d’autres technologies pour assurer le fonctionnement et la sécurité de nos services en ligne, et pour vous offrir une expérience personnalisée. En continuant à utiliser nos services en ligne, vous acceptez notre Politique de confidentialité et les conditions d’utilisation. Pour obtenir des informations sur la façon de régler vos paramètres de confidentialité, veuillez consulter notre Politique sur les témoins.
Masquer
Accueil ON Kawartha Lakes Lindsay
284 VICTORIA AVENUE N
Directions Imprimer
284 VICTORIA AVENUE N 699 900 $
Depuis 2 heures
699 900 $
Masquer
Favoris

284 VICTORIA AVENUE N
Kawartha Lakes (Lindsay), Ontario K9V6A8

Numéro MLS® : X12829796
4
Chambres
4
Salles de bain
1500 - 2000
Pieds carrés

Résumé de la propriété

Type de propriété
Unifamiliale
Type de bâtiment
Unifamilial
Étages
2
Superficie
1500 - 2000 pi2
Titre
Tenure franche
Superficie du terrain
54.1 x 101.8 FT
Âge de l'édifice
31 à 50 ans
Impôt foncier annuel
3 734,72 $
Type de stationnement
Garage attenant, Garage
Sur REALTOR.ca depuis
2 heures

Édifice

Chambres
Au-dessus du niveau du sol
4
Salles de bain
Total
4
Partielle
1
Caractéristiques intérieures
Appareils électroménagers inclus
Chauffe-eau, Compteur d'eau, Lave-vaisselle, Sécheuse, Hotte, Cuisinière(s) à gaz, Machine à laver, Couvre-fenêtre, Deux réfrigérateurs
Couvre-plancher
plancher de bois franc, plancher recouvert de tapis, Vinyle, plancher en stratifié, Béton
Type de sous-sol
Sous-sol complet (Aménagé)
Caractéristiques du bâtiment
Caractéristiques
Terrain plat, Belvédère, Pompe de vidange, Appartement accessoire
Type de fondation
Béton coulé
Style
Isolée
Commodités qu'offre le bâtiment
Auvent
Location de matérial incluse
Chauffe-eau - gaz, Chauffe-eau
Structures
Porche, Remise
Chauffage et refroidissement
Système de refroidissement
Climatisation centrale
Type de chauffage
Air pulsé (Gaz naturel)
Services publics
Services publics disponibles
Service du câble (Disponible), Électricité (Installé), Service d'égout (Installé)
Égouts
Égout sanitaire
Eau
Approvisionnement en eau par la municipalité
Caractéristiques extérieures
Revêtement extérieur
Parement de brique, Bardage en vinyle
Caractéristiques du quartier
Caractéristiques de la communauté
Centre communautaire
Commodités à proximité
Transport en commun, Lieu de culte, Parc, Écoles
Stationnement
Type de stationnement
Garage attenant, Garage
Nombre total d'espaces de stationnement
3

Mesures

Superficie
1500 - 2000 pi2

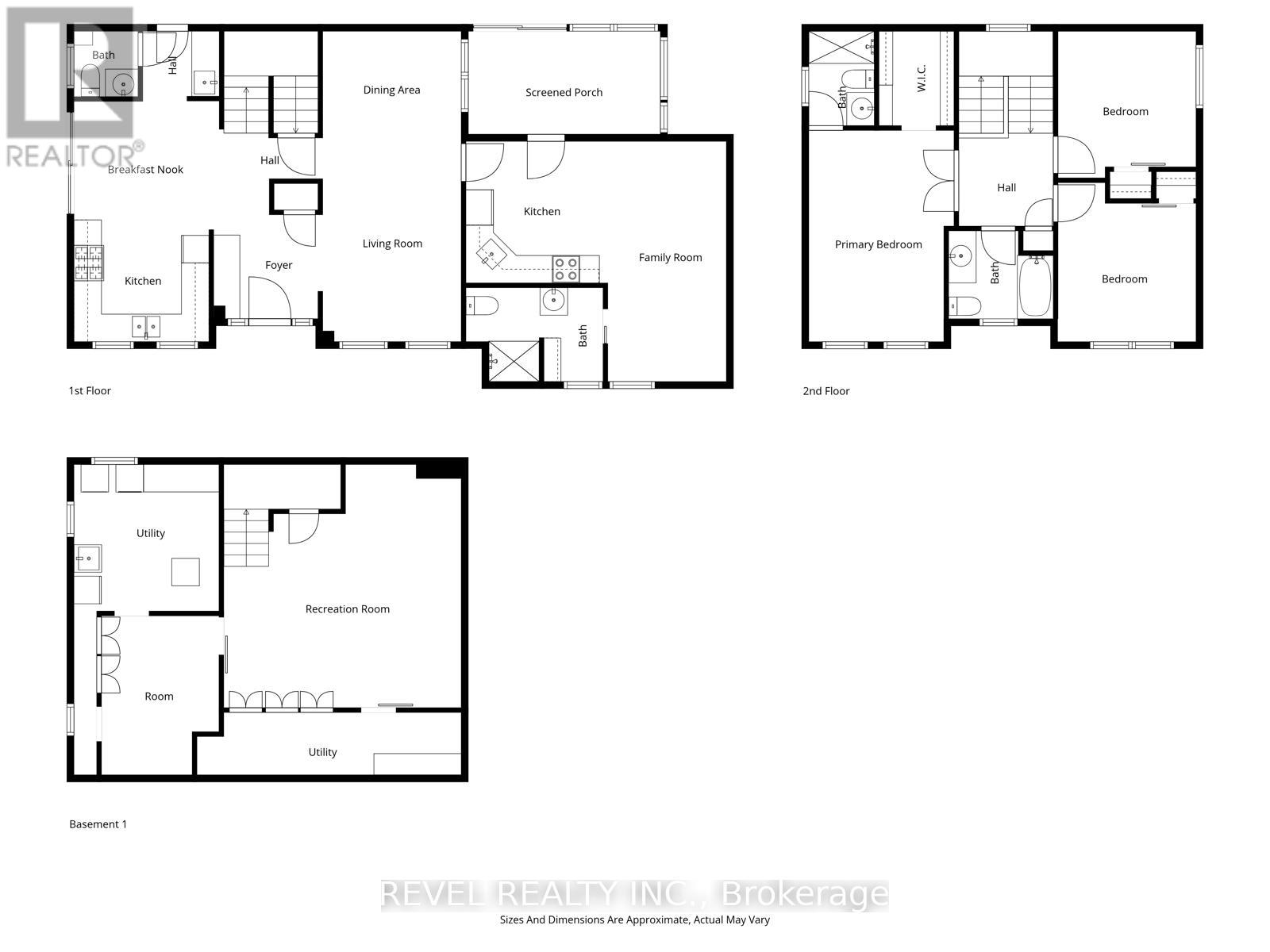
Pièces

MétriqueImpérial
Niveau principal
Salon
Salle à manger
Cuisine
Salle de repas
Garde-manger
Salle de bain
Salle familiale
Cuisine
Vestibule
Deuxième niveau
Deuxième chambre
Troisième chambre
Salle de bain
Chambre principale
Sous-sol
Salle de jeux, récréative
Bureau
Local de services

Terrain

Caractéristiques du terrain
Clôture
Partiellement clôturé
Façade
54 pi 1 po
Superficie du terrain
101 pi 9 po
Aménagement paysager
Terrain paysager
Données fournies par : Central Lakes Association of REALTORS®
Souhaitez-vous visiter cette propriété?
Demander une visite

Inscriptions semblables

KAREN FRETZ