Nous utilisons des témoins et d’autres technologies pour assurer le fonctionnement et la sécurité de nos services en ligne, et pour vous offrir une expérience personnalisée. En continuant à utiliser nos services en ligne, vous acceptez notre Politique de confidentialité et les conditions d’utilisation. Pour obtenir des informations sur la façon de régler vos paramètres de confidentialité, veuillez consulter notre Politique sur les témoins.
Masquer
Accueil QC Le Haut-Saint-François East Angus
38 Rue Tardif
Directions Imprimer
Plus de photos + 2
38 Rue Tardif 470 159 $ + TPS + TVQ
Depuis 5 heures
470 159 $ + TPS + TVQ
Masquer
Favoris

38 Rue Tardif
East Angus, Québec J0B1R0

Numéro MLS® : 19594514
2
Chambres
2
Salles de bain
936
Pieds carrés

Description de l’inscription

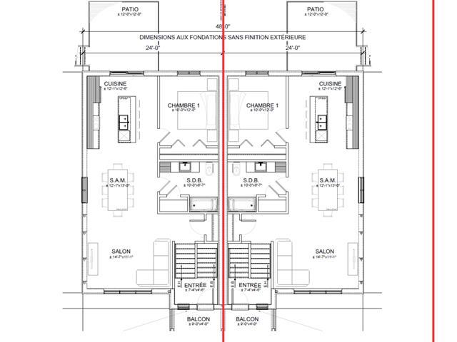
Jumelé de plain-pied à construire! Située à East Angus, cette unité de droite comprend 2 chambres avec grandes garde-robes doubles et 2 salles de bains. Le rez-de-chaussée accueille une aire ouverte avec salon, salle à manger et cuisine, la chambre principale ainsi qu'une salle de bains avec bain autoportant et douche en verre/céramique. La cuisine est munie d'un îlot avec comptoir-lunch, d'armoires pleine hauteur et d'une porte-patio qui donne sur un patio de 12 X 12 pi à l'arrière. Le sous-sol est composé d'une salle familiale, d'une chambre et d'une salle de bains avec douche. Garage intégré de 13,10 X 20,6 pi avec accès au sous-sol. TPS/TVQ doivent être ajoutées au prix demandé (49003012)

Résumé de la propriété

Type de propriété
Unifamiliale
Type de bâtiment
Unifamilial
Étages
1
Superficie
936 pi2
Superficie du terrain
15973.64 pi2
Âge de l'édifice
Bâtiment neuf
Type de stationnement
Garage intégré, Garage, Autre
Sur REALTOR.ca depuis
5 heures

Édifice

Salles de bain
Total
2
Partielle
0
Caractéristiques intérieures
Caractéristiques du sous-sol
Six pieds et plus, Entrée distincte
Type de sous-sol
Sous-sol complet (Aménagé)
Caractéristiques du bâtiment
Caractéristiques
Terrain plat, Armoires en mélamine, Fenêtres PVC, Fenêtres coulissantes, Fenêtres à manivelle, Allée non pavée
Type de fondation
Béton coulé
Style
Jumelée
Protection contre les incendies
Système d'alarme incendie
Chauffage et refroidissement
Système de refroidissement
Échangeur d'air
Type de chauffage
(Électrique)
Services publics
Égouts
Égout municipal
Eau
Approvisionnement en eau par la municipalité
Caractéristiques extérieures
Matériaux du toit
Bardeaux d'asphalte
Revêtement extérieur
Vinyle
Caractéristiques du quartier
Commodités à proximité
Parc, Écoles
Stationnement
Type de stationnement
Garage intégré, Garage, Autre
Nombre total d'espaces de stationnement
3

Mesures

Superficie
936 pi2
Dimension du bâtiment - extérieur
936 pi2

Pièces

MétriqueImpérial
Niveau principal
Autre
Salon
Salle à manger
Cuisine
Chambre principale
Salle de bain
Sous-sol
Salle familiale
Chambre à coucher
Salle de bain

Terrain

Caractéristiques du terrain
Façade
46 pi 7 po
Autres informations sur la propriété
Type de Zonage
Résidentiel
Caractéristiques de la ferme
Type de ferme
Autre
Souhaitez-vous visiter cette propriété?
Demander une visite

Inscriptions semblables

Jason Smith-Kingdon