Nous utilisons des témoins et d’autres technologies pour assurer le fonctionnement et la sécurité de nos services en ligne, et pour vous offrir une expérience personnalisée. En continuant à utiliser nos services en ligne, vous acceptez notre Politique de confidentialité et les conditions d’utilisation. Pour obtenir des informations sur la façon de régler vos paramètres de confidentialité, veuillez consulter notre Politique sur les témoins.
Masquer
Accueil NS Grand Halifax Halifax Bedford Shape 24
73 Union Street
Directions Imprimer
73 Union Street 549 900 $
Depuis 8 heures
549 900 $
Masquer
Favoris

73 Union Street
Bedford, Nouvelle-Écosse B4A2B6

Numéro MLS® : 202603499
3 + 1
Chambres
2
Salles de bain
1975
Pieds carrés

Résumé de la propriété

Type de propriété
Unifamiliale
Type de bâtiment
Unifamilial
Étages
1
Superficie
1975 pi2
Titre
Tenure franche
Superficie du terrain
0.1377 a
Date de construction
1974
Type de stationnement
Cour revêtue
Sur REALTOR.ca depuis
8 heures

Prix et historique

Date Statut Prix vendu
4 août 2022 Vente conclue 535 000 $

Édifice

Chambres
Au-dessus du niveau du sol
3
Au-dessous du niveau du sol
1
Salles de bain
Total
2
Partielle
0
Caractéristiques intérieures
Appareils électroménagers inclus
Cuisinière, Lave-vaisselle, Sécheuse, Machine à laver, Congélateur, Micro-ondes, Réfrigérateur
Couvre-plancher
Tuile céramique, plancher de bois franc usiné, plancher de bois franc
Caractéristiques du bâtiment
Caractéristiques
Balcon, Plat, Pompe de vidange
Type de fondation
Béton coulé
Style
Isolée
Location de matérial incluse
Réservoir de stockage du propane
Structures
Remise
Chauffage et refroidissement
Système de refroidissement
Thermopompe
Services publics
Égouts
Égout municipal
Eau
Approvisionnement en eau par la municipalité
Caractéristiques extérieures
Revêtement extérieur
Vinyle
Caractéristiques du quartier
Caractéristiques de la communauté
Installations récréatives, Autobus scolaire
Commodités à proximité
Parc, Terrain de jeu, Transport en commun, Centres commerciaux, Lieu de culte
Stationnement
Type de stationnement
Cour revêtue

Mesures

Superficie
1975 pi2
Source : Autre
Superficie totale aménagée
1975 pi2

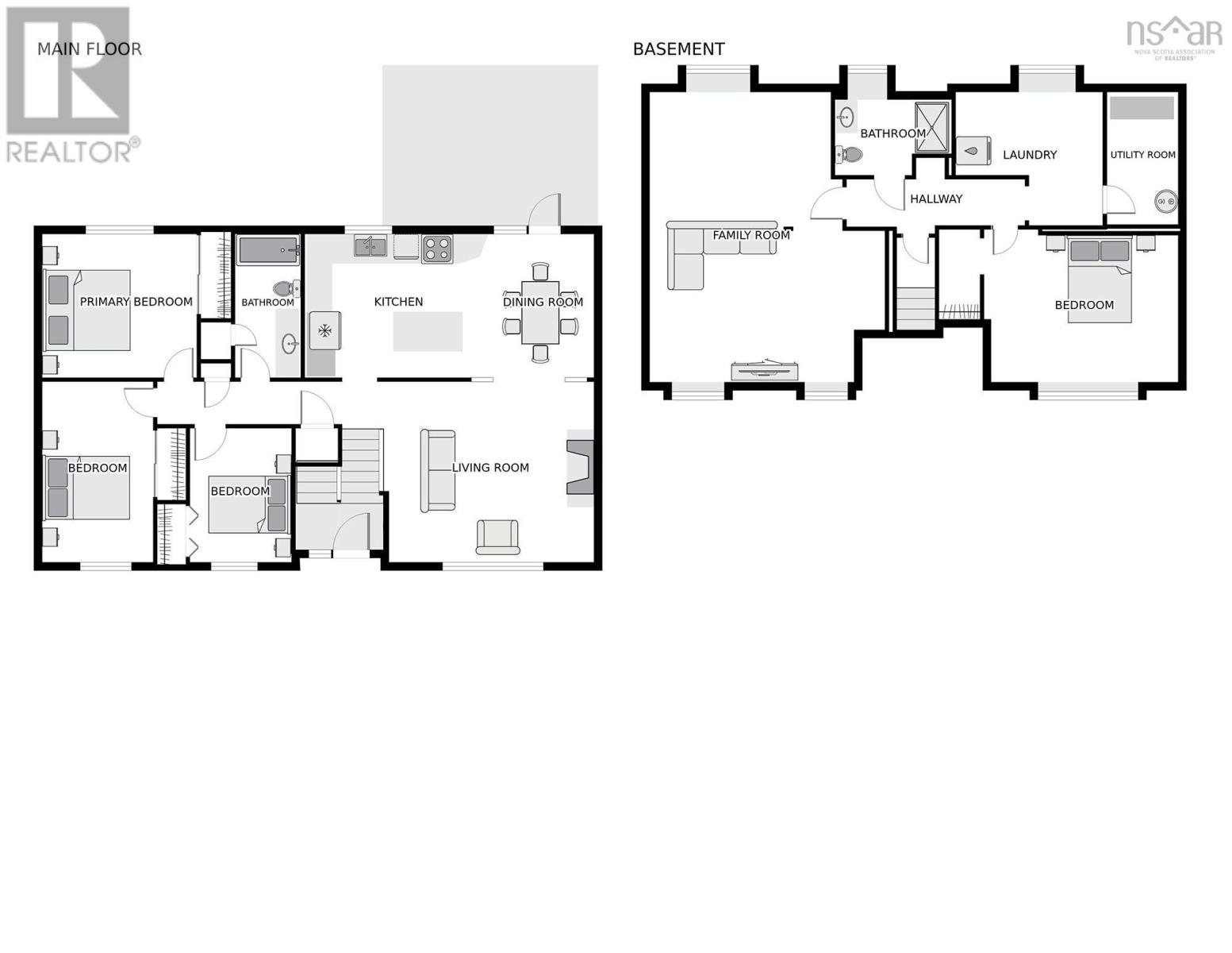
Pièces

MétriqueImpérial
Niveau principal
Salon
Salle à manger
Cuisine
Chambre principale
Chambre à coucher
Chambre à coucher
Bain (nbre de pièces 1-6)
Sous-sol
Salle familiale
Chambre à coucher
Bain (nbre de pièces 1-6)
Buanderie

Terrain

Caractéristiques du terrain
Aménagement paysager
Terrain paysager
Données fournies par : Nova Scotia Association of REALTORS®

Évaluation foncière

Année d’imposition Évaluation de la propriété Valeur imposable
2025 383 200 $ 292 200 $
2024 387 500 $ 287 900 $
2023 279 000 $ 279 000 $
2022 204 300 $ 183 300 $
2021 189 900 $ 174 000 $
Contient des informations obtenues en vertu de la licence d’utilisation des données et des informations ouvertes du gouvernement – Property Valuation Services Corporation (PVSC) et municipalités participantes.

Inscriptions semblables

Janna Fertsman