Nous utilisons des témoins et d’autres technologies pour assurer le fonctionnement et la sécurité de nos services en ligne, et pour vous offrir une expérience personnalisée. En continuant à utiliser nos services en ligne, vous acceptez notre Politique de confidentialité et les conditions d’utilisation. Pour obtenir des informations sur la façon de régler vos paramètres de confidentialité, veuillez consulter notre Politique sur les témoins.
Masquer
Accueil ON Haldimand County
1360 CONCESSION 2 ROAD
Directions Imprimer
1360 CONCESSION 2 ROAD 999 800 $
Depuis 6 heures
Prochaine visite libre
1
mars
999 800 $
Masquer
Favoris

1360 CONCESSION 2 ROAD
Haldimand, Ontario N0A1R0

Numéro MLS® : X12826534
1 + 3
Chambres
3
Salles de bain
1100 - 1500
Pieds carrés

Visites libres

1 mars
14 h - 16 h
Ajouter au calendrier

Résumé de la propriété

Type de propriété
Unifamiliale
Type de bâtiment
Unifamilial
Étages
1
Superficie
1100 - 1500 pi2
Titre
Tenure franche
Superficie du terrain
205 x 300.8 FT|1/2 - 1,99 acre
Âge de l'édifice
31 à 50 ans
Impôt foncier annuel
4 854 $
Type de stationnement
Garage
Sur REALTOR.ca depuis
6 heures

Édifice

Chambres
Au-dessus du niveau du sol
1
Au-dessous du niveau du sol
3
Salles de bain
Total
3
Partielle
1
Caractéristiques intérieures
Appareils électroménagers inclus
Adoucisseur d'eau, Lave-vaisselle, Sécheuse, Micro-ondes, Cuisinière, Machine à laver, Couvre-fenêtre, Réfrigérateur
Couvre-plancher
plancher de bois franc, Vinyle
Caractéristiques du sous-sol
Entrée distincte
Type de sous-sol
AménagéSous-sol complet
Caractéristiques du bâtiment
Caractéristiques
Plat, Sans tapis
Type de fondation
Fondation en béton
Style
Isolée
Style d'architecture
Bungalow surélevé
Commodités qu'offre le bâtiment
Foyer(s)
Chauffage et refroidissement
Système de refroidissement
Unité murale
Foyer
2
Type de chauffage
Plinthes chauffantes (Électrique)
Services publics
Service public - Électricité
Générateur
Égouts
Fosse septique
Eau
Citerne, Puits foré à la sondeuse
Caractéristiques extérieures
Revêtement extérieur
Brique
Piscine
Piscine creusée
Stationnement
Type de stationnement
Garage
Nombre total d'espaces de stationnement
12

Mesures

Superficie
1100 - 1500 pi2

Pièces

MétriqueImpérial
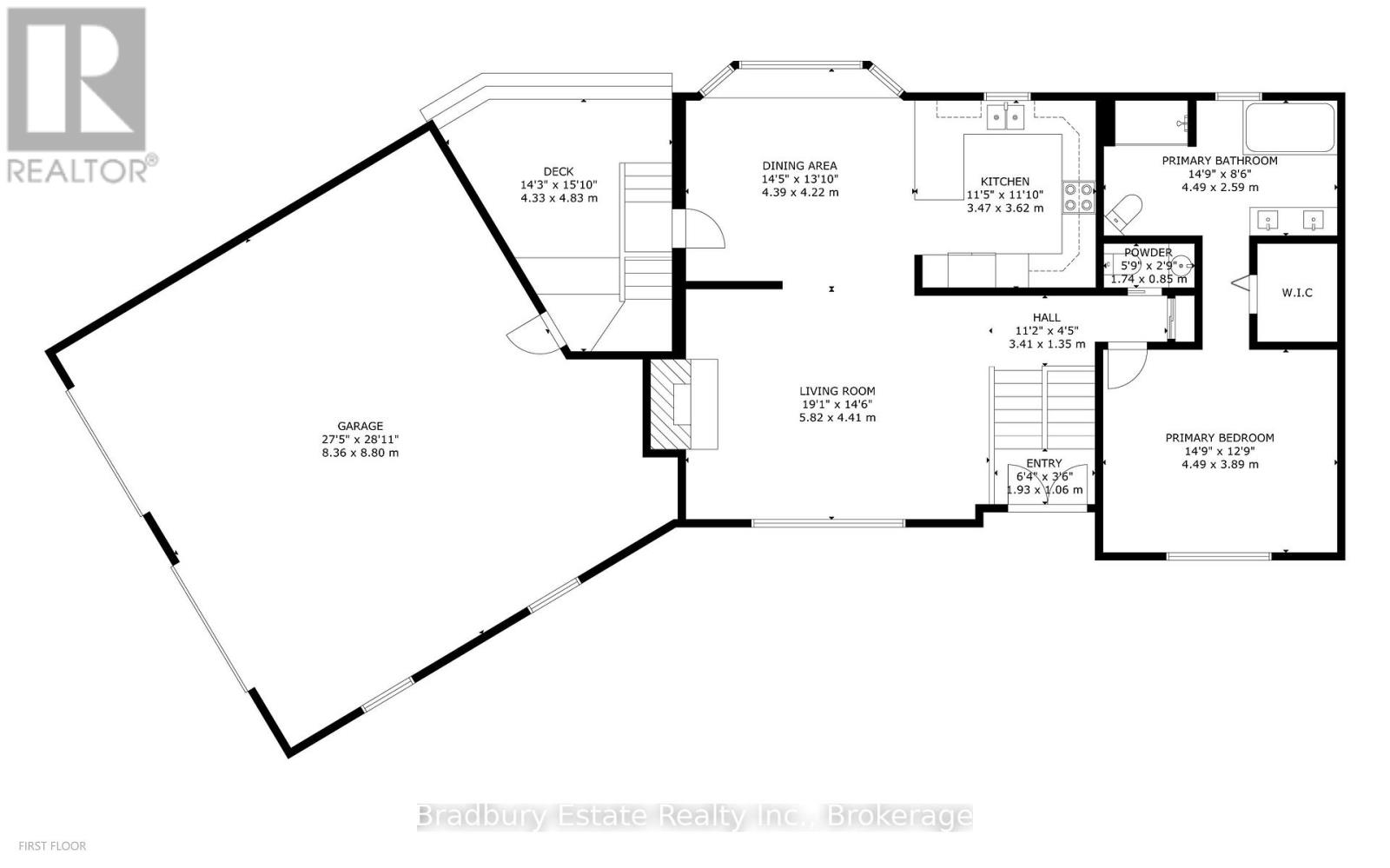
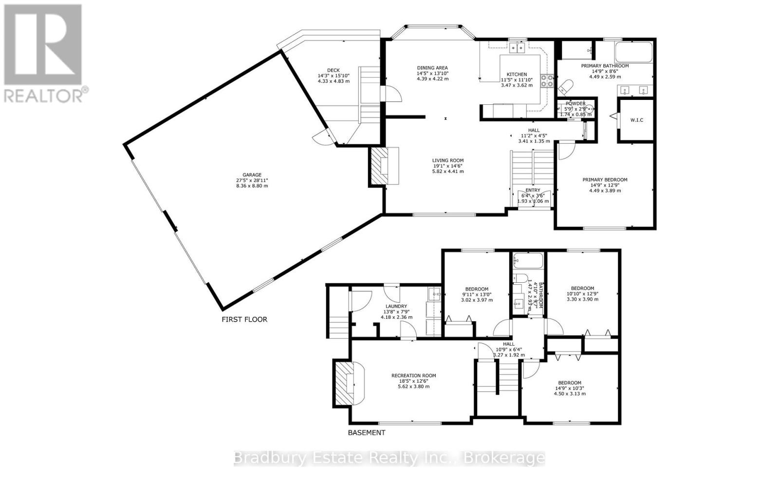
Niveau principal
Salon
Salle à manger
Cuisine
Chambre principale
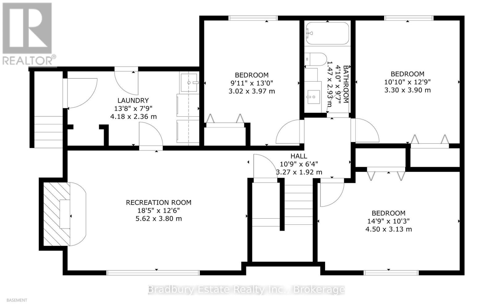
Niveau inférieur
Salle familiale
Deuxième chambre
Troisième chambre
Quatrième chambre
Buanderie

Terrain

Caractéristiques du terrain
Façade
205 pi
Superficie du terrain
300 pi 9 po
Souhaitez-vous visiter cette propriété?
Demander une visite

Inscriptions semblables

DIANNA BRADBURY