Nous utilisons des témoins et d’autres technologies pour assurer le fonctionnement et la sécurité de nos services en ligne, et pour vous offrir une expérience personnalisée. En continuant à utiliser nos services en ligne, vous acceptez notre Politique de confidentialité et les conditions d’utilisation. Pour obtenir des informations sur la façon de régler vos paramètres de confidentialité, veuillez consulter notre Politique sur les témoins.
Masquer
Accueil ON Grand London Comté de Middlesex London Masonville
397 GRANGEOVER COURT
Directions Imprimer
397 GRANGEOVER COURT 1 799 000 $
Depuis 8 heures
1 799 000 $
Masquer
Favoris

397 GRANGEOVER COURT
London North (North A), Ontario N6G4K8

Numéro MLS® : X12826204
5 + 1
Chambres
4
Salles de bain
5000 - 100000
Pieds carrés

Résumé de la propriété

Type de propriété
Unifamiliale
Type de bâtiment
Unifamilial
Étages
2
Superficie
5000 - 100000 pi2
Titre
Tenure franche
Superficie du terrain
83.5 x 140.6 FT|moins de 1/2 acre
Âge de l'édifice
31 à 50 ans
Impôt foncier annuel
14 434 $
Type de stationnement
Garage attenant, Garage
Sur REALTOR.ca depuis
8 heures

Édifice

Chambres
Au-dessus du niveau du sol
5
Au-dessous du niveau du sol
1
Salles de bain
Total
4
Partielle
1
Caractéristiques intérieures
Appareils électroménagers inclus
Chauffe-eau, Aspirateur central
Caractéristiques du sous-sol
Sous-sol à escalier
Type de sous-sol
Aménagé
Caractéristiques du bâtiment
Type de fondation
Béton coulé
Style
Isolée
Protection contre les incendies
Système d'alarme
Commodités qu'offre le bâtiment
Foyer(s)
Chauffage et refroidissement
Système de refroidissement
Climatisation centrale
Foyer
1
Type de chauffage
Air pulsé (Gaz naturel)
Services publics
Services publics disponibles
Service du câble (Installé), Électricité (Installé)
Égouts
Égout sanitaire
Eau
Approvisionnement en eau par la municipalité
Caractéristiques extérieures
Revêtement extérieur
Brique
Piscine
Piscine creusée
Caractéristiques du quartier
Commodités à proximité
Un hôpital
Stationnement
Type de stationnement
Garage attenant, Garage
Nombre total d'espaces de stationnement
9

Mesures

Superficie
5000 - 100000 pi2

Pièces

MétriqueImpérial
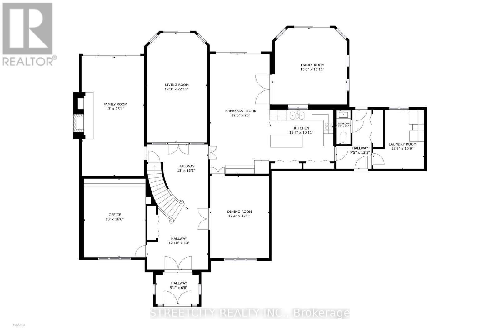
Niveau principal
Salle de bain
Vestibule
Bureau
Salle à manger
Salon
Autre
Autre
Solarium
Buanderie
Vestibule
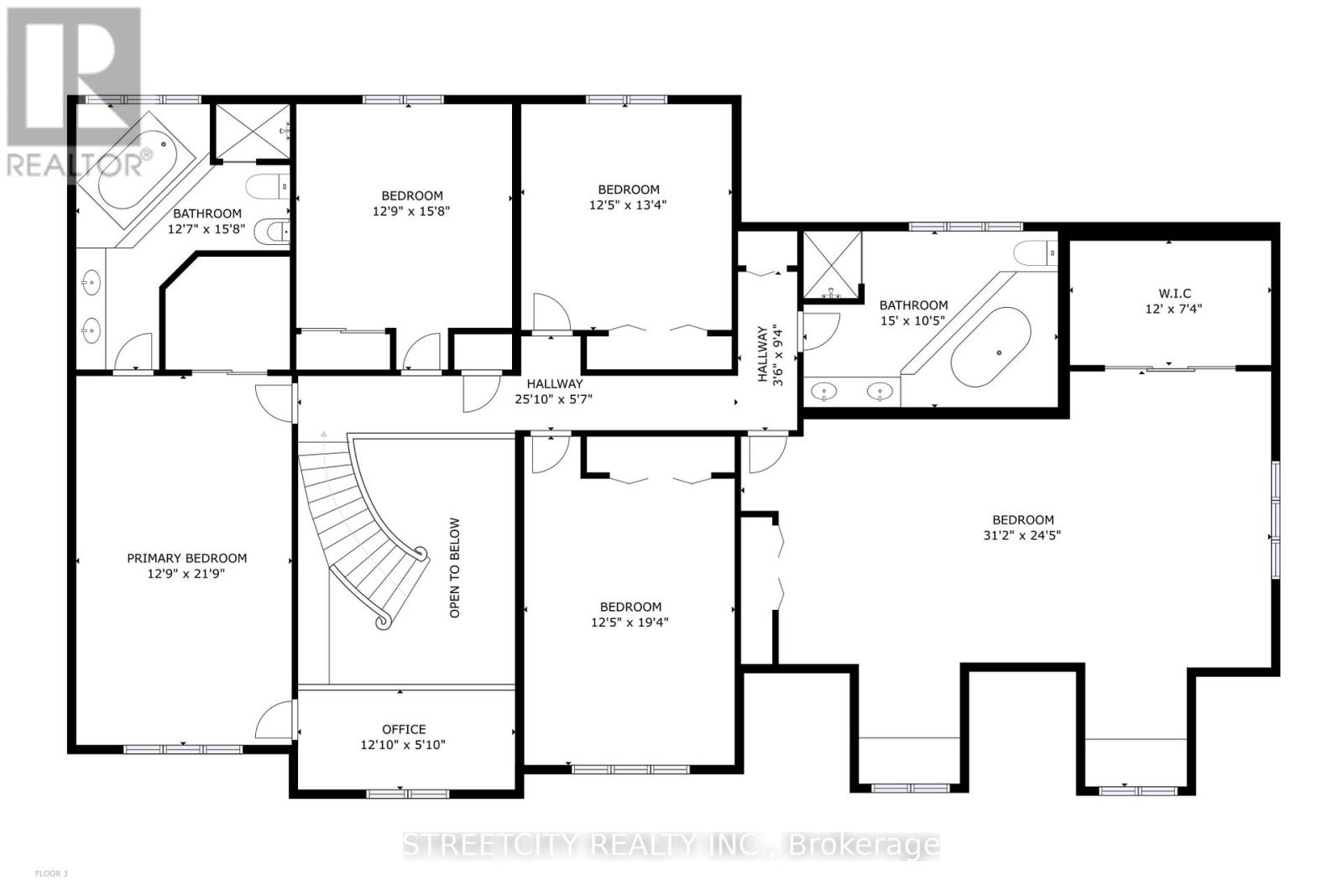
Deuxième niveau
Chambre principale
Autre
Chambre à coucher
Chambre à coucher
Chambre à coucher
Chambre à coucher
Salle de bain
Sous-sol
Salle de jeux, récréative
Salle familiale
Coin repos
Coin repos
Autre
Local de services
Salle de bain

Terrain

Caractéristiques du terrain
Façade
83 pi 6 po
Superficie du terrain
140 pi 7 po
Souhaitez-vous visiter cette propriété?
Demander une visite

Inscriptions semblables

TONY TANG