Nous utilisons des témoins et d’autres technologies pour assurer le fonctionnement et la sécurité de nos services en ligne, et pour vous offrir une expérience personnalisée. En continuant à utiliser nos services en ligne, vous acceptez notre Politique de confidentialité et les conditions d’utilisation. Pour obtenir des informations sur la façon de régler vos paramètres de confidentialité, veuillez consulter notre Politique sur les témoins.
Masquer
Accueil MB Grand Winnipeg Division No. 11 Headingley
45 Moffitt Bay
Directions Imprimer
Plus de photos + 2
45 Moffitt Bay 699 900 $
Depuis 5 heures
699 900 $
Masquer
Favoris

45 Moffitt Bay
Headingley, Manitoba R4H0E8

Numéro MLS® : 202603465
3
Chambres
2
Salles de bain
1537
Pieds carrés

Résumé de la propriété

Type de propriété
Unifamiliale
Type de bâtiment
Unifamilial
Étages
1
Superficie
1537 pi2
Titre
Tenure franche
Superficie du terrain
Inconnu
Date de construction
2026
Impôt foncier annuel
0 $
Type de stationnement
Garage attenant, Autre, Autre, Autre
Sur REALTOR.ca depuis
5 heures

Édifice

Salles de bain
Total
2
Partielle
0
Caractéristiques intérieures
Appareils électroménagers inclus
Hotte
Couvre-plancher
Moquette, plancher en stratifié, Vinyle
Caractéristiques du bâtiment
Caractéristiques
Aucune voie d'accès à l'arrière, Murs extérieurs - 2"x6", Ventilation, sortie centralisée, Pompe de vidange
Style d'architecture
Bungalow
Protection contre les incendies
Détecteurs de fumée
Chauffage et refroidissement
Système de refroidissement
Climatisation centrale
Type de chauffage
Ventilateur récupérateur de chaleur (VRC), Chaudière à haut rendement, Air pulsé (Gaz naturel)
Services publics
Eau
Approvisionnement en eau par la municipalité
Stationnement
Type de stationnement
Garage attenant, Autre

Mesures

Superficie
1537 pi2

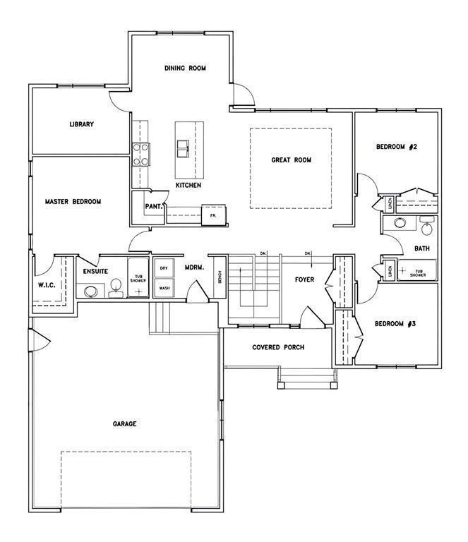
Pièces

MétriqueImpérial
Niveau principal
Salle à manger
Cuisine
Grande salle
Bureau
Chambre principale
Chambre à coucher
Chambre à coucher

Terrain

Caractéristiques du terrain
Type de route
Route revêtue
Données fournies par : Winnipeg Regional Real Estate Board
Souhaitez-vous visiter cette propriété?
Demander une visite

Inscriptions semblables

James Boschman