Nous utilisons des témoins et d’autres technologies pour assurer le fonctionnement et la sécurité de nos services en ligne, et pour vous offrir une expérience personnalisée. En continuant à utiliser nos services en ligne, vous acceptez notre Politique de confidentialité et les conditions d’utilisation. Pour obtenir des informations sur la façon de régler vos paramètres de confidentialité, veuillez consulter notre Politique sur les témoins.
Masquer
Accueil ON Comté de Middlesex Southwest Middlesex
LOT 47 STELLA AVENUE
Directions Imprimer
Plus de photos + 2
LOT 47 STELLA AVENUE 612 800 $
Depuis 14 heures
612 800 $
Masquer
Favoris

LOT 47 STELLA AVENUE
Southwest Middlesex (Glencoe), Ontario N0L1M0

Numéro MLS® : X12824120
3
Chambres
3
Salles de bain
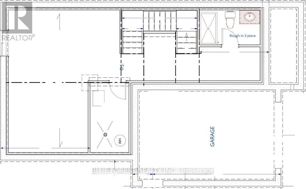
1500 - 2000
Pieds carrés

Résumé de la propriété

Type de propriété
Unifamiliale
Type de bâtiment
Unifamilial
Étages
2
Superficie
1500 - 2000 pi2
Titre
Tenure franche
Superficie du terrain
37 x 124 FT|moins de 1/2 acre
Âge de l'édifice
Bâtiment neuf
Impôt foncier annuel
0 $
Type de stationnement
Garage attenant, Garage
Sur REALTOR.ca depuis
14 heures

Édifice

Chambres
Au-dessus du niveau du sol
3
Salles de bain
Total
3
Partielle
1
Caractéristiques intérieures
Type de sous-sol
Sous-sol complet (Non aménagé)
Caractéristiques du bâtiment
Caractéristiques
Pompe de vidange
Type de fondation
Béton coulé
Style
Isolée
Location de matérial incluse
Chauffe-eau
Chauffage et refroidissement
Système de refroidissement
Climatisation centrale
Type de chauffage
Air pulsé (Gaz naturel)
Services publics
Eau
Approvisionnement en eau par la municipalité
Caractéristiques extérieures
Revêtement extérieur
Brique, Bardage en vinyle
Stationnement
Type de stationnement
Garage attenant, Garage
Nombre total d'espaces de stationnement
3

Mesures

Superficie
1500 - 2000 pi2

Terrain

Caractéristiques du terrain
Façade
37 pi
Superficie du terrain
124 pi
Souhaitez-vous visiter cette propriété?
Demander une visite

Inscriptions semblables

KLAUD CZESLAWSKI