Nous utilisons des témoins et d’autres technologies pour assurer le fonctionnement et la sécurité de nos services en ligne, et pour vous offrir une expérience personnalisée. En continuant à utiliser nos services en ligne, vous acceptez notre Politique de confidentialité et les conditions d’utilisation. Pour obtenir des informations sur la façon de régler vos paramètres de confidentialité, veuillez consulter notre Politique sur les témoins.
Masquer
Accueil ON Kawartha Lakes Lindsay
40 DORMER ROAD
Directions Imprimer
40 DORMER ROAD 674 900 $
Depuis 14 heures
674 900 $
Masquer
Favoris

40 DORMER ROAD
Kawartha Lakes (Lindsay), Ontario K9V6H8

Numéro MLS® : X12822164
2
Chambres
2
Salles de bain
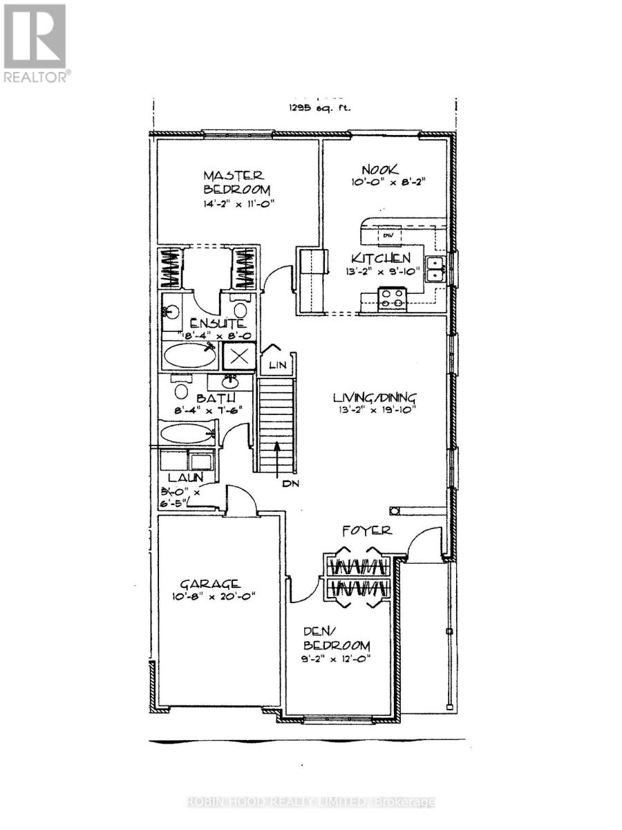
1100 - 1500
Pieds carrés

Résumé de la propriété

Type de propriété
Unifamiliale
Type de bâtiment
Unifamilial
Étages
1
Superficie
1100 - 1500 pi2
Titre
Tenure franche
Superficie du terrain
35.6 x 190.3 FT
Impôt foncier annuel
3 851 $
Type de stationnement
Garage attenant, Garage
Sur REALTOR.ca depuis
14 heures

Édifice

Chambres
Au-dessus du niveau du sol
2
Salles de bain
Total
2
Caractéristiques intérieures
Appareils électroménagers inclus
Télécommande(s) d'ouvre-porte de garage, Compteur d'eau, Barbecue, Stores, Lave-vaisselle, Sécheuse, Ouvre-porte de garage, Micro-ondes, Four, Machine à laver, Réfrigérateur
Type de sous-sol
Non aménagé
Caractéristiques du bâtiment
Caractéristiques
Pompe de vidange
Type de fondation
Fondation en béton
Style
Jumelée
Style d'architecture
Bungalow surélevé
Location de matérial incluse
Chauffe-eau
Chauffage et refroidissement
Système de refroidissement
Climatisation centrale
Type de chauffage
Air pulsé (Gaz naturel)
Services publics
Égouts
Égout sanitaire
Eau
Approvisionnement en eau par la municipalité
Caractéristiques extérieures
Revêtement extérieur
Brique, Béton
Stationnement
Type de stationnement
Garage attenant, Garage
Nombre total d'espaces de stationnement
3

Mesures

Superficie
1100 - 1500 pi2

Terrain

Caractéristiques du terrain
Façade
35 pi 7 po
Superficie du terrain
190 pi 3 po
Données fournies par : Toronto Regional Real Estate Board
Souhaitez-vous visiter cette propriété?
Demander une visite

Inscriptions semblables

SHAMAIRAH NOUFARO