Nous utilisons des témoins et d’autres technologies pour assurer le fonctionnement et la sécurité de nos services en ligne, et pour vous offrir une expérience personnalisée. En continuant à utiliser nos services en ligne, vous acceptez notre Politique de confidentialité et les conditions d’utilisation. Pour obtenir des informations sur la façon de régler vos paramètres de confidentialité, veuillez consulter notre Politique sur les témoins.
Masquer
Accueil MB Grand Winnipeg West St. Paul
208 BLOSSOM Way
Directions Imprimer
208 BLOSSOM Way 674 900 $
Depuis 1 journée
674 900 $
Masquer
Favoris

208 BLOSSOM Way
West St Paul, Manitoba R4A0H1

Numéro MLS® : 202603400
5
Chambres
3
Salles de bain
2174
Pieds carrés

Résumé de la propriété

Type de propriété
Unifamiliale
Type de bâtiment
Unifamilial
Étages
2
Superficie
2174 pi2
Titre
Tenure franche
Superficie du terrain
Inconnu
Date de construction
2026
Impôt foncier annuel
0 $
Type de stationnement
Garage attenant, Autre, Autre, Surdimensionné
Sur REALTOR.ca depuis
1 journée

Édifice

Salles de bain
Total
3
Partielle
0
Caractéristiques intérieures
Couvre-plancher
Moquette, Vinyle
Caractéristiques du bâtiment
Caractéristiques
Aucune voie d'accès à l'arrière, Murs extérieurs - 2"x6", Pompe de vidange
Protection contre les incendies
Détecteurs de fumée
Chauffage et refroidissement
Type de chauffage
Ventilateur récupérateur de chaleur (VRC), Chaudière à haut rendement, Air pulsé (Gaz naturel)
Services publics
Égouts
Égout municipal
Eau
Approvisionnement en eau par la municipalité
Caractéristiques du quartier
Commodités à proximité
Terrain de golf à proximité, Centres commerciaux
Stationnement
Type de stationnement
Garage attenant, Autre, Surdimensionné
Nombre total d'espaces de stationnement
4

Mesures

Superficie
2174 pi2

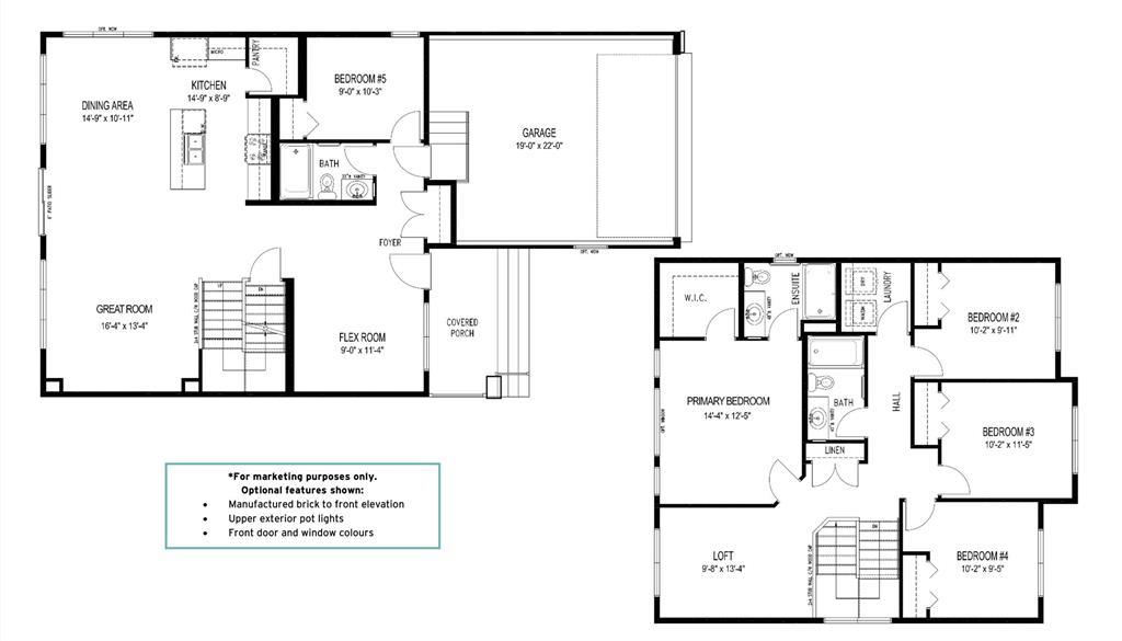
Pièces

MétriqueImpérial
Niveau principal
Salle familiale
Salle à manger
Cuisine
Chambre à coucher
Niveau supérieur
Chambre principale
Chambre à coucher
Chambre à coucher
Chambre à coucher

Terrain

Caractéristiques du terrain
Façade
44 pi
Aménagement paysager
Non aménagé
Type de route
Route revêtue
Données fournies par : Winnipeg Regional Real Estate Board
Souhaitez-vous visiter cette propriété?
Demander une visite

Inscriptions semblables

Bobby Singh