Nous utilisons des témoins et d’autres technologies pour assurer le fonctionnement et la sécurité de nos services en ligne, et pour vous offrir une expérience personnalisée. En continuant à utiliser nos services en ligne, vous acceptez notre Politique de confidentialité et les conditions d’utilisation. Pour obtenir des informations sur la façon de régler vos paramètres de confidentialité, veuillez consulter notre Politique sur les témoins.
Masquer
Accueil QC Grand Montréal Montréal Le Plateau-Mont-Royal De Lorimier
4426B Rue D'Iberville
Directions Imprimer
4426B Rue D'Iberville 740 000 $ + TPS + TVQ
Depuis 1 journée
Prochaine visite libre
1
mars
740 000 $ + TPS + TVQ
Masquer
Favoris

4426B Rue D'Iberville
Montréal (Le Plateau-Mont-Royal), Québec H2H2L8

Numéro MLS® : 19241484
3
Chambres
1
Salles de bain
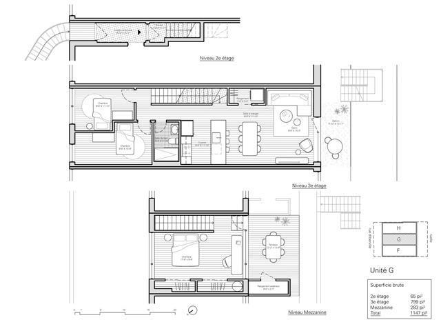
1147
Pieds carrés

Description de l’inscription

OCCUPATION IMMÉDIATE -- Unité 4426B | LEDUC d'Iberville. Superbe copropriété divise signée LA SHED, située à deux pas du Parc Baldwin au coeur du Plateau-Mont-Royal. Unité traversante offrant une luminosité remarquable, aire de vie à concept ouvert, 3 chambres sur 2 étages et terrasse privée sur le toit. Finitions haut de gamme : plancher d'ingénierie en érable, comptoirs de quartz, fenêtres architecturales aux cadres anthracite et matériaux soigneusement sélectionnés. À proximité du métro Frontenac et des Shop Angus. Un projet distinctif alliant design, qualité et emplacement recherché. TPS/TVQ doivent être ajoutées au prix demandé (48638719)

Visites libres

1 mars
14 h - 16 h
Ajouter au calendrier

Résumé de la propriété

Type de propriété
Unifamiliale
Type de bâtiment
Appartement
Étages
3
Superficie
1147 pi2
Quartier
Le Plateau-Mont-Royal
Titre
Copropriété divise
Date de construction
2025
Sur REALTOR.ca depuis
1 journée

Édifice

Salles de bain
Total
1
Partielle
0
Caractéristiques intérieures
Caractéristiques du sous-sol
Six pieds et plus
Type de sous-sol
Sous-sol complet (Aménagé)
Caractéristiques du bâtiment
Style
En rangée
Chauffage et refroidissement
Type de chauffage
(Électrique)
Services publics
Égouts
Égout municipal
Eau
Approvisionnement en eau par la municipalité
Caractéristiques du quartier
Commodités à proximité
Un cégep, Parc, Écoles, Transport en commun
Infos entretien ou copropriété
Frais d'entretien
1 $ mois

Mesures

Superficie
1147 pi2

Pièces

MétriqueImpérial
Deuxième niveau
Autre
Troisième niveau
Chambre à coucher
Chambre à coucher
Salle de bain
Cuisine
Salle à manger
Salon
Lieu de rangement
Quatrième niveau
Chambre principale

Terrain

Autres informations sur la propriété
Type de Zonage
Résidentiel
Caractéristiques de la ferme
Type de ferme
Autre
Souhaitez-vous visiter cette propriété?
Demander une visite

Inscriptions semblables

Benjamin Pelletier