Nous utilisons des témoins et d’autres technologies pour assurer le fonctionnement et la sécurité de nos services en ligne, et pour vous offrir une expérience personnalisée. En continuant à utiliser nos services en ligne, vous acceptez notre Politique de confidentialité et les conditions d’utilisation. Pour obtenir des informations sur la façon de régler vos paramètres de confidentialité, veuillez consulter notre Politique sur les témoins.
Masquer
Accueil NB Grand Miramichi Miramichi
14 Adams Avenue
Directions Imprimer
14 Adams Avenue 299 500 $
Depuis 1 journée
299 500 $
Masquer
Favoris

14 Adams Avenue
Miramichi, Nouveau-Brunswick E1V3W9

Numéro MLS® : NB134094
2
Chambres
2
Salles de bain
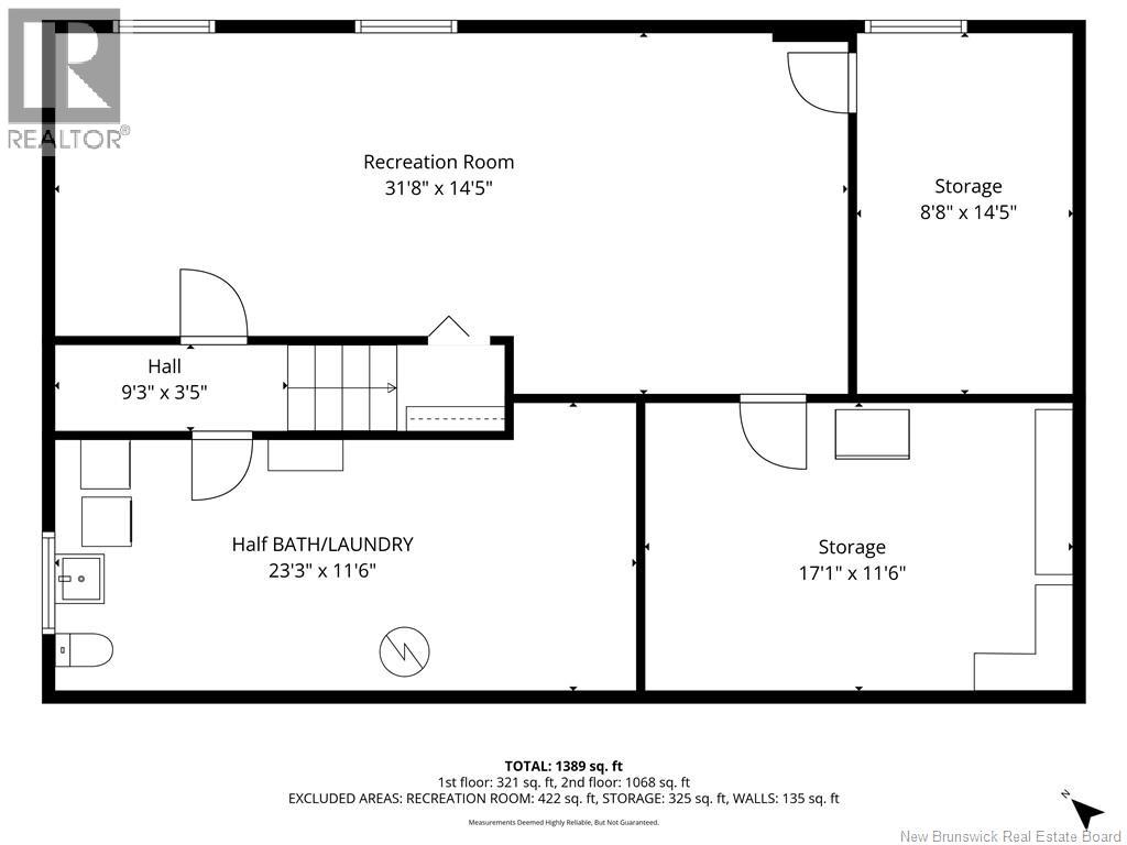
1389
Pieds carrés

Résumé de la propriété

Type de propriété
Unifamiliale
Type de bâtiment
Unifamilial
Étages
1
Superficie
1389 pi2
Titre
Tenure franche
Superficie du terrain
8208.56 pi2
Impôt foncier annuel
3 238,13 $
Sur REALTOR.ca depuis
1 journée

Édifice

Chambres
Au-dessus du niveau du sol
2
Salles de bain
Total
2
Partielle
1
Caractéristiques intérieures
Couvre-plancher
plancher recouvert de tapis, Céramique, plancher en stratifié, plancher de bois franc
Caractéristiques du bâtiment
Type de fondation
Fondation en béton
Style d'architecture
Bungalow
Chauffage et refroidissement
Système de refroidissement
Thermopompe, Échangeur d'air
Type de chauffage
Plinthes chauffantes, Thermopompe, (Électrique)
Services publics
Égouts
Égout municipal
Eau
Approvisionnement en eau par la municipalité
Caractéristiques extérieures
Revêtement extérieur
Vinyle

Mesures

Superficie
1389 pi2
Superficie finie au-dessus du niveau du sol
1068 pi2
Superficie totale aménagée
1389 pi2

Pièces

MétriqueImpérial
Deuxième niveau
Petit salon
Cuisine
Vestibule
Salle de bain - 3 éléments
Autre
Salon
Chambre principale
Salle à manger
Chambre à coucher
Sous-sol
Lieu de rangement
Autre
Buanderie
Salle de bain - 2 éléments
Lieu de rangement
Salle familiale
Données fournies par : REALTORS® du Nouveau Brunswick
Souhaitez-vous visiter cette propriété?
Demander une visite

Inscriptions semblables

Brenda Waye-Richard