Nous utilisons des témoins et d’autres technologies pour assurer le fonctionnement et la sécurité de nos services en ligne, et pour vous offrir une expérience personnalisée. En continuant à utiliser nos services en ligne, vous acceptez notre Politique de confidentialité et les conditions d’utilisation. Pour obtenir des informations sur la façon de régler vos paramètres de confidentialité, veuillez consulter notre Politique sur les témoins.
Masquer
Accueil ON Ottawa - Gatineau Clarence-Rockland
303 RUE DE L ETANG STREET
Directions Imprimer
303 RUE DE L ETANG STREET 519 900 $
Depuis 2 jours
519 900 $
Masquer
Favoris

303 RUE DE L ETANG STREET
Clarence-Rockland, Ontario K4K0K1

Numéro MLS® : X12817434
3
Chambres
3
Salles de bain
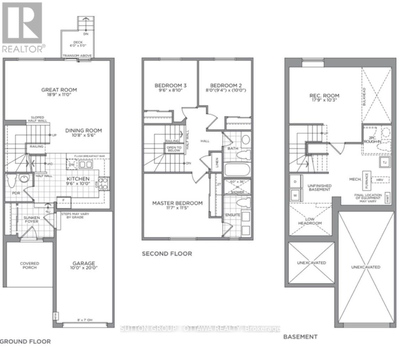
1100 - 1500
Pieds carrés

Résumé de la propriété

Type de propriété
Unifamiliale
Type de bâtiment
Maison en rangée
Étages
2
Superficie
1100 - 1500 pi2
Titre
Tenure franche
Superficie du terrain
20 x 118.1 FT
Âge de l'édifice
0 à 5 ans
Impôt foncier annuel
4 476,31 $
Type de stationnement
Garage attenant, Garage, Entrée intérieure
Sur REALTOR.ca depuis
2 jours

Édifice

Chambres
Au-dessus du niveau du sol
3
Salles de bain
Total
3
Partielle
1
Caractéristiques intérieures
Appareils électroménagers inclus
Lave-vaisselle, Sécheuse, Cuisinière, Machine à laver, Couvre-fenêtre, Réfrigérateur
Type de sous-sol
Aménagé
Caractéristiques du bâtiment
Type de fondation
Béton coulé
Style
En rangée
Location de matérial incluse
Chauffe-eau
Structures
Terrasse
Chauffage et refroidissement
Système de refroidissement
Climatisation centrale
Type de chauffage
Air pulsé (Gaz naturel)
Services publics
Égouts
Égout sanitaire
Eau
Approvisionnement en eau par la municipalité
Caractéristiques extérieures
Revêtement extérieur
Aluminium, Bardeaux
Stationnement
Type de stationnement
Garage attenant, Garage, Entrée intérieure
Nombre total d'espaces de stationnement
3

Mesures

Superficie
1100 - 1500 pi2

Pièces

MétriqueImpérial
Deuxième niveau
Chambre principale
Salle de bain
Deuxième chambre
Troisième chambre
Salle de bain
Sous-sol
Salle de jeux, récréative
Niveau du sol
Grande salle
Salle à manger
Cuisine
Vestibule

Terrain

Caractéristiques du terrain
Clôture
Cour clôturée
Façade
20 pi
Superficie du terrain
118 pi 1 po
Données fournies par : Ottawa Real Estate Board
Souhaitez-vous visiter cette propriété?
Demander une visite

Inscriptions semblables

Greg Tarasco