Nous utilisons des témoins et d’autres technologies pour assurer le fonctionnement et la sécurité de nos services en ligne, et pour vous offrir une expérience personnalisée. En continuant à utiliser nos services en ligne, vous acceptez notre Politique de confidentialité et les conditions d’utilisation. Pour obtenir des informations sur la façon de régler vos paramètres de confidentialité, veuillez consulter notre Politique sur les témoins.
Masquer
Accueil QC Grand Montréal Montréal Verdun Desmarchais-Crawford
685Z Rue Beatty
Directions Imprimer
685Z Rue Beatty 595 000 $
Depuis 3 jours
595 000 $
Masquer
Favoris

685Z Rue Beatty
Montréal (Verdun/Île-des-Soeurs), Québec H4H1X9

Numéro MLS® : 15238733
2
Chambres
1
Salles de bain
1154
Pieds carrés

Description de l’inscription

WOW !!! Superbe condo indivis situé au 2e étage d'un duplex entièrement rénové, sur l'une des rues les plus prisées de Verdun. Rénové avec des matériaux de qualité et un grand souci du détail, il se distingue par ses espaces généreux et sa polyvalence. Des travaux structuraux majeurs ont également été réalisés, incluant un potentiel d'aménagement d'une terrasse sur le toit. Design moderne, finitions soignées et emplacement de choix près des services, du métro et du fleuve. Une propriété clé en main aux multiples possibilités. (44630031)

Résumé de la propriété

Type de propriété
Unifamiliale
Type de bâtiment
Appartement
Superficie
1154 pi2
Quartier
Verdun
Titre
Copropriété indivise
Superficie du terrain
2408.96 pi2
Date de construction
1930
Sur REALTOR.ca depuis
3 jours

Édifice

Salles de bain
Total
1
Partielle
0
Caractéristiques du bâtiment
Style
Jumelée
Chauffage et refroidissement
Foyer
1
Type de foyer
(Gaz)
Type de chauffage
(Électrique)
Services publics
Égouts
Égout municipal
Eau
Approvisionnement en eau par la municipalité
Caractéristiques extérieures
Revêtement extérieur
Brique, Bois aggloméré
Caractéristiques du quartier
Commodités à proximité
Autoroute, Un cégep, Un hôpital, Écoles, Transport en commun, Université
Infos entretien ou copropriété
Frais d'entretien
1 $ mois

Mesures

Superficie
1154 pi2

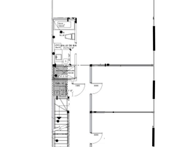
Pièces

MétriqueImpérial
Deuxième niveau
Chambre principale
Chambre à coucher
Salon
Salle à manger
Cuisine
Autre
Petit salon
Salle de bain

Terrain

Caractéristiques du terrain
Façade
30 pi 6 po
Autres informations sur la propriété
Type de Zonage
Résidentiel
Caractéristiques de la ferme
Type de ferme
Autre
Souhaitez-vous visiter cette propriété?
Demander une visite

Inscriptions semblables

Serge Gauvin