Nous utilisons des témoins et d’autres technologies pour assurer le fonctionnement et la sécurité de nos services en ligne, et pour vous offrir une expérience personnalisée. En continuant à utiliser nos services en ligne, vous acceptez notre Politique de confidentialité et les conditions d’utilisation. Pour obtenir des informations sur la façon de régler vos paramètres de confidentialité, veuillez consulter notre Politique sur les témoins.
Masquer
Accueil ON Grand Toronto Pickering Lamoreaux
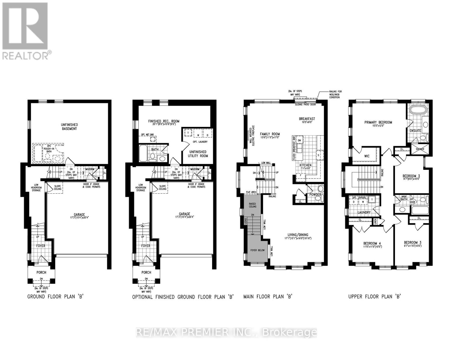
2938 STARLIGHT DRIVE
Directions Imprimer
2938 STARLIGHT DRIVE 1 119 990 $
Depuis 5 jours
1 119 990 $
Masquer
Favoris

2938 STARLIGHT DRIVE
Pickering, Ontario L1V2P8

Numéro MLS® : E12808786
4
Chambres
3
Salles de bain
2000 - 2500
Pieds carrés

Résumé de la propriété

Type de propriété
Unifamiliale
Type de bâtiment
Unifamilial
Étages
2.5
Superficie
2000 - 2500 pi2
Titre
Tenure franche
Superficie du terrain
3888 x 84.1 FT|moins de 1/2 acre
Impôt foncier annuel
0 $
Type de stationnement
Garage attenant, Garage
Sur REALTOR.ca depuis
5 jours

Édifice

Chambres
Au-dessus du niveau du sol
4
Salles de bain
Total
3
Partielle
1
Caractéristiques intérieures
Couvre-plancher
plancher de bois franc
Caractéristiques du sous-sol
Sous-sol à escalier
Type de sous-sol
Non aménagé
Caractéristiques du bâtiment
Caractéristiques
Terrain irrégulier
Type de fondation
Fondation en béton
Style
Isolée
Location de matérial incluse
Chauffe-eau
Chauffage et refroidissement
Système de refroidissement
Climatisation centrale
Type de chauffage
Air pulsé (Gaz naturel)
Services publics
Services publics disponibles
Service du câble (Installé), Électricité (Installé), Service d'égout (Installé)
Égouts
Égout sanitaire
Eau
Approvisionnement en eau par la municipalité
Caractéristiques extérieures
Revêtement extérieur
Brique
Stationnement
Type de stationnement
Garage attenant, Garage
Nombre total d'espaces de stationnement
2

Mesures

Superficie
2000 - 2500 pi2

Pièces

MétriqueImpérial
Niveau principal
Salon
Salle à manger
Cuisine
Salle de repas
Salle familiale
Deuxième niveau
Chambre principale
Deuxième chambre
Troisième chambre
Quatrième chambre

Terrain

Caractéristiques du terrain
Façade
3888 pi
Superficie du terrain
84 pi 1 po
Données fournies par : Toronto Regional Real Estate Board
Souhaitez-vous visiter cette propriété?
Demander une visite

Inscriptions semblables

DAVID VINCENT STABILE