Nous utilisons des témoins et d’autres technologies pour assurer le fonctionnement et la sécurité de nos services en ligne, et pour vous offrir une expérience personnalisée. En continuant à utiliser nos services en ligne, vous acceptez notre Politique de confidentialité et les conditions d’utilisation. Pour obtenir des informations sur la façon de régler vos paramètres de confidentialité, veuillez consulter notre Politique sur les témoins.
Masquer
Accueil AB Diamond Valley Turner Valley
316 John Avenue SW
Directions Imprimer
316 John Avenue SW 807 450 $
Depuis 6 jours
807 450 $
Masquer
Favoris

316 John Avenue SW
Diamond Valley, Alberta T0L2A0

Numéro MLS® : A2287940
4
Chambres
3
Salles de bain
1798
Pieds carrés

Résumé de la propriété

Type de propriété
Unifamiliale
Type de bâtiment
Unifamilial
Étages
2
Superficie
1798 pi2
Titre
Tenure franche
Superficie du terrain
5331.4 pi2|4 051 - 7 250 pi2
Date de construction
2026
Impôt foncier annuel
5 000 $
Type de stationnement
Garage attenant (2), Aire de stationnement
Sur REALTOR.ca depuis
6 jours

Édifice

Chambres
Au-dessus du niveau du sol
4
Salles de bain
Total
3
Partielle
1
Caractéristiques intérieures
Appareils électroménagers inclus
Machine à laver, Réfrigérateur, Lave-vaisselle, Cuisinière, Four, Sécheuse, Micro-ondes, Congélateur, Chauffe-eau sans réservoir
Couvre-plancher
Vinyle
Type de sous-sol
Sous-sol complet (Non aménagé)
Caractéristiques du bâtiment
Caractéristiques
Voie d'accès à l'arrière
Type de fondation
Béton coulé
Style
Isolée
Structures
Terrasse, Porche
Chauffage et refroidissement
Système de refroidissement
Aucun
Foyer
1
Type de chauffage
Air pulsé, (Gaz naturel)
Caractéristiques extérieures
Revêtement extérieur
Bardage en panneaux composites
Caractéristiques du quartier
Commodités à proximité
Écoles, Centres commerciaux
Stationnement
Type de stationnement
Garage attenant (2), Aire de stationnement
Nombre total d'espaces de stationnement
4

Mesures

Superficie
1798 pi2
Superficie totale aménagée
1798 pi2

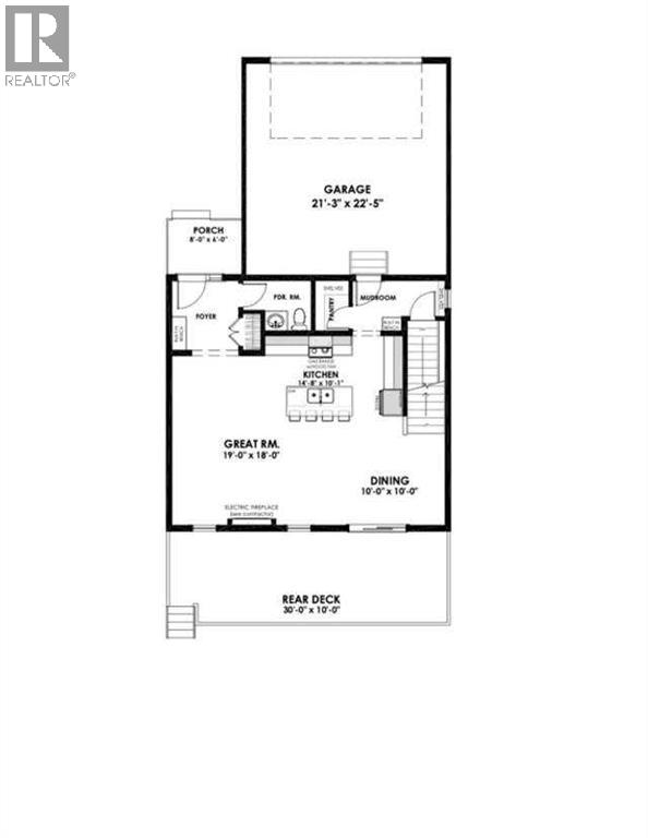
Pièces

MétriqueImpérial
Niveau principal
Cuisine
Salon
Salle à manger
Salle de bain - 2 éléments
Deuxième niveau
Chambre principale
Chambre à coucher
Chambre à coucher
Chambre à coucher
Salle de bain - 4 éléments
Salle de bain - 3 éléments

Terrain

Caractéristiques du terrain
Clôture
Partiellement clôturé
Façade
13.72 m
Superficie du terrain
36.27 m
Aménagement paysager
Terrain paysager
Données fournies par : Pillar 9™
Souhaitez-vous visiter cette propriété?
Demander une visite

Inscriptions semblables

Darya Pfund