Nous utilisons des témoins et d’autres technologies pour assurer le fonctionnement et la sécurité de nos services en ligne, et pour vous offrir une expérience personnalisée. En continuant à utiliser nos services en ligne, vous acceptez notre Politique de confidentialité et les conditions d’utilisation. Pour obtenir des informations sur la façon de régler vos paramètres de confidentialité, veuillez consulter notre Politique sur les témoins.
Masquer
Accueil QC Grand Montréal Sainte-Marthe-sur-le-Lac
536 Rue du Muscat
Directions Imprimer
536 Rue du Muscat 615 000 $
Depuis 7 jours
Prochaine visite libre
28
févr.
615 000 $
Masquer
Favoris

536 Rue du Muscat
Sainte-Marthe-sur-le-Lac, Québec J0N1P0

Numéro MLS® : 22532372
2
Chambres
1
Salles de bain

Description de l’inscription

Belle maison clé en main offrant un rez-de-chaussée lumineux et moderne à aire ouverte baigné de lumière naturelle. Extérieur entièrement aménagé avec grand balcon, cour clôturée et allée pouvant accueillir 3 voitures. À l'étage, deux chambres spacieuses avec de grands placards "walk-in". Le sous-sol partiellement aménagé offre la possibilité d'ajouter des pièces et salle de bain selon vos besoins. Garantie GCR active. Située à 5 minutes du REM, à proximité des écoles et des parcs, et à quelques minutes de la 640 et du Centre Commercial Promenades Deux-Montagnes. Confort, style et tranquillité dans un quartier calme et familial. (51913354)

Visites libres

28 févr.
10 h - 14 h
Ajouter au calendrier

Résumé de la propriété

Type de propriété
Unifamiliale
Type de bâtiment
Unifamilial
Étages
2
Quartier
Nord
Superficie du terrain
3481 pi2
Date de construction
2023
Type de stationnement
Abri d'auto, Autre
Sur REALTOR.ca depuis
7 jours

Édifice

Salles de bain
Total
1
Partielle
1
Caractéristiques intérieures
Caractéristiques du sous-sol
Six pieds et plus
Type de sous-sol
Sous-sol complet (Partiellement aménagé)
Caractéristiques du bâtiment
Caractéristiques
Terrain plat, Voie d'accès pavée, Armoires en mélamine, Fenêtres PVC
Type de fondation
Béton coulé
Style
Jumelée
Chauffage et refroidissement
Système de refroidissement
Unité murale, Échangeur d'air
Type de chauffage
(Électrique)
Services publics
Égouts
Égout municipal
Eau
Approvisionnement en eau par la municipalité
Caractéristiques extérieures
Matériaux du toit
Bardeaux d'asphalte
Revêtement extérieur
Aluminium, Brique
Caractéristiques du quartier
Commodités à proximité
Autoroute, Un hôpital, Parc, Écoles, Transport en commun
Stationnement
Type de stationnement
Abri d'auto, Autre
Nombre total d'espaces de stationnement
4

Mesures

Dimension du bâtiment - extérieur
1391 pi2

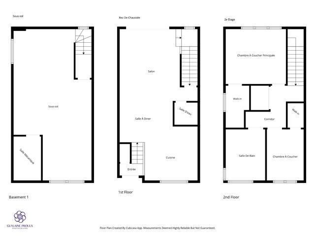
Pièces

MétriqueImpérial
Niveau principal
Autre
Cuisine
Salle à manger
Salon
Salle de bain
Deuxième niveau
Chambre principale
Autre
Chambre à coucher
Autre
Salle de bain
Sous-sol
Autre

Terrain

Autres informations sur la propriété
Type de Zonage
Résidentiel
Caractéristiques de la ferme
Type de ferme
Autre
Souhaitez-vous visiter cette propriété?
Demander une visite

Inscriptions semblables

Camille Benmergui