Nous utilisons des témoins et d’autres technologies pour assurer le fonctionnement et la sécurité de nos services en ligne, et pour vous offrir une expérience personnalisée. En continuant à utiliser nos services en ligne, vous acceptez notre Politique de confidentialité et les conditions d’utilisation. Pour obtenir des informations sur la façon de régler vos paramètres de confidentialité, veuillez consulter notre Politique sur les témoins.
Masquer
Accueil ON Grand Toronto Toronto Vieux Toronto North St.James Town
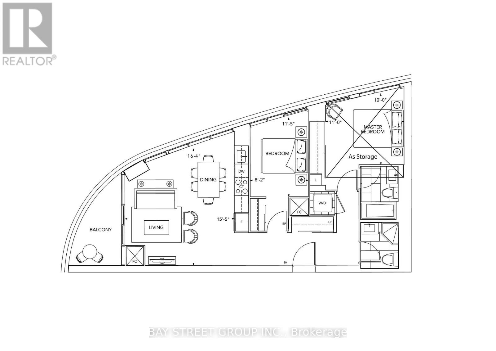
822 - 585 BLOOR STREET
Directions Imprimer
822 - 585 BLOOR STREET 2 380 $/mois
2 380 $/mois
Masquer
Favoris

822 - 585 BLOOR STREET
Toronto (North St. James Town), Ontario M4W0B3

Numéro MLS® : C12800266
1
Chambres
1
Salles de bain
700 - 799
Pieds carrés

Résumé de la propriété

Type de propriété
Unifamiliale
Type de bâtiment
Appartement
Superficie
700 - 799 pi2
Titre
Copropriété divise
Âge de l'édifice
Bâtiment neuf
Type de stationnement
Stationnement souterrain, Garage
Sur REALTOR.ca depuis
8 jours

Édifice

Chambres
Au-dessus du niveau du sol
1
Salles de bain
Total
1
Caractéristiques intérieures
Type de sous-sol
Pas de sous-sol
Caractéristiques du bâtiment
Caractéristiques
Balcon, Sans tapis
Chauffage et refroidissement
Système de refroidissement
Climatisation centrale
Type de chauffage
Air pulsé (Gaz naturel)
Caractéristiques extérieures
Revêtement extérieur
Béton
Caractéristiques du quartier
Caractéristiques de la communauté
Animaux permis avec restrictions
Infos entretien ou copropriété
Société de gestion de l'entretien
Del Property Management Inc.
Stationnement
Type de stationnement
Stationnement souterrain, Garage
Nombre total d'espaces de stationnement
1

Mesures

Superficie
700 - 799 pi2
Données fournies par : Toronto Regional Real Estate Board
Souhaitez-vous visiter cette propriété?
Demander une visite

Inscriptions semblables

STEPHEN YU