Nous utilisons des témoins et d’autres technologies pour assurer le fonctionnement et la sécurité de nos services en ligne, et pour vous offrir une expérience personnalisée. En continuant à utiliser nos services en ligne, vous acceptez notre Politique de confidentialité et les conditions d’utilisation. Pour obtenir des informations sur la façon de régler vos paramètres de confidentialité, veuillez consulter notre Politique sur les témoins.
Masquer
Accueil ON Muskoka Georgian Bay
804 KINGS FARM ROAD
Directions Imprimer
804 KINGS FARM ROAD 2 450 000 $
2 450 000 $
Masquer
Favoris

804 KINGS FARM ROAD
Georgian Bay (Baxter), Ontario L0K1S0

Numéro MLS® : X12797844
3 + 1
Chambres
4
Salles de bain
3500 - 5000
Pieds carrés

Résumé de la propriété

Type de propriété
Unifamiliale
Type de bâtiment
Unifamilial
Étages
1
Superficie
3500 - 5000 pi2
Titre
Tenure franche
Superficie du terrain
110 x 196.6 FT
Impôt foncier annuel
7 417 $
Type de stationnement
Garage attenant, Garage
Sur REALTOR.ca depuis
9 jours

Édifice

Chambres
Au-dessus du niveau du sol
3
Au-dessous du niveau du sol
1
Salles de bain
Total
4
Caractéristiques intérieures
Appareils électroménagers inclus
Aspirateur central, Chauffe-eau, Adoucisseur d'eau, Lave-vaisselle, Sécheuse, Micro-ondes, Cuisinière, Machine à laver, Réfrigérateur
Caractéristiques du sous-sol
Sous-sol à niveau, Entrée distincte
Type de sous-sol
AménagéSous-sol complet
Caractéristiques du bâtiment
Caractéristiques
Zone boisée, En pente, Espace ouvert, Terrain plat, Éclairage, Marais, Sans tapis, Sauna
Type de fondation
Blocs de béton
Style
Isolée
Style d'architecture
Bungalow
Protection contre les incendies
Détecteurs de fumée
Commodités qu'offre le bâtiment
Foyer(s)
Structures
Terrasse, Terrasse(s), Porche
Chauffage et refroidissement
Système de refroidissement
Climatisation centrale
Foyer
3
Type de chauffage
Air pulsé (Propane)
Services publics
Services publics disponibles
Service du câble (Disponible), Sans fil (Disponible), Électricité connectée (Raccordés)
Service public - Électricité
Générateur
Égouts
Fosse septique
Eau
Puits foré à la sondeuse
Caractéristiques extérieures
Revêtement extérieur
Pierre
Caractéristiques du quartier
Caractéristiques de la communauté
Pêche
Commodités à proximité
Plage
Stationnement
Type de stationnement
Garage attenant, Garage
Nombre total d'espaces de stationnement
14

Mesures

Superficie
3500 - 5000 pi2

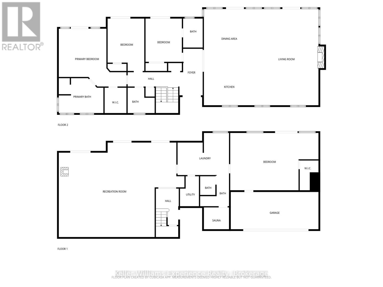
Pièces

MétriqueImpérial
Niveau principal
Vestibule
Salon
Salle à manger
Cuisine
Chambre principale
Deuxième chambre
Troisième chambre
Niveau inférieur
Local de services
Salle de jeux, récréative
Buanderie
Quatrième chambre

Terrain

Caractéristiques du terrain
Façade
110 pi
Superficie du terrain
196 pi 7 po
Aménagement paysager
Terrain paysager
Vue
Vue, Vue sur le lac, Vue sur l'eau, vue directe sur l'eau
Autres informations sur la propriété
Accès
Voie publique, Voie privée, Amarrage privé
Servitudes
Inconnu
Caractéristiques du bord de l'eau
Bord de l'eau
Bord du lac
Eau de surface
lac/Étang
Accès
Amarrage privé
Données fournies par : OnePoint - The Lakelands
Souhaitez-vous visiter cette propriété?
Demander une visite

Inscriptions semblables

ERIC BEUTLER