Nous utilisons des témoins et d’autres technologies pour assurer le fonctionnement et la sécurité de nos services en ligne, et pour vous offrir une expérience personnalisée. En continuant à utiliser nos services en ligne, vous acceptez notre Politique de confidentialité et les conditions d’utilisation. Pour obtenir des informations sur la façon de régler vos paramètres de confidentialité, veuillez consulter notre Politique sur les témoins.
Masquer
Accueil NS Grand Halifax Comté de Halifax Halifax Lawrencetown
25 JAN MARIE Drive
Directions Imprimer
25 JAN MARIE Drive 569 000 $
Prochaine visite libre
1
mars
569 000 $
Masquer
Favoris

25 JAN MARIE Drive
Lawrencetown, Nouvelle-Écosse B2Z1E2

Numéro MLS® : 202602903
4
Chambres
2
Salles de bain
1250
Pieds carrés

Visites libres

1 mars
14 h - 16 h
Ajouter au calendrier

Résumé de la propriété

Type de propriété
Unifamiliale
Type de bâtiment
Unifamilial
Étages
2
Superficie
1250 pi2
Titre
Tenure franche
Superficie du terrain
0.779 a
Type de stationnement
Gravier
Sur REALTOR.ca depuis
9 jours

Prix et historique

Date Statut Prix vendu
10 févr. 2025 Vente conclue 77 500 $

Édifice

Chambres
Au-dessus du niveau du sol
4
Salles de bain
Total
2
Partielle
1
Caractéristiques intérieures
Appareils électroménagers inclus
Cuisinière, Lave-vaisselle, Ensemble machine à laver/sécheuse, Micro-ondes, Réfrigérateur, Adoucisseur d'eau
Couvre-plancher
Tuile de porcelaine, Vinyle
Type de sous-sol
Pas de sous-sol
Caractéristiques du bâtiment
Caractéristiques
Plat
Type de fondation
Dalle en béton
Style
Isolée
Chauffage et refroidissement
Système de refroidissement
Unité murale, Thermopompe
Services publics
Égouts
Fosse septique
Eau
Puits foré à la sondeuse
Caractéristiques extérieures
Revêtement extérieur
Vinyle
Caractéristiques du quartier
Caractéristiques de la communauté
Autobus scolaire
Commodités à proximité
Parc, Terrain de jeu, Plage
Stationnement
Type de stationnement
Gravier
Fonctions d’accessibilité
Entrée et accès
Cadres de porte d'entrée : min. 32 po, Entrée : moins de 3 marches, Seuil de passage : moins de ½ pouce
Cuisine et électroménagers
Diamètre de rotation dans la cuisine : min. 5 pi
Déplacement à l'intérieur
Cadres de porte : min. 32 po, Couloirs : min. 32 po

Mesures

Superficie
1250 pi2
Superficie totale aménagée
1250 pi2

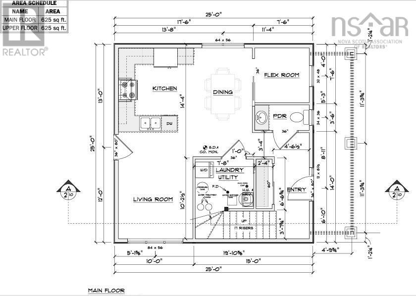
Pièces

MétriqueImpérial
Niveau principal
Vestibule
Cuisine
Recoin-repas
Salon
Bain (nbre de pièces 1-6)
Buanderie
Chambre à coucher
Vestibule
Deuxième niveau
Chambre principale
Chambre à coucher
Chambre à coucher
Bain (nbre de pièces 1-6)
Données fournies par : Nova Scotia Association of REALTORS®
Souhaitez-vous visiter cette propriété?
Demander une visite

902-452-5725
902-406-4141
902-452-5725
Site Web du courtier ou de l'agent

Inscriptions semblables

Linda Clarke