Nous utilisons des témoins et d’autres technologies pour assurer le fonctionnement et la sécurité de nos services en ligne, et pour vous offrir une expérience personnalisée. En continuant à utiliser nos services en ligne, vous acceptez notre Politique de confidentialité et les conditions d’utilisation. Pour obtenir des informations sur la façon de régler vos paramètres de confidentialité, veuillez consulter notre Politique sur les témoins.
Masquer
Accueil BC Grand Vancouver Coquitlam Ranch Park
3088 LAZY A STREET
Directions Imprimer
3088 LAZY A STREET 1 499 900 $
1 499 900 $
Masquer
Favoris

3088 LAZY A STREET
Coquitlam, Colombie-Britannique V3C3N9

Numéro MLS® : R3090540
4
Chambres
3
Salles de bain
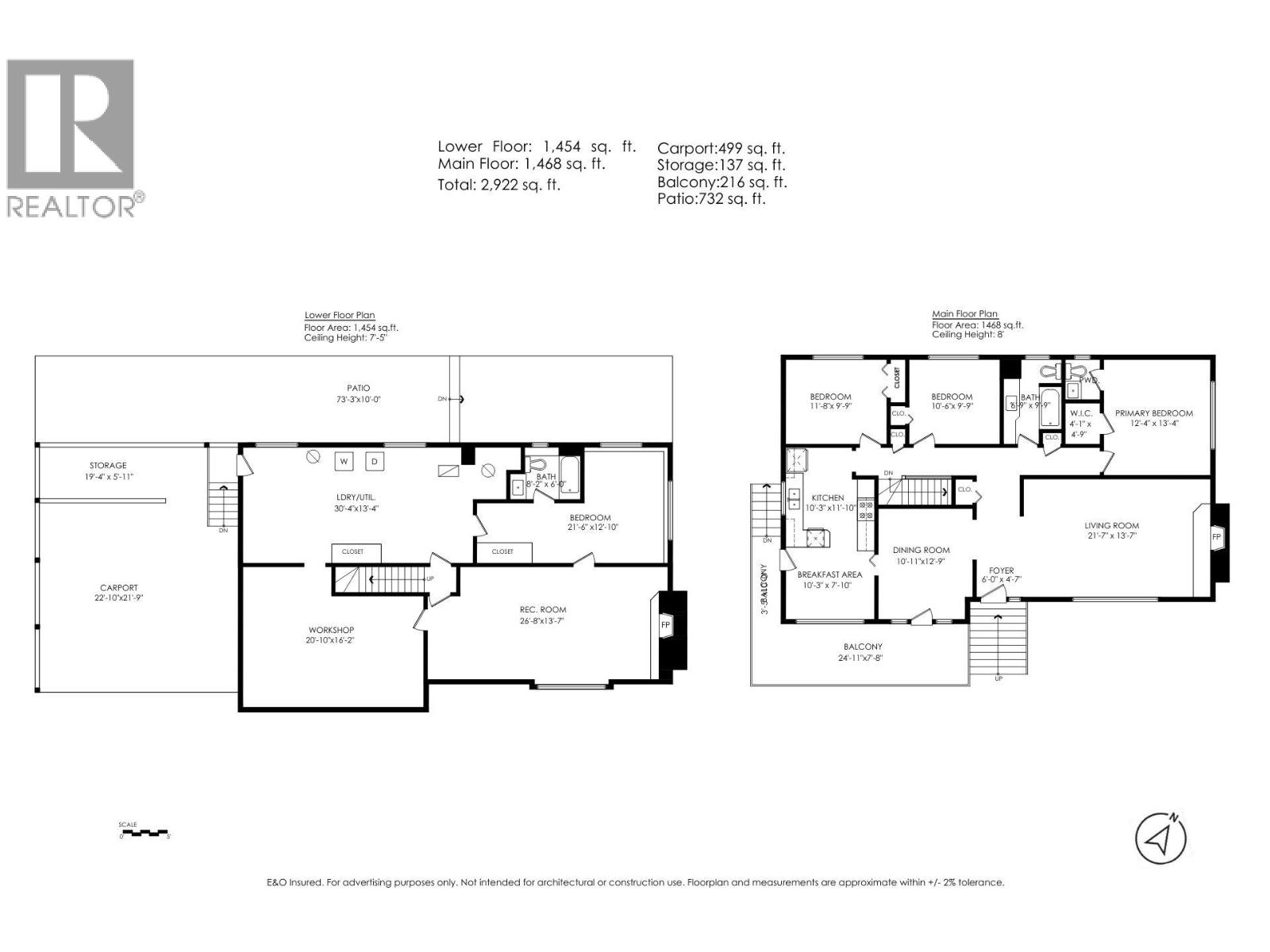
2922
Pieds carrés

Résumé de la propriété

Type de propriété
Unifamiliale
Type de bâtiment
Unifamilial
Étages
1
Superficie
2922 pi2
Titre
Tenure franche
Superficie du terrain
9900 pi2
Date de construction
1959
Impôt foncier annuel
5 912,25 $
Nombre total d'espaces de stationnement
4
Sur REALTOR.ca depuis
9 jours

Édifice

Salles de bain
Total
3
Caractéristiques intérieures
Appareils électroménagers inclus
Toutes les options
Accessoires fixes inclus
Draperies/Couvre-fenêtres
Caractéristiques du sous-sol
Inconnu
Type de sous-sol
Sous-sol complet (Inconnu)
Caractéristiques du bâtiment
Caractéristiques
Site central
Style
Isolée
Style d'architecture
Bungalow
Commodités qu'offre le bâtiment
Buanderie – dans l’appartement
Chauffage et refroidissement
Foyer
2
Type de chauffage
Eau chaude, Chauffage par rayonnement
Caractéristiques du quartier
Commodités à proximité
Loisirs, Centres commerciaux
Stationnement
Nombre total d'espaces de stationnement
4

Mesures

Superficie
2922 pi2

Terrain

Caractéristiques du terrain
Façade
87 pi 11 po
Aménagement paysager
Jardin
Vue
Vue
Données fournies par : Greater Vancouver REALTORS®
Souhaitez-vous visiter cette propriété?
Demander une visite

Inscriptions semblables

David Reimers