Nous utilisons des témoins et d’autres technologies pour assurer le fonctionnement et la sécurité de nos services en ligne, et pour vous offrir une expérience personnalisée. En continuant à utiliser nos services en ligne, vous acceptez notre Politique de confidentialité et les conditions d’utilisation. Pour obtenir des informations sur la façon de régler vos paramètres de confidentialité, veuillez consulter notre Politique sur les témoins.
Masquer
Accueil NB Grand Fredericton Comté de Sunbury Lincoln
34 Berry Drive
Directions Imprimer
34 Berry Drive 579 900 $
579 900 $
Masquer
Favoris

34 Berry Drive
Rusagonis, Nouveau-Brunswick E3B0V9

Numéro MLS® : NB133661
3 + 1
Chambres
3
Salles de bain
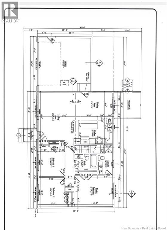
1836
Pieds carrés

Résumé de la propriété

Type de propriété
Unifamiliale
Type de bâtiment
Unifamilial
Étages
1
Superficie
1836 pi2
Titre
Tenure franche
Superficie du terrain
4070 pi2
Date de construction
2025
Type de stationnement
Garage attenant, Garage
Sur REALTOR.ca depuis
9 jours

Édifice

Chambres
Au-dessus du niveau du sol
3
Au-dessous du niveau du sol
1
Salles de bain
Total
3
Partielle
0
Caractéristiques intérieures
Couvre-plancher
Vinyle
Type de sous-sol
Sous-sol complet (Partiellement aménagé)
Caractéristiques du bâtiment
Caractéristiques
Balcon/terrasse
Type de fondation
Fondation en béton
Style d'architecture
Bungalow, 2 étages
Chauffage et refroidissement
Système de refroidissement
Thermopompe, Échangeur d'air
Type de chauffage
Plinthes chauffantes, Thermopompe, (Électrique)
Services publics
Égouts
Fosse septique
Eau
Puits
Caractéristiques extérieures
Revêtement extérieur
Vinyle
Stationnement
Type de stationnement
Garage attenant, Garage

Mesures

Superficie
1836 pi2
Superficie finie au-dessus du niveau du sol
1204 pi2
Superficie totale aménagée
1836 pi2

Pièces

MétriqueImpérial
Niveau principal
Bain (nbre de pièces 1-6)
Chambre à coucher
Chambre à coucher
Chambres communicantes, agencement en suite
Chambre principale
Salon
Salle à manger
Cuisine
Sous-sol
Bain (nbre de pièces 1-6)
Chambre à coucher
Salle familiale

Terrain

Autres informations sur la propriété
Accès
Accès toute l'année, Voie publique
Données fournies par : REALTORS® du Nouveau Brunswick
Souhaitez-vous visiter cette propriété?
Demander une visite

Inscriptions semblables

Sarah Justason