Nous utilisons des témoins et d’autres technologies pour assurer le fonctionnement et la sécurité de nos services en ligne, et pour vous offrir une expérience personnalisée. En continuant à utiliser nos services en ligne, vous acceptez notre Politique de confidentialité et les conditions d’utilisation. Pour obtenir des informations sur la façon de régler vos paramètres de confidentialité, veuillez consulter notre Politique sur les témoins.
Masquer
Accueil ON Grand Hamilton Hamilton Old Hamilton Central
206 KING Street W Unit# 1006
Directions Imprimer
206 KING Street W Unit# 1006 1 750 $/mois
1 750 $/mois
Masquer
Favoris

206 KING Street W Unit# 1006
Hamilton, Ontario L8P1A5

Numéro MLS® : 40804935
1
Chambres
0
Salles de bain
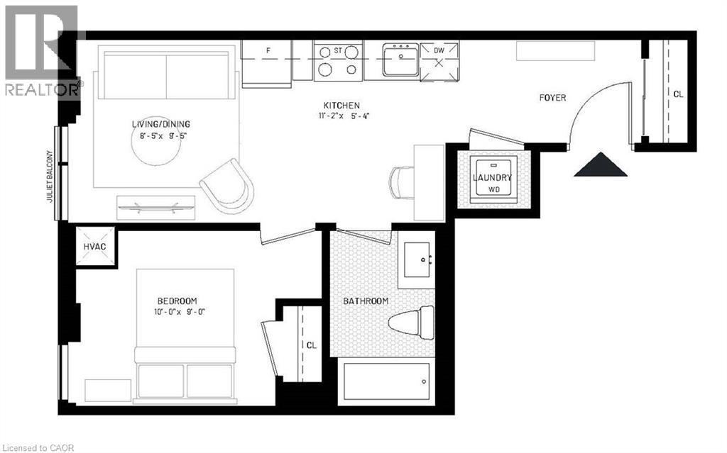
498
Pieds carrés

Résumé de la propriété

Type de propriété
Unifamiliale
Type de bâtiment
Appartement
Étages
1
Superficie
498 pi2
Titre
Copropriété divise
Superficie du terrain
Inconnu
Type de stationnement
Stationnement souterrain, Pas de stationnement
Sur REALTOR.ca depuis
14 jours

Édifice

Chambres
Au-dessus du niveau du sol
1
Salles de bain
Total
0
Caractéristiques intérieures
Type de sous-sol
Pas de sous-sol
Caractéristiques du bâtiment
Caractéristiques
Balcon
Style
En rangée
Commodités qu'offre le bâtiment
Salle d'exercises, Salle de réception
Entreposage
Armoire vestiaire
Unités totales
0
Chauffage et refroidissement
Système de refroidissement
Climatisation centrale
Type de chauffage
Air pulsé
Services publics
Eau
Aucun
Caractéristiques extérieures
Revêtement extérieur
Brique
Caractéristiques du quartier
Commodités à proximité
Un hôpital, Transport en commun
Infos entretien ou copropriété
Les frais d'entretien comprennent
Assurance
Stationnement
Type de stationnement
Stationnement souterrain, Pas de stationnement

Mesures

Superficie
498 pi2
Superficie finie au-dessus du niveau du sol
498 pi2
Source : Constructeur

Pièces

MétriqueImpérial
Niveau principal
Chambre à coucher
Cuisine
Salle à manger
Salon
Souhaitez-vous visiter cette propriété?
Demander une visite

Inscriptions semblables

ASIF CHASMAWALA