Nous utilisons des témoins et d’autres technologies pour assurer le fonctionnement et la sécurité de nos services en ligne, et pour vous offrir une expérience personnalisée. En continuant à utiliser nos services en ligne, vous acceptez notre Politique de confidentialité et les conditions d’utilisation. Pour obtenir des informations sur la façon de régler vos paramètres de confidentialité, veuillez consulter notre Politique sur les témoins.
Masquer
Accueil ON Ottawa - Gatineau Ottawa Cityview - Skyline - Fisher Heights
30 SUNNYCREST DRIVE
Directions Imprimer
30 SUNNYCREST DRIVE 685 000 $
Modification du prix le 2026/02/27
685 000 $
+20 000 $
665 000 $
Masquer
Favoris

30 SUNNYCREST DRIVE
Ottawa, Ontario K2E5Y2

Numéro MLS® : X12782674
4
Chambres
2
Salles de bain
1500 - 2000
Pieds carrés

Résumé de la propriété

Type de propriété
Unifamiliale
Type de bâtiment
Unifamilial
Étages
2
Superficie
1500 - 2000 pi2
Titre
Tenure franche
Superficie du terrain
72.5 x 107 FT
Impôt foncier annuel
5 384,55 $
Type de stationnement
Garage détaché, Garage
Sur REALTOR.ca depuis
14 jours

Édifice

Chambres
Au-dessus du niveau du sol
4
Salles de bain
Total
2
Partielle
1
Caractéristiques intérieures
Appareils électroménagers inclus
Lave-vaisselle, Sécheuse, Micro-ondes, Cuisinière, Machine à laver, Réfrigérateur
Type de sous-sol
Non aménagé
Caractéristiques du bâtiment
Type de fondation
Blocs de béton
Style
Isolée
Location de matérial incluse
Chauffe-eau
Chauffage et refroidissement
Système de refroidissement
Climatisation centrale
Type de chauffage
Air pulsé (Gaz naturel)
Services publics
Services publics disponibles
Service du câble (Disponible), Électricité (Disponible), Service d'égout (Disponible)
Égouts
Égout sanitaire
Eau
Approvisionnement en eau par la municipalité
Stationnement
Type de stationnement
Garage détaché, Garage
Nombre total d'espaces de stationnement
5

Mesures

Superficie
1500 - 2000 pi2

Pièces

MétriqueImpérial
Niveau principal
Salle de bain
Salon
Salle familiale
Quatrième chambre
Cuisine
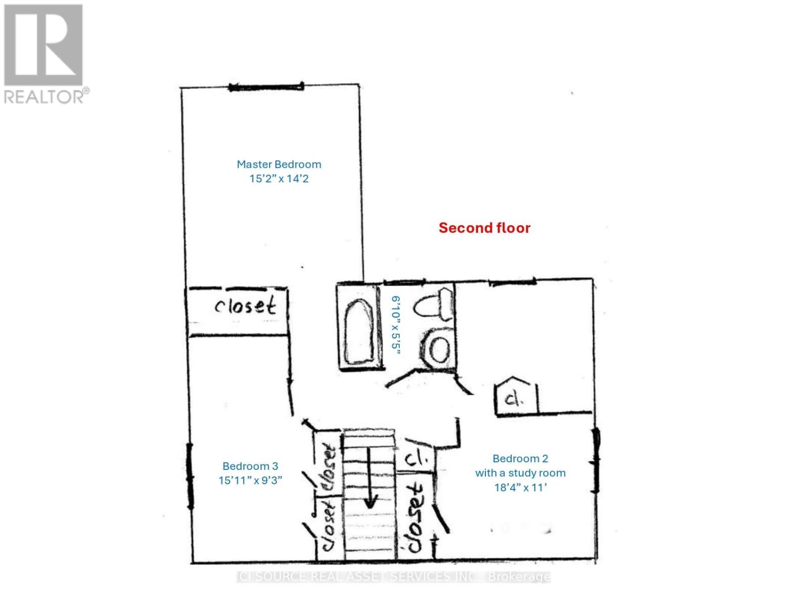
Deuxième niveau
Chambre à coucher
Deuxième chambre
Quatrième chambre
Salle de bain

Terrain

Caractéristiques du terrain
Façade
72 pi 6 po
Superficie du terrain
107 pi
Données fournies par : Toronto Regional Real Estate Board
Souhaitez-vous visiter cette propriété?
Demander une visite

Inscriptions semblables

JAMES TASCA