Nous utilisons des témoins et d’autres technologies pour assurer le fonctionnement et la sécurité de nos services en ligne, et pour vous offrir une expérience personnalisée. En continuant à utiliser nos services en ligne, vous acceptez notre Politique de confidentialité et les conditions d’utilisation. Pour obtenir des informations sur la façon de régler vos paramètres de confidentialité, veuillez consulter notre Politique sur les témoins.
Masquer
Accueil QC Grand Montréal Thérèse-De Blainville Lorraine
53 Boul. du Val-d'Ajol
Directions Imprimer
53 Boul. du Val-d'Ajol 775 000 $
775 000 $
Masquer
Favoris

53 Boul. du Val-d'Ajol
Lorraine, Québec J6Z3V7

Numéro MLS® : 10311321
5
Chambres
2
Salles de bain
-
Pieds carrés

Description de l’inscription

53 rue Val-d'Ajol, Lorraine. EMPLACEMENT DE CHOIX ! Magnifique maison familiale située dans un secteur recherché. Plusieurs pièces offrant espace et fonctionnalité. Superbe foyer dans la salle familiale, parfait pour des soirées chaleureuses. Salon lumineux grâce à une belle fenestration (bay window). 5 chambres au total (3+2), idéal pour une grande famille ou bureaux à domicile. Salle de jeux conviviale au sous-sol. Grande cour offrant espace et intimité (pas de voisins avec vue dans la cour). Garage de 24 pieds de profondeur. À proximité des épiceries des écoles et des parcs + sentiers pédestres. Accès rapide à l'autoroute sans l'entendre (39664075)

Résumé de la propriété

Type de propriété
Unifamiliale
Type de bâtiment
Unifamilial
Étages
2
Superficie du terrain
650.3 m2
Date de construction
1983
Type de stationnement
Garage, Garage intégré, Autre
Sur REALTOR.ca depuis
15 jours

Édifice

Salles de bain
Total
2
Partielle
0
Caractéristiques intérieures
Caractéristiques du sous-sol
Six pieds et plus
Type de sous-sol
Sous-sol complet (Aménagé)
Caractéristiques du bâtiment
Caractéristiques
Terrain plat, Voie d'accès en pavés unis, Fenêtres en bois, Fenêtres PVC, Fenêtres à manivelle
Type de fondation
Béton coulé
Style
Isolée
Chauffage et refroidissement
Foyer
1
Type de foyer
(Bois)
Type de chauffage
(Électrique), (Gaz naturel)
Services publics
Égouts
Égout municipal
Eau
Approvisionnement en eau par la municipalité
Caractéristiques extérieures
Matériaux du toit
Bardeaux d'asphalte
Revêtement extérieur
Brique, Vinyle
Caractéristiques du quartier
Commodités à proximité
Autoroute, Terrain de golf, Parc, Écoles, Transport en commun
Stationnement
Type de stationnement
Garage, Garage intégré, Autre
Nombre total d'espaces de stationnement
5

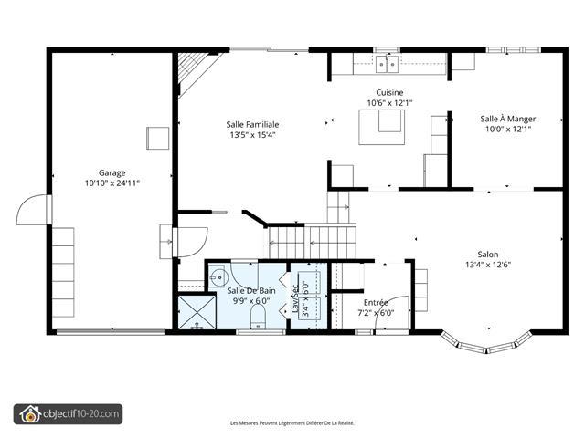
Pièces

MétriqueImpérial
Niveau principal
Autre
Salon
Salle à manger
Cuisine
Salle familiale
Salle de bain
Deuxième niveau
Chambre à coucher
Salle de bain
Chambre principale
Chambre à coucher
Sous-sol
Chambre à coucher
Autre
Lieu de rangement
Chambre à coucher
Salle familiale
Autre
Lieu de rangement

Terrain

Caractéristiques du terrain
Façade
30.48 m
Autres informations sur la propriété
Type de Zonage
Résidentiel
Caractéristiques de la ferme
Type de ferme
Autre
Souhaitez-vous visiter cette propriété?
Demander une visite

Inscriptions semblables

Maxime Beaulac