Nous utilisons des témoins et d’autres technologies pour assurer le fonctionnement et la sécurité de nos services en ligne, et pour vous offrir une expérience personnalisée. En continuant à utiliser nos services en ligne, vous acceptez notre Politique de confidentialité et les conditions d’utilisation. Pour obtenir des informations sur la façon de régler vos paramètres de confidentialité, veuillez consulter notre Politique sur les témoins.
Masquer
Accueil ON St. Catharines - Niagara Région de Niagara Port Colborne Sugarloaf
401 FIELDEN AVENUE
Directions Imprimer
401 FIELDEN AVENUE 549 900 $
Modification du prix le 2026/02/27
549 900 $
-20 000 $
569 900 $
Masquer
Favoris

401 FIELDEN AVENUE
Port Colborne (Sugarloaf), Ontario L3K4T9

Numéro MLS® : X12780958
3 + 1
Chambres
2
Salles de bain
1500 - 2000
Pieds carrés

Résumé de la propriété

Type de propriété
Unifamiliale
Type de bâtiment
Unifamilial
Étages
1.5
Superficie
1500 - 2000 pi2
Titre
Tenure franche
Superficie du terrain
49 x 223.8 FT|moins de 1/2 acre
Impôt foncier annuel
4 265 $
Type de stationnement
Garage détaché, Garage
Sur REALTOR.ca depuis
15 jours

Édifice

Chambres
Au-dessus du niveau du sol
3
Au-dessous du niveau du sol
1
Salles de bain
Total
2
Partielle
1
Caractéristiques intérieures
Appareils électroménagers inclus
Chauffe-eau, Compteur d'eau, Cuisinière, Réfrigérateur
Caractéristiques du sous-sol
Sous-sol à niveau
Type de sous-sol
Sous-sol complet, Aménagé
Caractéristiques du bâtiment
Caractéristiques
Belvédère
Type de fondation
Fondation en béton
Style
Isolée
Commodités qu'offre le bâtiment
Foyer(s)
Structures
Terrasse, Porche, Terrasse(s)
Chauffage et refroidissement
Système de refroidissement
Climatisation centrale
Foyer
2
Type de chauffage
Air pulsé (Gaz naturel)
Services publics
Services publics disponibles
Service du câble (Installé), Électricité (Installé), Service d'égout (Installé)
Égouts
Égout sanitaire
Eau
Approvisionnement en eau par la municipalité
Caractéristiques extérieures
Revêtement extérieur
Bardage en vinyle
Caractéristiques du quartier
Commodités à proximité
Parc, Écoles, Transport en commun, Marina, Lieu de culte
Stationnement
Type de stationnement
Garage détaché, Garage
Nombre total d'espaces de stationnement
4

Mesures

Superficie
1500 - 2000 pi2

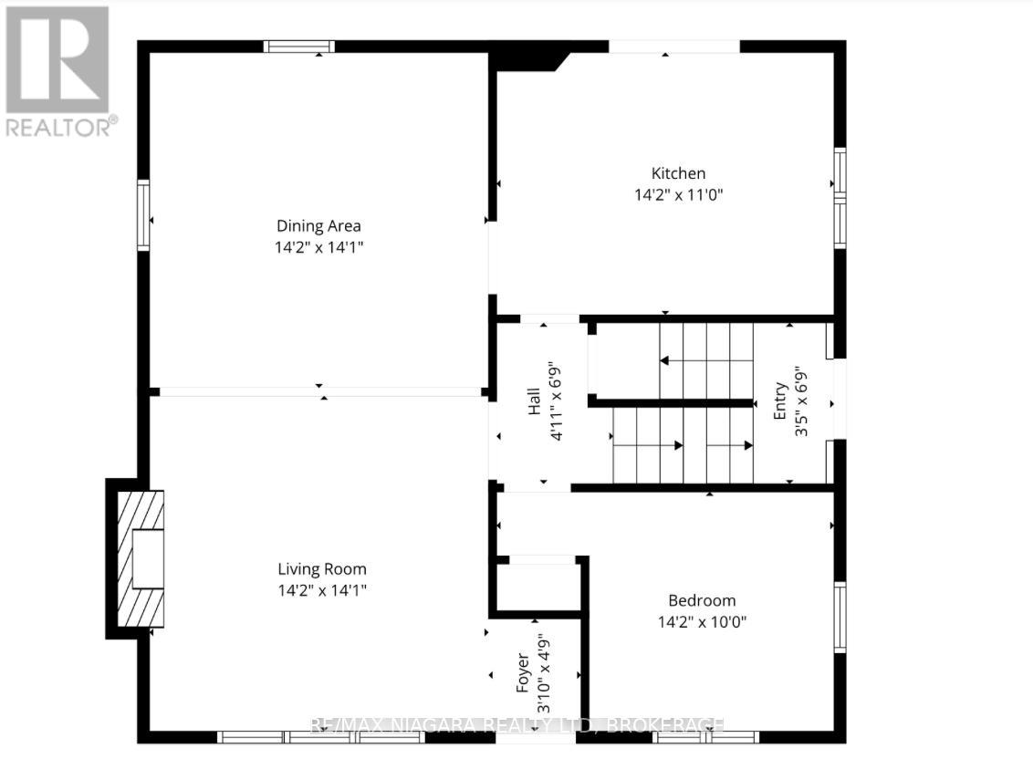
Pièces

MétriqueImpérial
Niveau principal
Salon
Salle à manger
Cuisine
Chambre à coucher
Deuxième niveau
Chambre principale
Troisième chambre
Salle de bain
Sous-sol
Local de services
Salle de jeux, récréative
Salle de bain
Autre

Terrain

Caractéristiques du terrain
Façade
49 pi
Superficie du terrain
223 pi 9 po
Aménagement paysager
Terrain paysager
Données fournies par : Niagara Association of REALTORS®
Souhaitez-vous visiter cette propriété?
Demander une visite

Inscriptions semblables

Michael Davis