Nous utilisons des témoins et d’autres technologies pour assurer le fonctionnement et la sécurité de nos services en ligne, et pour vous offrir une expérience personnalisée. En continuant à utiliser nos services en ligne, vous acceptez notre Politique de confidentialité et les conditions d’utilisation. Pour obtenir des informations sur la façon de régler vos paramètres de confidentialité, veuillez consulter notre Politique sur les témoins.
Masquer
Accueil ON Ingersoll Comté d'Oxford
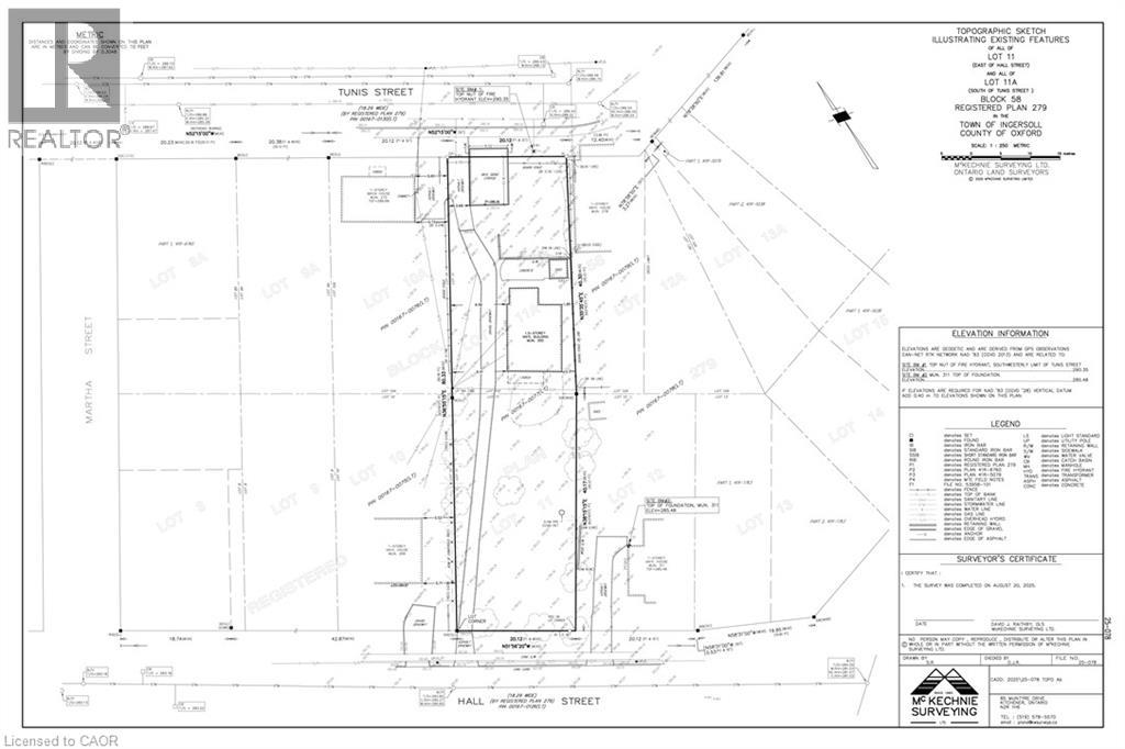
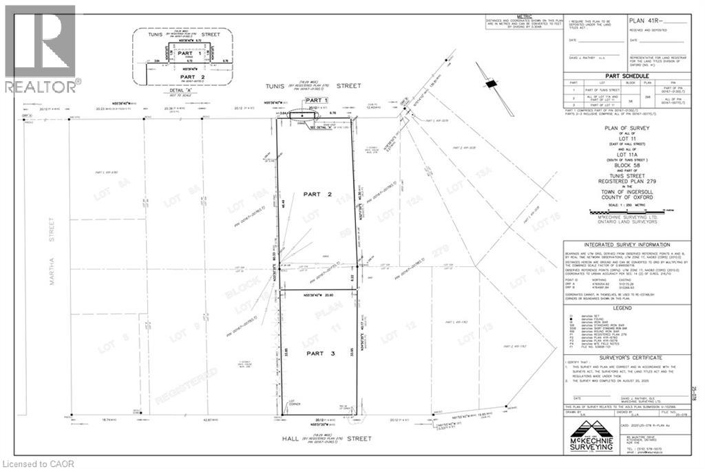
305 HALL Street
Directions Imprimer
305 HALL Street 369 000 $
369 000 $
Masquer
Favoris

305 HALL Street
Ingersoll, Ontario N5C1V8

Numéro MLS® : 40804000

Résumé de la propriété

Type de propriété
Terrain vacant
Titre
Tenure franche
Superficie du terrain
moins de 1/2 acre
Impôt foncier annuel
0 $
Sur REALTOR.ca depuis
16 jours

Édifice

Caractéristiques intérieures
Type de sous-sol
Pas de sous-sol
Services publics
Services publics disponibles
Gaz naturel (Disponible), Téléphone (Disponible)
Égouts
Égout municipal
Eau
Approvisionnement en eau par la municipalité
Caractéristiques du quartier
Commodités à proximité
Écoles

Terrain

Caractéristiques du terrain
Façade
66 pi
Souhaitez-vous visiter cette propriété?
Demander une visite

Inscriptions semblables

PETER KOSTECKI