Nous utilisons des témoins et d’autres technologies pour assurer le fonctionnement et la sécurité de nos services en ligne, et pour vous offrir une expérience personnalisée. En continuant à utiliser nos services en ligne, vous acceptez notre Politique de confidentialité et les conditions d’utilisation. Pour obtenir des informations sur la façon de régler vos paramètres de confidentialité, veuillez consulter notre Politique sur les témoins.
Masquer
Accueil ON St. Catharines - Niagara Région de Niagara Niagara Falls Stamford
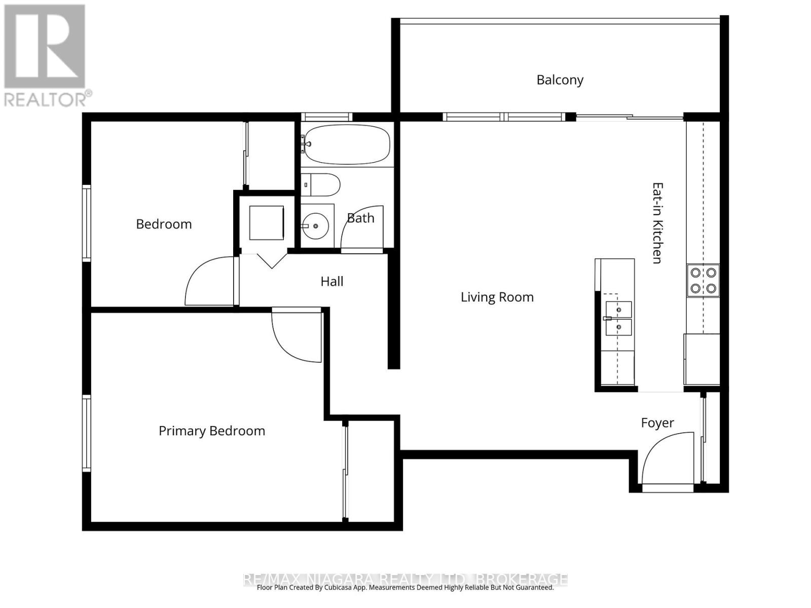
209 - 6390 HUGGINS STREET
Directions Imprimer
209 - 6390 HUGGINS STREET 379 900 $
379 900 $
Masquer
Favoris

209 - 6390 HUGGINS STREET
Niagara Falls (Stamford), Ontario L2J1H1

Numéro MLS® : X12774470
2
Chambres
1
Salles de bain
900 - 999
Pieds carrés

Résumé de la propriété

Type de propriété
Unifamiliale
Type de bâtiment
Appartement
Superficie
900 - 999 pi2
Titre
Copropriété divise
Impôt foncier annuel
2 652,74 $
Type de stationnement
Aucun garage
Sur REALTOR.ca depuis
16 jours

Édifice

Chambres
Au-dessus du niveau du sol
2
Salles de bain
Total
1
Caractéristiques intérieures
Appareils électroménagers inclus
Lave-vaisselle, Sécheuse, Micro-ondes, Cuisinière, Machine à laver, Réfrigérateur
Type de sous-sol
Pas de sous-sol
Caractéristiques du bâtiment
Caractéristiques
Balcon, Buanderie
Commodités qu'offre le bâtiment
Armoire vestiaire
Chauffage et refroidissement
Système de refroidissement
Unité murale
Type de chauffage
Plinthes chauffantes (Gaz naturel)
Caractéristiques extérieures
Revêtement extérieur
Stuc
Caractéristiques du quartier
Caractéristiques de la communauté
Animaux permis avec restrictions
Infos entretien ou copropriété
Frais d'entretien
759,23 $ mois
Les frais d'entretien comprennent
Chauffage, Eau, Assurance, Entretien de la zone commune
Société de gestion de l'entretien
CANNON GRECO
Stationnement
Type de stationnement
Aucun garage
Nombre total d'espaces de stationnement
1

Mesures

Superficie
900 - 999 pi2
Données fournies par : Niagara Association of REALTORS®
Souhaitez-vous visiter cette propriété?
Demander une visite

Inscriptions semblables

Kevin Gibson