Nous utilisons des témoins et d’autres technologies pour assurer le fonctionnement et la sécurité de nos services en ligne, et pour vous offrir une expérience personnalisée. En continuant à utiliser nos services en ligne, vous acceptez notre Politique de confidentialité et les conditions d’utilisation. Pour obtenir des informations sur la façon de régler vos paramètres de confidentialité, veuillez consulter notre Politique sur les témoins.
Masquer
Accueil AB Division No. 8 Innisfail
5901 50 Avenue
Directions Imprimer
5901 50 Avenue 6 990 000 $
6 990 000 $
Masquer
Favoris

5901 50 Avenue
Rural Red Deer County, Alberta T4G1R7

Numéro MLS® : A2281488

Résumé de la propriété

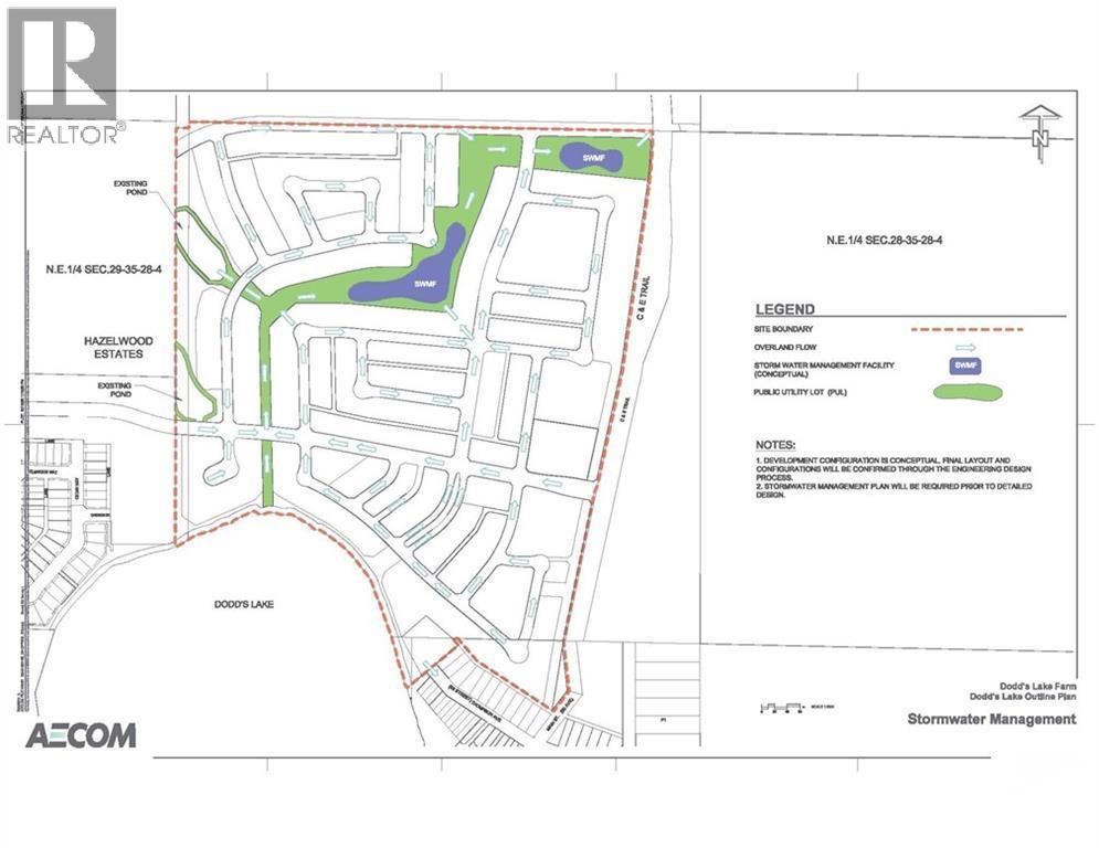
Type de propriété
Terrain vacant
Titre
Tenure franche
Superficie du terrain
504319.24 m2|80 - 160 acres
Âge de l'édifice
Âge inconnu
Impôt foncier annuel
4 159,58 $
Sur REALTOR.ca depuis
17 jours

Édifice

Caractéristiques du bâtiment
Caractéristiques
Boisé, Voir remarques, Zone protégée de l'environnement
Services publics
Égouts
Pas de réseau d'égouts
Eau
Voir les notes
Caractéristiques du quartier
Caractéristiques de la communauté
Ensemble domiciliaire près d'un terrain de golf, Accès au lac, Pêche
Commodités à proximité
Terrain de golf, Parc, Terrain de jeu, Loisirs à proximité, Écoles, Centres commerciaux, Près de l'eau

Terrain

Caractéristiques du terrain
Clôture
Non clôturé
Façade
544.07 m
Vue
Vue
Caractéristiques du bord de l'eau
Bord de l'eau
Bord de l'eau
Eau de surface
Crique ou ruisseau
Données fournies par : Pillar 9™
Souhaitez-vous visiter cette propriété?
Demander une visite

Inscriptions semblables

Julie Vesuwalla