Nous utilisons des témoins et d’autres technologies pour assurer le fonctionnement et la sécurité de nos services en ligne, et pour vous offrir une expérience personnalisée. En continuant à utiliser nos services en ligne, vous acceptez notre Politique de confidentialité et les conditions d’utilisation. Pour obtenir des informations sur la façon de régler vos paramètres de confidentialité, veuillez consulter notre Politique sur les témoins.
Masquer
Accueil ON Grand Windsor Comté d'Essex Tecumseh
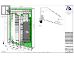
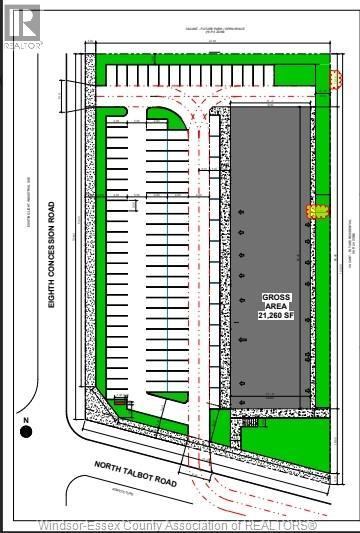
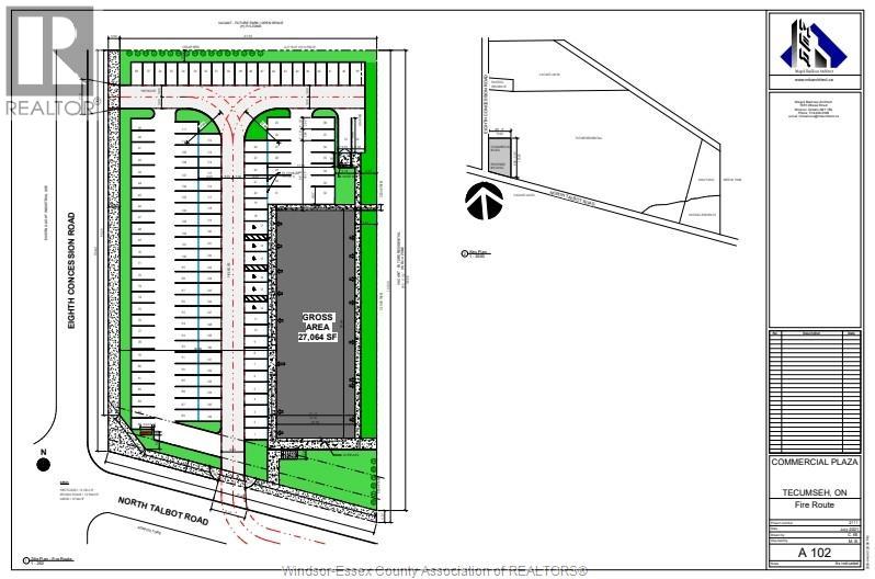
4550 NORTH TALBOT ROAD
Directions Imprimer
4550 NORTH TALBOT ROAD 2 500 000 $
2 500 000 $
Masquer
Favoris

4550 NORTH TALBOT ROAD
Tecumseh, Ontario N0R1L0

Numéro MLS® : 26002886

Résumé de la propriété

Type de propriété
Terrain vacant
Titre
Tenure franche
Superficie du terrain
395 X 220 / 1.854 AC
Sur REALTOR.ca depuis
17 jours

Édifice

Caractéristiques du quartier
Commodités à proximité
Loisirs à proximité
Souhaitez-vous visiter cette propriété?
Demander une visite

Inscriptions semblables

SHADI HABIB