Nous utilisons des témoins et d’autres technologies pour assurer le fonctionnement et la sécurité de nos services en ligne, et pour vous offrir une expérience personnalisée. En continuant à utiliser nos services en ligne, vous acceptez notre Politique de confidentialité et les conditions d’utilisation. Pour obtenir des informations sur la façon de régler vos paramètres de confidentialité, veuillez consulter notre Politique sur les témoins.
Masquer
Accueil AB Division No. 4 Hanna
607 7 Avenue W
Directions Imprimer
607 7 Avenue W 239 000 $
239 000 $
Masquer
Favoris

607 7 Avenue W
Hanna, Alberta T0J1P0

Numéro MLS® : A2284873
3 + 1
Chambres
2
Salles de bain
1379
Pieds carrés

Résumé de la propriété

Type de propriété
Unifamiliale
Type de bâtiment
Unifamilial
Superficie
1379 pi2
Titre
Tenure franche
Superficie du terrain
10320 pi2|7 251 - 10 889 pi2
Date de construction
1969
Impôt foncier annuel
3 595,02 $
Type de stationnement
Aire de stationnement, Garage attenant (1)
Sur REALTOR.ca depuis
18 jours

Édifice

Chambres
Au-dessus du niveau du sol
3
Au-dessous du niveau du sol
1
Salles de bain
Total
2
Partielle
0
Caractéristiques intérieures
Appareils électroménagers inclus
Réfrigérateur, Lave-vaisselle, Cuisinière
Couvre-plancher
plancher recouvert de tapis, Tuile céramique, Linoleum
Caractéristiques du sous-sol
Sous-sol à escalier
Type de sous-sol
Sous-sol complet (Partiellement aménagé)
Caractéristiques du bâtiment
Caractéristiques
Fenêtres en bois
Type de fondation
Blocs de béton
Style
Isolée
Style d'architecture
4 étages
Chauffage et refroidissement
Système de refroidissement
Aucun
Foyer
1
Type de chauffage
Air pulsé, (Gaz naturel)
Caractéristiques extérieures
Revêtement extérieur
Brique
Caractéristiques du quartier
Commodités à proximité
Parc, Terrain de jeu, Loisirs à proximité, Écoles, Centres commerciaux
Stationnement
Type de stationnement
Aire de stationnement, Garage attenant (1)
Nombre total d'espaces de stationnement
1

Mesures

Superficie
1379 pi2
Superficie totale aménagée
1379 pi2

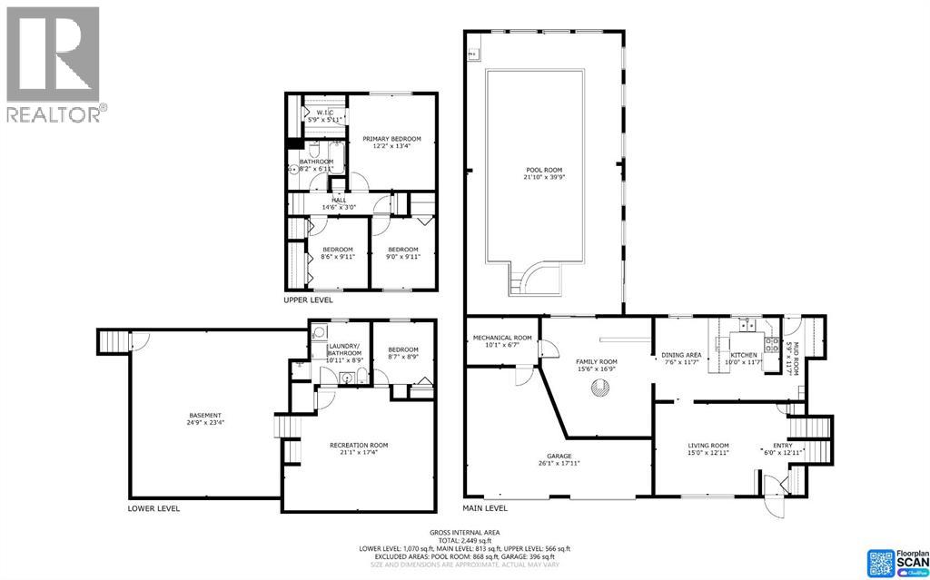
Pièces

MétriqueImpérial
Niveau principal
Salon
Cuisine
Salle à manger
Salle familiale
Deuxième niveau
Salle de bain - 3 éléments
Chambre à coucher
Chambre à coucher
Chambre principale
Niveau inférieur
Chambre à coucher
Buanderie
Salle de bain - 3 éléments
Salle de jeux, récréative

Terrain

Caractéristiques du terrain
Clôture
Clôture
Façade
36.57 m
Superficie du terrain
26.21 m
Données fournies par : Pillar 9™
Souhaitez-vous visiter cette propriété?
Demander une visite

403-435-0064
403-347-7514

Inscriptions semblables

Samantha Gallagher