Nous utilisons des témoins et d’autres technologies pour assurer le fonctionnement et la sécurité de nos services en ligne, et pour vous offrir une expérience personnalisée. En continuant à utiliser nos services en ligne, vous acceptez notre Politique de confidentialité et les conditions d’utilisation. Pour obtenir des informations sur la façon de régler vos paramètres de confidentialité, veuillez consulter notre Politique sur les témoins.
Masquer
Accueil ON Grand Chatham-Kent Chatham-Kent Wallaceburg
LOT 2 BLOCK 6 ELIZABETH STREET E
Directions Imprimer
Plus de photos + 1
LOT 2 BLOCK 6 ELIZABETH STREET E 560 000 $
Depuis 6 heures
560 000 $
Masquer
Favoris

LOT 2 BLOCK 6 ELIZABETH STREET E
Chatham-Kent (Wallaceburg), Ontario N8A3G1

Numéro MLS® : X12768928
2 + 2
Chambres
4
Salles de bain
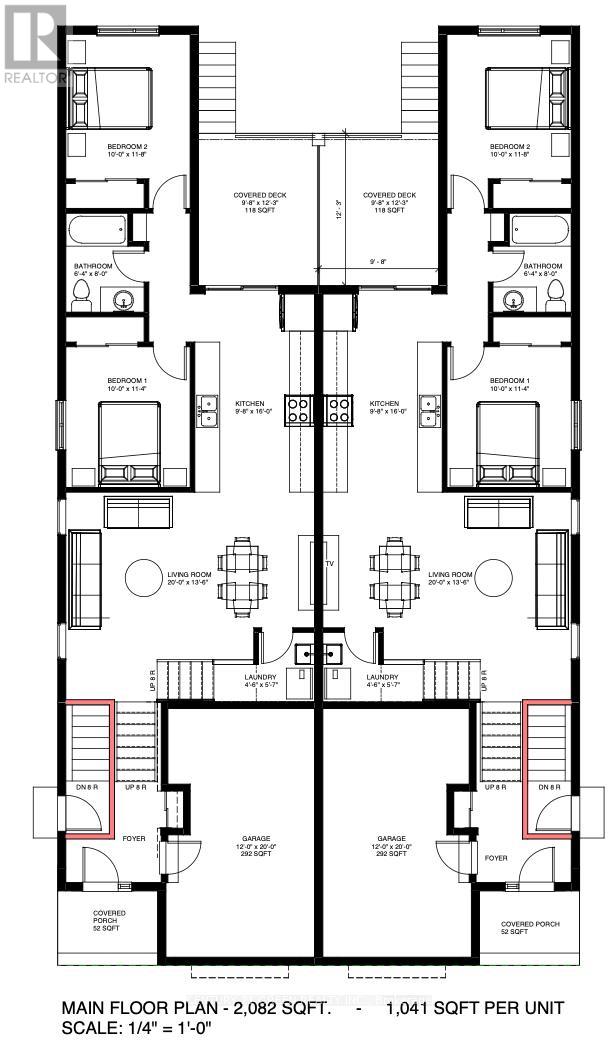
700 - 1100
Pieds carrés

Résumé de la propriété

Type de propriété
Unifamiliale
Type de bâtiment
Unifamilial
Étages
1
Superficie
700 - 1100 pi2
Titre
Tenure franche
Superficie du terrain
25 x 125 FT|moins de 1/2 acre
Âge de l'édifice
Bâtiment neuf
Impôt foncier annuel
0 $
Type de stationnement
Garage
Sur REALTOR.ca depuis
6 heures

Édifice

Chambres
Au-dessus du niveau du sol
2
Au-dessous du niveau du sol
2
Salles de bain
Total
4
Caractéristiques intérieures
Appareils électroménagers inclus
Plaque de cuisson, Sécheuse, Deux cuisinières, Deux machines à laver, Deux réfrigérateurs
Caractéristiques du sous-sol
Logement au sous-sol, Entrée distincte
Caractéristiques du bâtiment
Type de fondation
Fondation en béton
Style
Jumelée
Style d'architecture
Bungalow surélevé
Chauffage et refroidissement
Système de refroidissement
Aucun
Type de chauffage
Air pulsé (Gaz naturel)
Services publics
Égouts
Égout sanitaire
Eau
Approvisionnement en eau par la municipalité
Caractéristiques extérieures
Revêtement extérieur
Parement de brique, Aluminium
Stationnement
Type de stationnement
Garage
Nombre total d'espaces de stationnement
2

Mesures

Superficie
700 - 1100 pi2

Pièces

MétriqueImpérial
Sous-sol
Chambre à coucher
Deuxième chambre
Salon
Buanderie
Plat
Chambre à coucher
Deuxième chambre
Salon
Cuisine
Buanderie

Terrain

Caractéristiques du terrain
Façade
25 pi
Superficie du terrain
125 pi
Données fournies par : Toronto Regional Real Estate Board
Souhaitez-vous visiter cette propriété?
Demander une visite

Inscriptions semblables

ROCKY DHAUNKAL