Nous utilisons des témoins et d’autres technologies pour assurer le fonctionnement et la sécurité de nos services en ligne, et pour vous offrir une expérience personnalisée. En continuant à utiliser nos services en ligne, vous acceptez notre Politique de confidentialité et les conditions d’utilisation. Pour obtenir des informations sur la façon de régler vos paramètres de confidentialité, veuillez consulter notre Politique sur les témoins.
Masquer
Accueil ON Grand Toronto Toronto Vieux Toronto South Riverdale Leslieville
60 HILTZ AVENUE
Directions Imprimer
60 HILTZ AVENUE 2 888 000 $
2 888 000 $
Masquer
Favoris

60 HILTZ AVENUE
Toronto (South Riverdale), Ontario M4L2N5

Numéro MLS® : E12767636
3 + 1
Chambres
5
Salles de bain
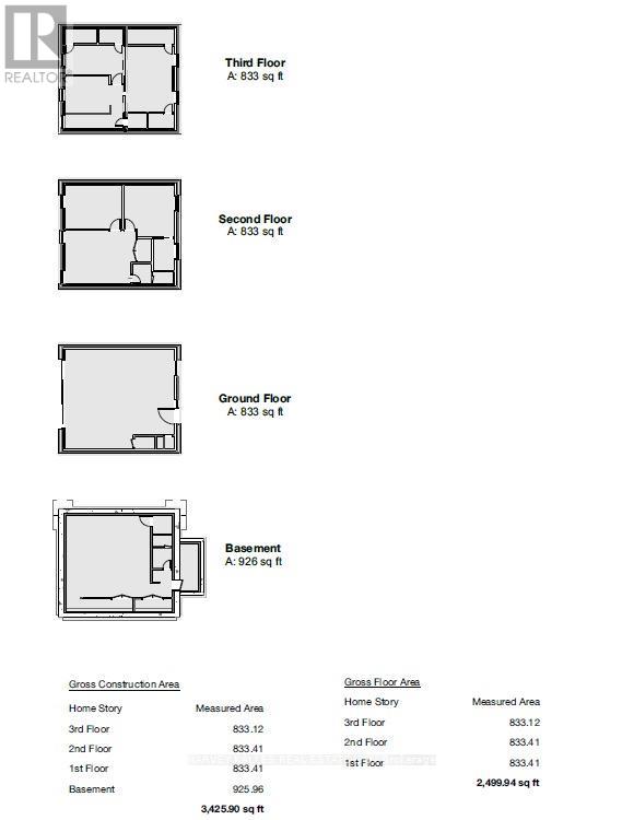
2000 - 2500
Pieds carrés

Résumé de la propriété

Type de propriété
Unifamiliale
Type de bâtiment
Unifamilial
Étages
3
Superficie
2000 - 2500 pi2
Titre
Tenure franche
Superficie du terrain
36 x 80 FT ; Additional 15' of Lot Depth (City Owned)
Impôt foncier annuel
10 293,28 $
Type de stationnement
Abri d'auto, Garage
Sur REALTOR.ca depuis
22 jours

Édifice

Chambres
Au-dessus du niveau du sol
3
Au-dessous du niveau du sol
1
Salles de bain
Total
5
Partielle
1
Caractéristiques intérieures
Appareils électroménagers inclus
Four encastré, Plaque de cuisson, Chauffe-eau, Compteur d'eau, Stores, Lave-vaisselle, Sécheuse, Four, Hotte, Machine à laver, Réfrigérateur
Couvre-plancher
plancher de bois franc, Carrelage
Type de sous-sol
Sous-sol complet (Aménagé)
Caractéristiques du bâtiment
Caractéristiques
Conservation/ceinture verte, Sans tapis, Pompe de vidange, Équipement solaire
Type de fondation
Fondation en béton
Style
Isolée
Protection contre les incendies
Détecteurs de fumée
Commodités qu'offre le bâtiment
Auvent, Dispositifs distincts de régulation du système de chauffage, Compteurs d'électricité distincts
Structures
Terrasse(s)
Chauffage et refroidissement
Système de refroidissement
Climatisation centrale, Échangeur d'air, Système de ventilation
Foyer
1
Type de foyer
Foyer encastré
Type de chauffage
Thermopompe (Électrique), Inconnu (Électrique)
Services publics
Services publics disponibles
Service du câble (Installé), Électricité (Installé), Service d'égout (Installé)
Égouts
Égout sanitaire
Eau
Approvisionnement en eau par la municipalité
Caractéristiques extérieures
Revêtement extérieur
Brique, Acier
Caractéristiques du quartier
Commodités à proximité
Parc, Écoles
Stationnement
Type de stationnement
Abri d'auto, Garage
Nombre total d'espaces de stationnement
1

Mesures

Superficie
2000 - 2500 pi2

Pièces

MétriqueImpérial
Niveau principal
Salon
Salle à manger
Cuisine
Deuxième niveau
Deuxième chambre
Troisième chambre
Coin repos
Buanderie
Salle de bain
Salle de bain
Troisième niveau
Chambre principale
Autre
Salle de bain
Niveau inférieur
Salle audiovisuelle
Salle de bain
Chambre froide
Local de services

Terrain

Caractéristiques du terrain
Clôture
Cour clôturée
Façade
36 pi
Superficie du terrain
80 pi
Aménagement paysager
Terrain paysager
Vue
Vue sur la ville
Données fournies par : Toronto Regional Real Estate Board
Souhaitez-vous visiter cette propriété?
Demander une visite

Inscriptions semblables

SCOTT ROBERT KEARNS