Nous utilisons des témoins et d’autres technologies pour assurer le fonctionnement et la sécurité de nos services en ligne, et pour vous offrir une expérience personnalisée. En continuant à utiliser nos services en ligne, vous acceptez notre Politique de confidentialité et les conditions d’utilisation. Pour obtenir des informations sur la façon de régler vos paramètres de confidentialité, veuillez consulter notre Politique sur les témoins.
Masquer
Accueil BC Grand Vancouver Greater Vancouver Burnaby Capitol Hill
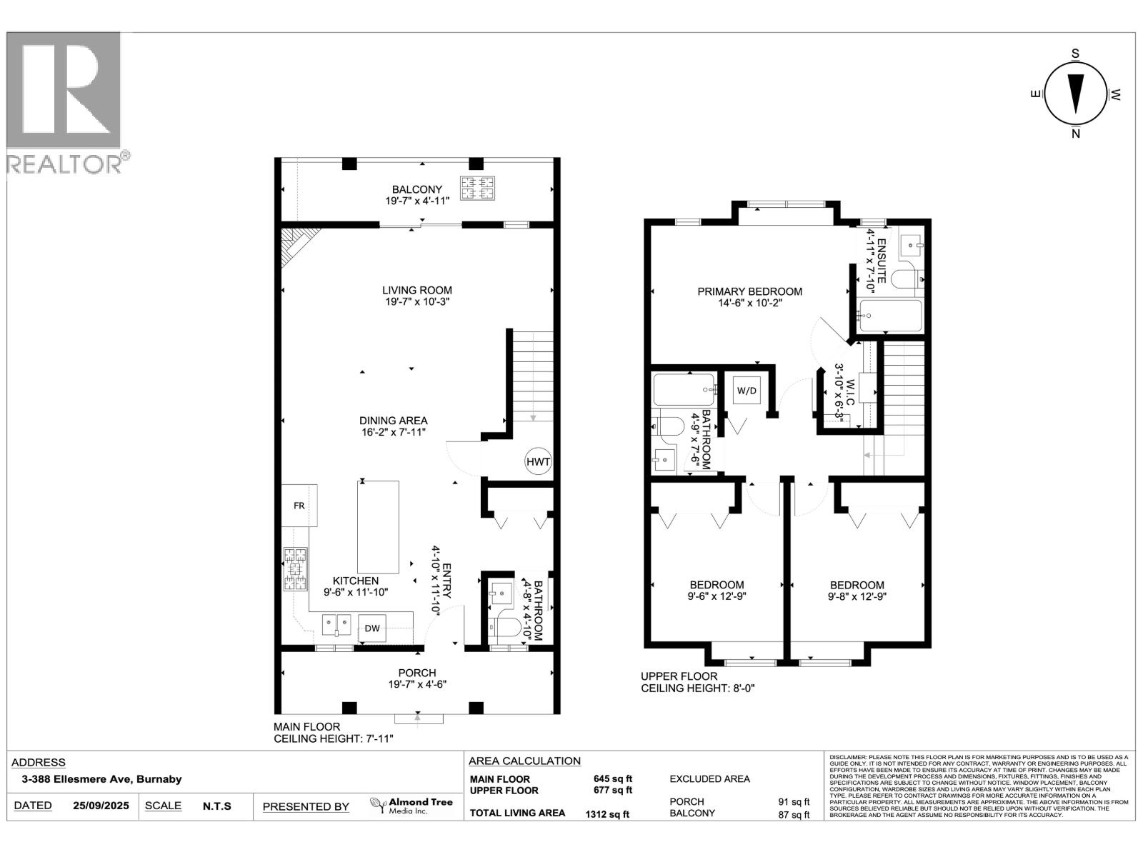
3 388 ELLESMERE AVENUE
Directions Imprimer
3 388 ELLESMERE AVENUE 1 149 900 $
1 149 900 $
Masquer
Favoris

3 388 ELLESMERE AVENUE
Burnaby, Colombie-Britannique V5B3S9

Numéro MLS® : R3087395
3
Chambres
3
Salles de bain
1322
Pieds carrés

Résumé de la propriété

Type de propriété
Unifamiliale
Type de bâtiment
Maison en rangée
Superficie
1322 pi2
Titre
Copropriété divise
Superficie du terrain
0
Date de construction
2011
Impôt foncier annuel
3 527,26 $
Type de stationnement
Stationnement pour les visiteurs
Sur REALTOR.ca depuis
20 jours

Prix et historique

Date Statut Prix vendu
23 juil. 2014 Vente conclue 576 500 $
29 déc. 2010 Vente conclue 555 500 $

Édifice

Salles de bain
Total
3
Caractéristiques intérieures
Appareils électroménagers inclus
Toutes les options, Aspirateur central
Accessoires fixes inclus
Draperies/Couvre-fenêtres
Caractéristiques du bâtiment
Caractéristiques
Site central
Style d'architecture
2 étages
Protection contre les incendies
Détecteurs de fumée, Système de gicleurs
Commodités qu'offre le bâtiment
Buanderie – dans l’appartement
Chauffage et refroidissement
Type de chauffage
Plinthes chauffantes, (Électrique)
Caractéristiques du quartier
Caractéristiques de la communauté
Animaux permis avec restrictions, Locations permises avec restrictions
Commodités à proximité
Terrain de golf, Loisirs, Centres commerciaux
Infos entretien ou copropriété
Frais d'entretien
576,77 $ mois
Stationnement
Type de stationnement
Stationnement pour les visiteurs
Nombre total d'espaces de stationnement
1

Mesures

Superficie
1322 pi2

Terrain

Caractéristiques du terrain
Vue
Vue
Données fournies par : Greater Vancouver REALTORS®
Souhaitez-vous visiter cette propriété?
Demander une visite

Inscriptions semblables

Rick C Tseng