Nous utilisons des témoins et d’autres technologies pour assurer le fonctionnement et la sécurité de nos services en ligne, et pour vous offrir une expérience personnalisée. En continuant à utiliser nos services en ligne, vous acceptez notre Politique de confidentialité et les conditions d’utilisation. Pour obtenir des informations sur la façon de régler vos paramètres de confidentialité, veuillez consulter notre Politique sur les témoins.
Masquer
Accueil ON Tiny
310 CONCESSION ROAD 13 ROAD W
Directions Imprimer
310 CONCESSION ROAD 13 ROAD W 599 900 $
Depuis 1 journée
Prochaine visite libre
8
févr.
599 900 $
Masquer
Favoris

310 CONCESSION ROAD 13 ROAD W
Tiny, Ontario L0L2J0

Numéro MLS® : S12766140
4
Chambres
2
Salles de bain
700 - 1100
Pieds carrés

Visites libres

7 févr.
11 h - 12 h 30
8 févr.
11 h - 12 h 30
Ajouter au calendrier

Résumé de la propriété

Type de propriété
Unifamiliale
Type de bâtiment
Unifamilial
Étages
1
Superficie
700 - 1100 pi2
Titre
Tenure franche
Superficie du terrain
170 x 150 FT|1/2 - 1,99 acre
Âge de l'édifice
51 à 99 ans
Impôt foncier annuel
1 741 $
Type de stationnement
Garage détaché, Garage
Sur REALTOR.ca depuis
1 journée

Édifice

Chambres
Au-dessus du niveau du sol
4
Salles de bain
Total
2
Caractéristiques intérieures
Appareils électroménagers inclus
Traitement de l'eau, Lave-vaisselle, Sécheuse, Cuisinière, Machine à laver, Réfrigérateur
Type de sous-sol
Sous-sol complet
Caractéristiques du bâtiment
Caractéristiques
Zone boisée, Terrain irrégulier, Ceinture verte
Type de fondation
Blocs de béton
Style
Isolée
Style d'architecture
Bungalow surélevé
Protection contre les incendies
Détecteurs de fumée
Location de matérial incluse
Chauffe-eau
Structures
Terrasse, Terrasse(s), Remise
Chauffage et refroidissement
Système de refroidissement
Aucun
Type de chauffage
Plinthes chauffantes (Électrique)
Services publics
Services publics disponibles
Électricité (Installé)
Égouts
Fosse septique
Caractéristiques extérieures
Revêtement extérieur
Bardage en vinyle
Caractéristiques du quartier
Caractéristiques de la communauté
Autobus scolaire
Commodités à proximité
Plage, Parc
Stationnement
Type de stationnement
Garage détaché, Garage
Nombre total d'espaces de stationnement
5

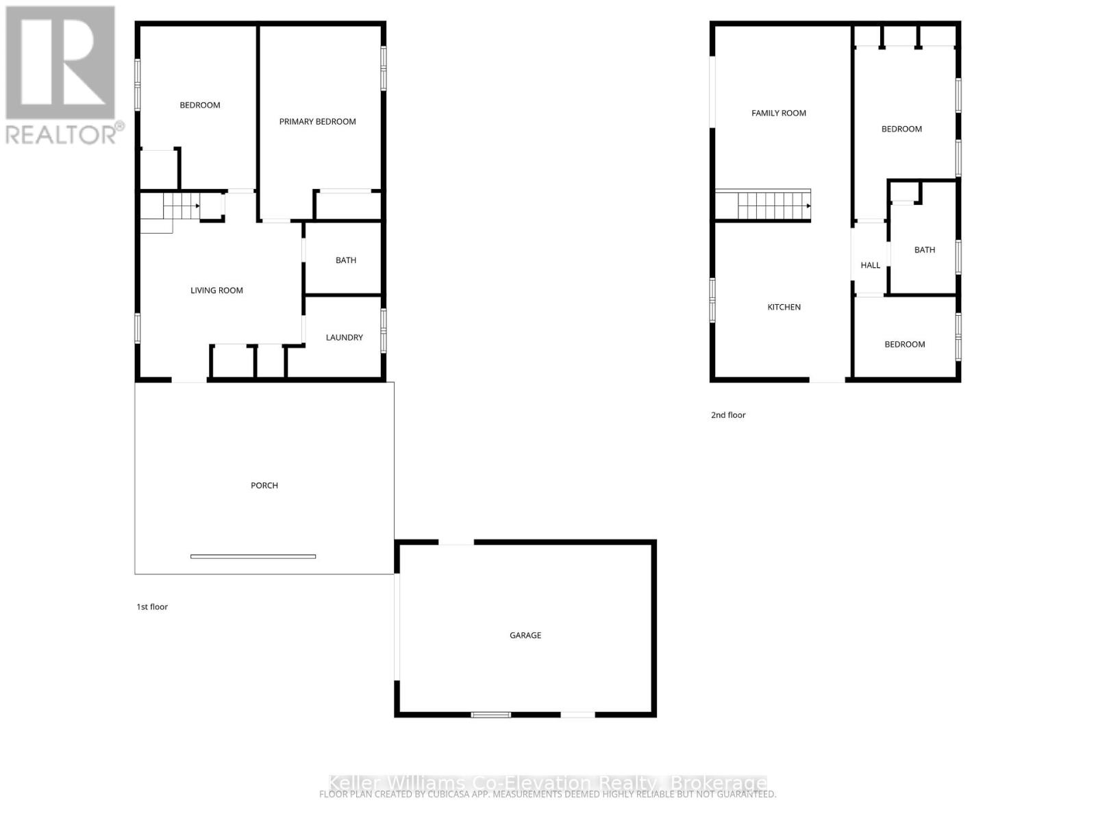
Mesures

Superficie
700 - 1100 pi2

Pièces

MétriqueImpérial
Niveau principal
Salon
Chambre principale
Deuxième chambre
Buanderie
Niveau supérieur
Cuisine
Salle familiale
Troisième chambre
Quatrième chambre

Terrain

Caractéristiques du terrain
Façade
170 pi
Superficie du terrain
150 pi
Aménagement paysager
Terrain paysager
Caractéristiques du bord de l'eau
Eau de surface
lac/Étang
Données fournies par : OnePoint - The Lakelands
Souhaitez-vous visiter cette propriété?
Demander une visite

Inscriptions semblables

LORRAINE JORDAN