Nous utilisons des témoins et d’autres technologies pour assurer le fonctionnement et la sécurité de nos services en ligne, et pour vous offrir une expérience personnalisée. En continuant à utiliser nos services en ligne, vous acceptez notre Politique de confidentialité et les conditions d’utilisation. Pour obtenir des informations sur la façon de régler vos paramètres de confidentialité, veuillez consulter notre Politique sur les témoins.
Masquer
Accueil BC East Kootenay East Kootenay A
4559 Timberline Crescent Unit# 221
Directions Imprimer
4559 Timberline Crescent Unit# 221 632 000 $
632 000 $
Masquer
Favoris

4559 Timberline Crescent Unit# 221
Fernie, Colombie-Britannique V0B1M6

Numéro MLS® : 10374929
2
Chambres
2
Salles de bain
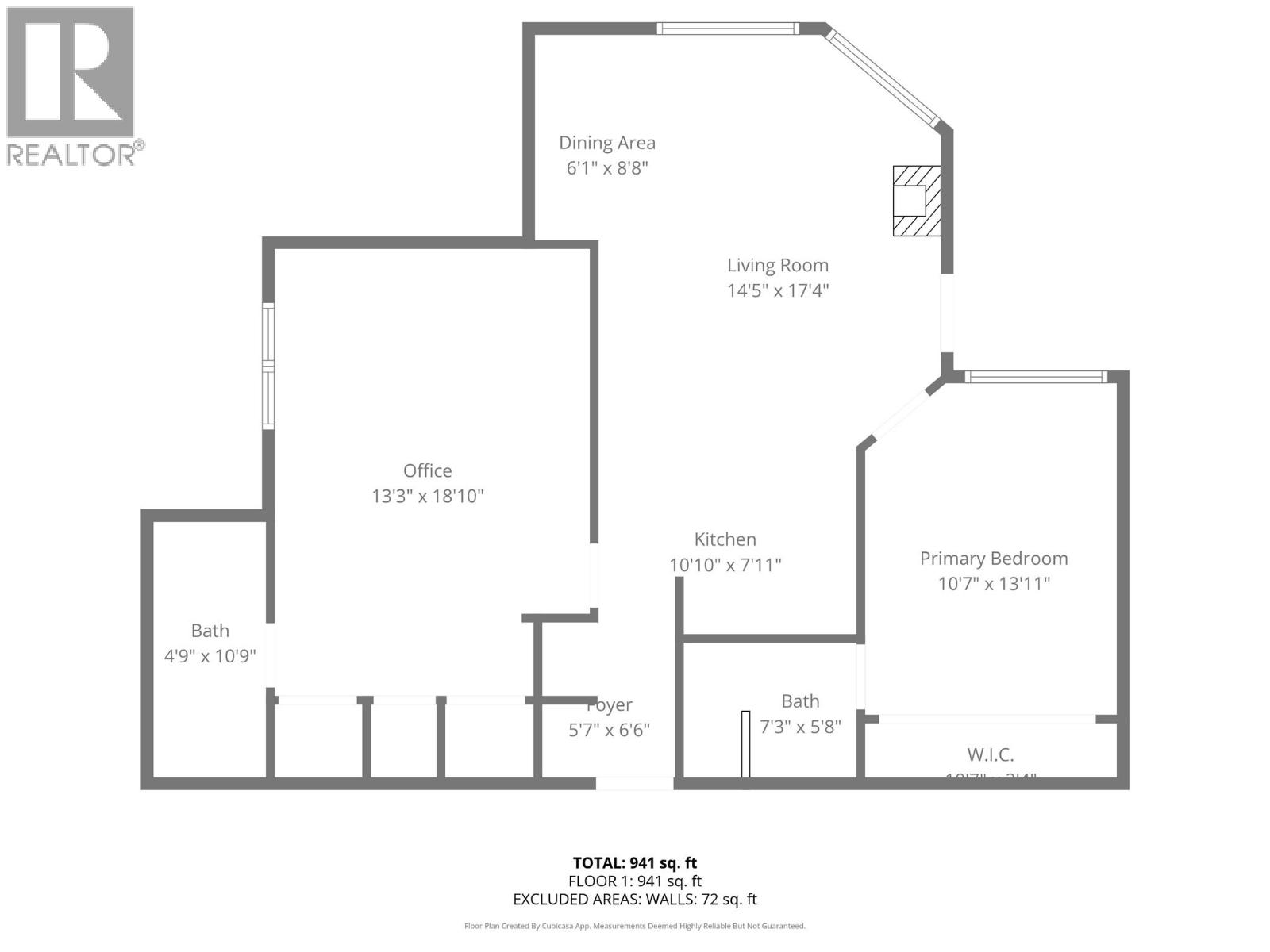
1001
Pieds carrés

Résumé de la propriété

Type de propriété
Unifamiliale
Type de bâtiment
Appartement
Étages
1
Superficie
1001 pi2
Titre
Copropriété divise
Superficie du terrain
moins de 1 acre
Date de construction
1993
Impôt foncier annuel
2 086 $
Nombre total d'espaces de stationnement
2
Sur REALTOR.ca depuis
23 jours

Prix et historique

Date Statut Prix vendu
1 nov. 2011 Vente conclue 257 000 $
31 août 2009 Vente conclue 252 000 $
16 mai 2005 Vente conclue 187 000 $

Édifice

Salles de bain
Total
2
Partielle
0
Caractéristiques intérieures
Appareils électroménagers inclus
Réfrigérateur, Lave-vaisselle, Congélateur, Micro-ondes, Voir les remarques, Four, Laveuse et sécheuse superposées
Couvre-plancher
plancher recouvert de tapis, Tuile céramique
Caractéristiques du bâtiment
Caractéristiques
Un balcon
Utilisation actuelle
Communautés à locataires multiples
Protection contre les incendies
Sécurité
Commodités qu'offre le bâtiment
Câble, Salle de réception, Sauna, Baignoire de massage, Armoire vestiaire
Entreposage
Entreposage, Armoire vestiaire
Chauffage et refroidissement
Système de refroidissement
Voir les notes
Foyer
2
Type de foyer
Inconnu (Électricité), Inconnu (Gaz)
Type de chauffage
(Électrique), Voir les remarques
Services publics
Égouts
Égout municipal
Eau
Aucun
Caractéristiques extérieures
Matériaux du toit
Bardeaux d'asphalte
Revêtement extérieur
Pierre, Autre
Piscine
Piscine creusée
Caractéristiques du quartier
Caractéristiques de la communauté
Locations permises
Infos entretien ou copropriété
Frais d'entretien
685,15 $ mois
Les frais d'entretien comprennent
Câblodistribution, Contributions au fonds de réserve, Chauffage, Assurance, Entretien du terrain, Gestion immobilière, Autre, voir remarques, Installations de loisirs, systèmes d'égouts et d'alimentation, Élimination des déchets, Eau
Stationnement
Nombre total d'espaces de stationnement
2

Mesures

Superficie
1001 pi2

Pièces

MétriqueImpérial
Niveau principal
Chambre à coucher
Salle à manger
Salle de bains complète
Salle de bains complète communicante
Chambre principale
Salon
Cuisine
Données fournies par : Association of Interior REALTORS®
Souhaitez-vous visiter cette propriété?
Demander une visite

Inscriptions semblables

Sheryl Hancher