Nous utilisons des témoins et d’autres technologies pour assurer le fonctionnement et la sécurité de nos services en ligne, et pour vous offrir une expérience personnalisée. En continuant à utiliser nos services en ligne, vous acceptez notre Politique de confidentialité et les conditions d’utilisation. Pour obtenir des informations sur la façon de régler vos paramètres de confidentialité, veuillez consulter notre Politique sur les témoins.
Masquer
Accueil ON Huntsville
101 - 32 BRUNEL ROAD
Directions Imprimer
101 - 32 BRUNEL ROAD 4 800 $/mois
Depuis 2 jours
4 800 $/mois
Masquer
Favoris

101 - 32 BRUNEL ROAD
Huntsville (Chaffey), Ontario P1H1P5

Numéro MLS® : X12761410
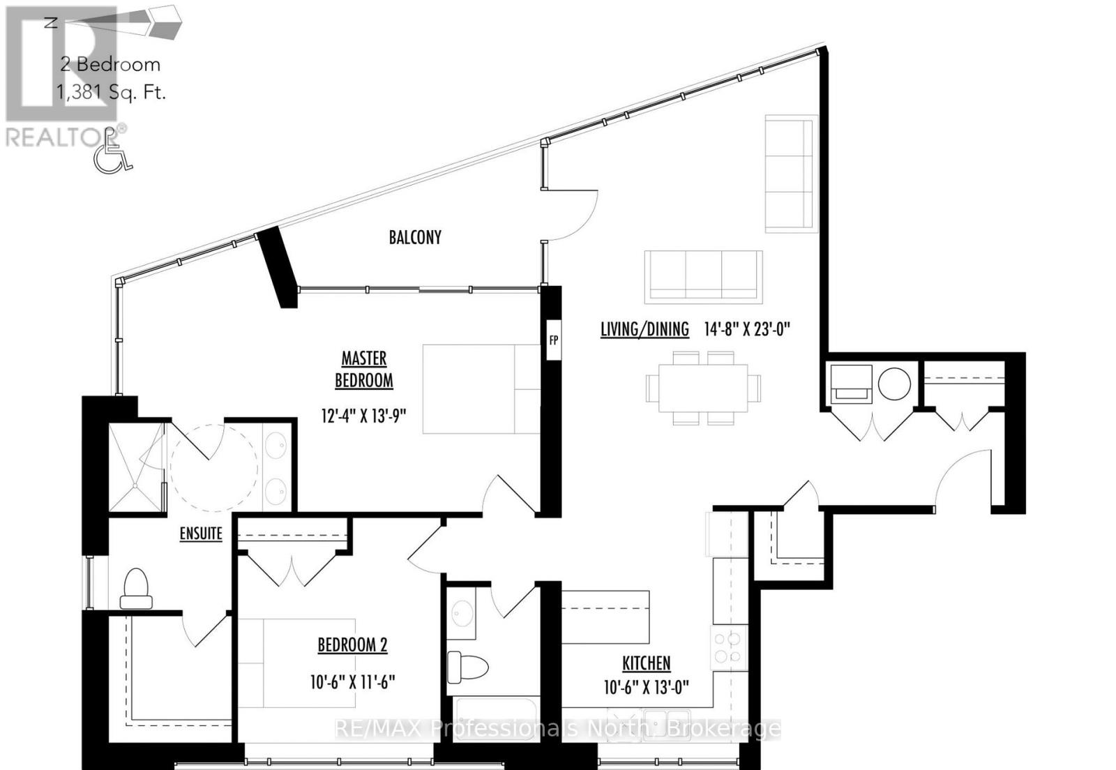
2
Chambres
2
Salles de bain
1200 - 1399
Pieds carrés

Visites libres

7 févr.
12 h - 14 h
Ajouter au calendrier

Résumé de la propriété

Type de propriété
Unifamiliale
Type de bâtiment
Appartement
Superficie
1200 - 1399 pi2
Titre
Copropriété divise
Type de stationnement
Stationnement souterrain, Garage
Sur REALTOR.ca depuis
2 jours

Édifice

Chambres
Au-dessus du niveau du sol
2
Salles de bain
Total
2
Caractéristiques intérieures
Type de sous-sol
Pas de sous-sol
Caractéristiques du bâtiment
Caractéristiques
Balcon, Buanderie
Commodités qu'offre le bâtiment
Foyer(s)
Chauffage et refroidissement
Système de refroidissement
Climatisation centrale, Échangeur d'air
Type de chauffage
Thermopompe (Électrique), Inconnu (Gaz naturel)
Caractéristiques extérieures
Revêtement extérieur
Pierre, Bois
Caractéristiques du quartier
Caractéristiques de la communauté
Animaux permis avec restrictions
Infos entretien ou copropriété
Société de gestion de l'entretien
Brunel Riverbend Estates Inc.
Stationnement
Type de stationnement
Stationnement souterrain, Garage
Nombre total d'espaces de stationnement
1

Mesures

Superficie
1200 - 1399 pi2

Terrain

Caractéristiques du terrain
Vue
vue directe sur l'eau
Autres informations sur la propriété
Accès
Voie publique, Amarrage privé
Servitudes
Inconnu
Caractéristiques du bord de l'eau
Bord de l'eau
Bord de l'eau
Accès
Amarrage privé
Données fournies par : OnePoint - The Lakelands
Souhaitez-vous visiter cette propriété?
Demander une visite

Inscriptions semblables

SARAH LOCK