Nous utilisons des témoins et d’autres technologies pour assurer le fonctionnement et la sécurité de nos services en ligne, et pour vous offrir une expérience personnalisée. En continuant à utiliser nos services en ligne, vous acceptez notre Politique de confidentialité et les conditions d’utilisation. Pour obtenir des informations sur la façon de régler vos paramètres de confidentialité, veuillez consulter notre Politique sur les témoins.
Masquer
Accueil ON Grand Brantford Comté de Brant Brantford Brantwood Park
12 WHITE OWL CRESCENT
Directions Imprimer
12 WHITE OWL CRESCENT 485 000 $
485 000 $
Masquer
Favoris

12 WHITE OWL CRESCENT
Brantford, Ontario N3P1A2

Numéro MLS® : X12754616
2
Chambres
3
Salles de bain
1100 - 1500
Pieds carrés

Résumé de la propriété

Type de propriété
Unifamiliale
Type de bâtiment
Unifamilial
Étages
2
Superficie
1100 - 1500 pi2
Titre
Tenure franche
Superficie du terrain
27.5 x 107 FT
Impôt foncier annuel
2 857,80 $
Type de stationnement
Aucun garage
Sur REALTOR.ca depuis
23 jours

Édifice

Chambres
Au-dessus du niveau du sol
2
Salles de bain
Total
3
Partielle
2
Caractéristiques intérieures
Appareils électroménagers inclus
Chauffe-eau, Lave-vaisselle, Sécheuse, Cuisinière, Machine à laver, Réfrigérateur
Type de sous-sol
Aménagé
Caractéristiques du bâtiment
Type de fondation
Béton coulé
Style
Jumelée
Location de matérial incluse
Chauffe-eau, Appareil de chauffage
Chauffage et refroidissement
Système de refroidissement
Climatisation centrale
Type de chauffage
Air pulsé (Gaz naturel)
Services publics
Égouts
Égout sanitaire
Eau
Approvisionnement en eau par la municipalité
Caractéristiques extérieures
Revêtement extérieur
Aluminium, Parement de brique
Stationnement
Type de stationnement
Aucun garage
Nombre total d'espaces de stationnement
2

Mesures

Superficie
1100 - 1500 pi2

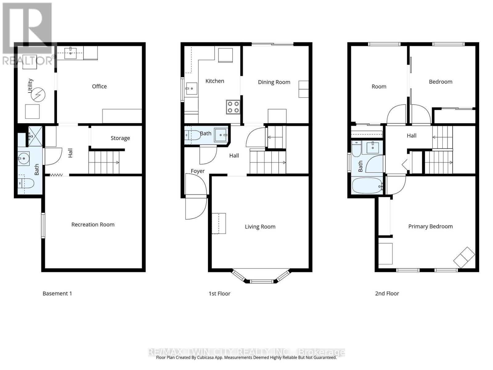
Pièces

MétriqueImpérial
Niveau principal
Vestibule
Salle de bain
Cuisine
Salle à manger
Salon
Deuxième niveau
Chambre à coucher
Chambre à coucher
Coin repos
Salle de bain
Sous-sol
Local de services
Salon
Salle de bain
Salle de jeux, récréative

Terrain

Caractéristiques du terrain
Façade
27 pi 6 po
Superficie du terrain
107 pi
Données fournies par : Toronto Regional Real Estate Board
Souhaitez-vous visiter cette propriété?
Demander une visite

Inscriptions semblables

RYAND CAMPBELL