Nous utilisons des témoins et d’autres technologies pour assurer le fonctionnement et la sécurité de nos services en ligne, et pour vous offrir une expérience personnalisée. En continuant à utiliser nos services en ligne, vous acceptez notre Politique de confidentialité et les conditions d’utilisation. Pour obtenir des informations sur la façon de régler vos paramètres de confidentialité, veuillez consulter notre Politique sur les témoins.
Masquer
Accueil ON Grand Toronto Mississauga Mississauga Valleys
3395 CLIFF Road N Unit# 38
Directions Imprimer
3395 CLIFF Road N Unit# 38 723 999 $
Modification du prix le 2026/02/04
723 999 $
-1 000 $
724 999 $
Masquer
Favoris

3395 CLIFF Road N Unit# 38
Mississauga, Ontario L5A3M7

Numéro MLS® : 40802124
3 + 1
Chambres
2
Salles de bain
1350
Pieds carrés

Résumé de la propriété

Type de propriété
Unifamiliale
Type de bâtiment
Maison en rangée
Superficie
1350 pi2
Titre
Copropriété divise
Superficie du terrain
Inconnu
Date de construction
1977
Impôt foncier annuel
4 052 $
Type de stationnement
Garage attenant, Stationnement pour les visiteurs
Sur REALTOR.ca depuis
6 jours

Édifice

Chambres
Au-dessus du niveau du sol
3
Au-dessous du niveau du sol
1
Salles de bain
Total
2
Partielle
1
Caractéristiques intérieures
Appareils électroménagers inclus
Lave-vaisselle, Sécheuse, Réfrigérateur, Cuisinière, Purificateur d'eau, Machine à laver, Hotte, Couvre-fenêtre, Ouvre-porte de garage
Accessoires fixes inclus
Ventilateurs de plafond
Type de sous-sol
Sous-sol partiel (Non aménagé)
Caractéristiques du bâtiment
Caractéristiques
Cul-de-sac, Ouvre-porte de garage automatique
Style
En rangée
Matériau de Construction
Charpente en bois
Protection contre les incendies
Détecteurs de fumée
Location de matérial incluse
Chauffe-eau
Unités totales
0
Chauffage et refroidissement
Système de refroidissement
Climatisation centrale
Type de chauffage
Air pulsé
Services publics
Égouts
Égout municipal
Eau
Approvisionnement en eau par la municipalité
Caractéristiques extérieures
Revêtement extérieur
Brique, Bois, Bardeaux
Caractéristiques du quartier
Caractéristiques de la communauté
Centre communautaire
Commodités à proximité
Parc, Terrain de jeu, Transport en commun, Écoles, Centres commerciaux
Infos entretien ou copropriété
Frais d'entretien
569 $ mois
Les frais d'entretien comprennent
Aménagement de paysage, Gestion immobilière, Eau
Stationnement
Type de stationnement
Garage attenant, Stationnement pour les visiteurs
Nombre total d'espaces de stationnement
2

Mesures

Superficie
1350 pi2
Superficie finie au-dessus du niveau du sol
1160 pi2
Source : Propriétaire
Superficie finie au-dessous du niveau du sol
190 pi2
Source : Propriétaire

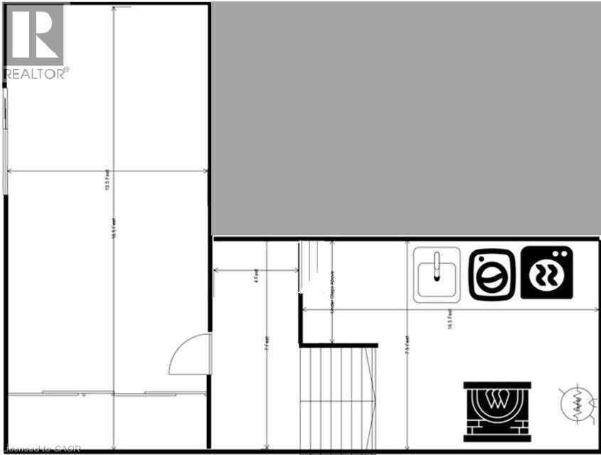
Pièces

MétriqueImpérial
Niveau principal
Autre
Salle de bain - 2 éléments
Vestibule
Deuxième niveau
Autre
Véranda
Salon
Autre
Salle à manger
Cuisine avec coin repas
Troisième niveau
Autre
Salle de bain - 3 éléments
Chambre à coucher
Chambre à coucher
Chambre principale
Sous-sol
Local de services
Chambre à coucher

Terrain

Autres informations sur la propriété
Accès
Accès routier
Souhaitez-vous visiter cette propriété?
Demander une visite

Inscriptions semblables

Sophie Alegra Giterman