Nous utilisons des témoins et d’autres technologies pour assurer le fonctionnement et la sécurité de nos services en ligne, et pour vous offrir une expérience personnalisée. En continuant à utiliser nos services en ligne, vous acceptez notre Politique de confidentialité et les conditions d’utilisation. Pour obtenir des informations sur la façon de régler vos paramètres de confidentialité, veuillez consulter notre Politique sur les témoins.
Masquer
Accueil ON Grand Toronto Toronto Vieux Toronto South Parkdale Sunnyside
1816 - 1928 LAKE SHORE BOULEVARD W
Directions Imprimer
1816 - 1928 LAKE SHORE BOULEVARD W 2 250 $/mois
2 250 $/mois
Masquer
Favoris

1816 - 1928 LAKE SHORE BOULEVARD W
Toronto (High Park-Swansea), Ontario M6S1A1

Numéro MLS® : W12729826
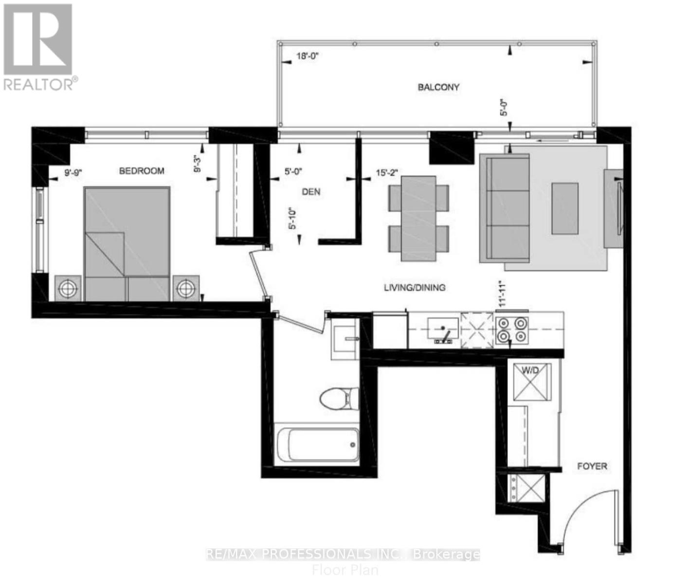
1 + 1
Chambres
1
Salles de bain
500 - 599
Pieds carrés

Résumé de la propriété

Type de propriété
Unifamiliale
Type de bâtiment
Appartement
Superficie
500 - 599 pi2
Titre
Copropriété divise
Âge de l'édifice
0 à 5 ans
Type de stationnement
Stationnement souterrain, Garage
Sur REALTOR.ca depuis
11 jours

Édifice

Chambres
Au-dessus du niveau du sol
1
Au-dessous du niveau du sol
1
Salles de bain
Total
1
Caractéristiques intérieures
Appareils électroménagers inclus
Surface de cuisson, Lave-vaisselle, Sécheuse, Micro-ondes, Four, Machine à laver, Réfrigérateur
Type de sous-sol
Pas de sous-sol
Caractéristiques du bâtiment
Caractéristiques
Conservation/ceinture verte, Balcon, Sans tapis
Type de fondation
Fondation en béton
Commodités qu'offre le bâtiment
Service de sécurité/conciergerie, Salle d'exercises, Centre récréatif, Salle de réception
Chauffage et refroidissement
Système de refroidissement
Climatisation centrale
Type de chauffage
Air pulsé (Gaz naturel)
Caractéristiques extérieures
Revêtement extérieur
Béton
Piscine
Piscine intérieure
Caractéristiques du quartier
Caractéristiques de la communauté
Animaux permis avec restrictions
Commodités à proximité
Lieu de culte, Transport en commun
Infos entretien ou copropriété
Société de gestion de l'entretien
Del Property Management Inc. 437-913-9027
Stationnement
Type de stationnement
Stationnement souterrain, Garage
Nombre total d'espaces de stationnement
0

Mesures

Superficie
500 - 599 pi2

Terrain

Caractéristiques du terrain
Vue
Vue
Caractéristiques du bord de l'eau
Bord de l'eau
Bord de l'eau
Données fournies par : Toronto Regional Real Estate Board
Souhaitez-vous visiter cette propriété?
Demander une visite

Inscriptions semblables

SCOTT THOMPSON