Nous utilisons des témoins et d’autres technologies pour assurer le fonctionnement et la sécurité de nos services en ligne, et pour vous offrir une expérience personnalisée. En continuant à utiliser nos services en ligne, vous acceptez notre Politique de confidentialité et les conditions d’utilisation. Pour obtenir des informations sur la façon de régler vos paramètres de confidentialité, veuillez consulter notre Politique sur les témoins.
Masquer
Accueil ON Comté de Huron South Huron
28 DEARING DRIVE
Directions Imprimer
28 DEARING DRIVE 680 000 $
Prochaine visite libre
28
févr.
680 000 $
Masquer
Favoris

28 DEARING DRIVE
South Huron (Stephen), Ontario N0M1T0

Numéro MLS® : X12725908
2
Chambres
2
Salles de bain
1100 - 1500
Pieds carrés

Visites libres

28 févr.
11 h 30 - 16 h
1 mars
14 h - 16 h
Ajouter au calendrier

Résumé de la propriété

Type de propriété
Unifamiliale
Type de bâtiment
Maison en rangée
Étages
1
Superficie
1100 - 1500 pi2
Titre
Tenure franche
Superficie du terrain
30 FT
Âge de l'édifice
Bâtiment neuf
Impôt foncier annuel
3 000 $
Type de stationnement
Garage attenant, Garage
Sur REALTOR.ca depuis
34 jours

Édifice

Chambres
Au-dessus du niveau du sol
2
Salles de bain
Total
2
Caractéristiques intérieures
Appareils électroménagers inclus
Télécommande(s) d'ouvre-porte de garage, Chauffe-eau sans réservoir, Ouvre-porte de garage
Couvre-plancher
Carrelage
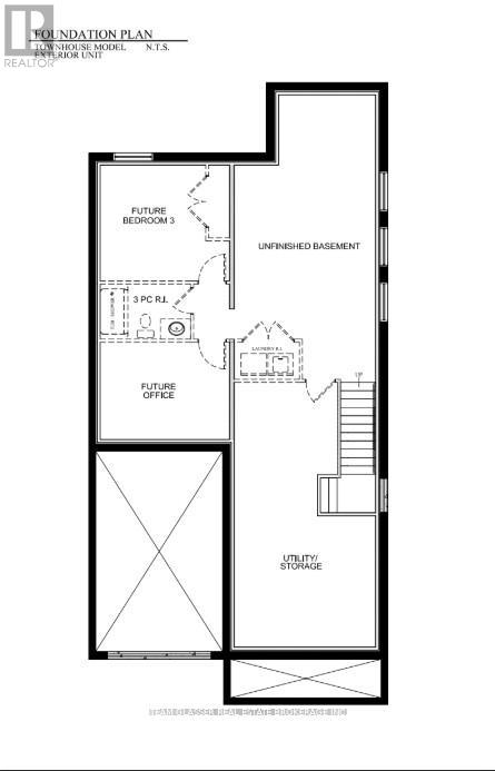
Type de sous-sol
Sous-sol complet (Non aménagé)
Caractéristiques du bâtiment
Caractéristiques
Éclairage
Type de fondation
Béton coulé
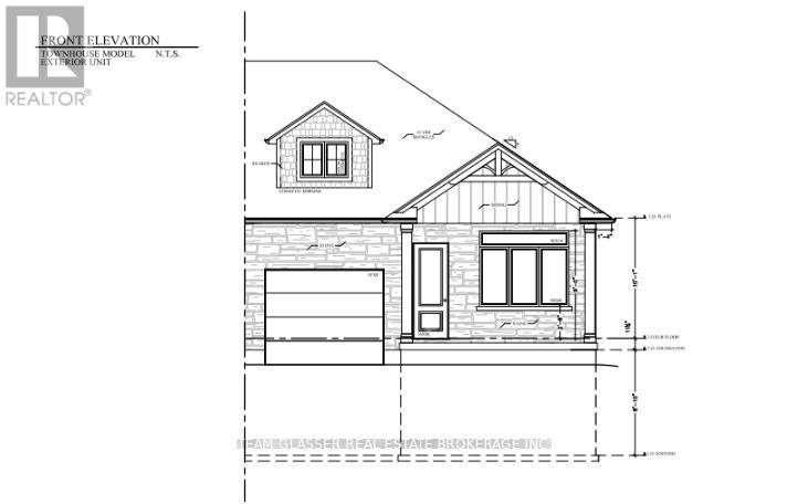
Style
En rangée
Style d'architecture
Bungalow
Location de matérial incluse
Chauffe-eau, Chauffe-eau sans réservoir
Chauffage et refroidissement
Système de refroidissement
Climatisation centrale
Type de chauffage
Air pulsé (Gaz naturel)
Services publics
Eau
Approvisionnement en eau par la municipalité
Caractéristiques extérieures
Revêtement extérieur
Bardage en vinyle, Pierre
Stationnement
Type de stationnement
Garage attenant, Garage
Nombre total d'espaces de stationnement
3

Mesures

Superficie
1100 - 1500 pi2

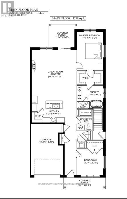
Pièces

MétriqueImpérial
Niveau principal
Grande salle
Cuisine
Vestibule
Chambre principale
Chambre à coucher
Salle de bain
Salle de bain
Sous-sol
Salle de jeux, récréative
Chambre à coucher

Terrain

Caractéristiques du terrain
Façade
30 pi
Souhaitez-vous visiter cette propriété?
Demander une visite

Inscriptions semblables

CHRISTINE CRNCICH