Nous utilisons des témoins et d’autres technologies pour assurer le fonctionnement et la sécurité de nos services en ligne, et pour vous offrir une expérience personnalisée. En continuant à utiliser nos services en ligne, vous acceptez notre Politique de confidentialité et les conditions d’utilisation. Pour obtenir des informations sur la façon de régler vos paramètres de confidentialité, veuillez consulter notre Politique sur les témoins.
Masquer
Accueil AB Grand Calgary Division No. 6 Calgary Shaganappi
2533 Sovereign Crescent SW
Directions Imprimer
2533 Sovereign Crescent SW 639 900 $
Prochaine visite libre
7
févr.
639 900 $
Masquer
Favoris

2533 Sovereign Crescent SW
Calgary, Alberta T3C3Y3

Numéro MLS® : A2279495
2
Chambres
3
Salles de bain
1313
Pieds carrés

Visites libres

7 févr.
13 h - 15 h
Ajouter au calendrier

Résumé de la propriété

Type de propriété
Unifamiliale
Type de bâtiment
Maison en rangée
Étages
2
Superficie
1313 pi2
Titre
Copropriété divise
Superficie du terrain
Inconnu
Date de construction
2025
Impôt foncier annuel
0 $
Type de stationnement
Garage attenant (1)
Sur REALTOR.ca depuis
18 jours

Édifice

Chambres
Au-dessus du niveau du sol
2
Salles de bain
Total
3
Partielle
1
Caractéristiques intérieures
Appareils électroménagers inclus
Machine à laver, Réfrigérateur, Surface de cuisson au gaz, Lave-vaisselle, Sécheuse, Micro-ondes, Four encastré, Hotte
Couvre-plancher
plancher recouvert de tapis, Carrelage, Vinyle
Type de sous-sol
Sous-sol partiel (Aménagé)
Caractéristiques du bâtiment
Caractéristiques
Voie d'accès à l'arrière, Fenêtres PVC, Maison sans animaux, Maison sans fumeurs, Branchement barbecue à gaz, Stationnement
Type de fondation
Béton coulé
Style
En rangée
Matériau de Construction
Charpente en bois
Chauffage et refroidissement
Système de refroidissement
Voir les notes
Type de chauffage
Air pulsé
Caractéristiques du quartier
Caractéristiques de la communauté
Ensemble domiciliaire près d'un terrain de golf, Animaux permis avec restrictions
Commodités à proximité
Terrain de golf, Parc, Terrain de jeu, Écoles, Centres commerciaux
Infos entretien ou copropriété
Frais d'entretien
255 $ mois
Les frais d'entretien comprennent
Commodités en copropriété, Assurance, Entretien du terrain, Gestion immobilière, Contributions au fonds de réserve, Élimination des déchets
Stationnement
Type de stationnement
Garage attenant (1)
Nombre total d'espaces de stationnement
1

Mesures

Superficie
1313 pi2
Superficie totale aménagée
1313 pi2

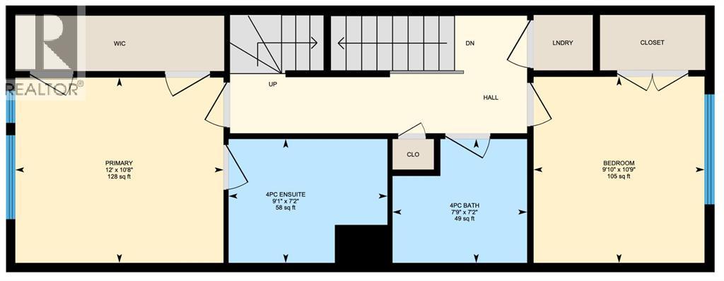
Pièces

MétriqueImpérial
Niveau principal
Salon
Salle à manger
Cuisine
Salle de bain - 2 éléments
Sous-sol
Salle de jeux, récréative
Niveau supérieur
Chambre principale
Salle de bain - 4 éléments
Chambre à coucher
Salle de bain - 4 éléments
Buanderie

Terrain

Caractéristiques du terrain
Clôture
Non clôturé
Aménagement paysager
Terrain paysager
Données fournies par : Pillar 9™
Souhaitez-vous visiter cette propriété?
Demander une visite

Inscriptions semblables

Kevin French