Nous utilisons des témoins et d’autres technologies pour assurer le fonctionnement et la sécurité de nos services en ligne, et pour vous offrir une expérience personnalisée. En continuant à utiliser nos services en ligne, vous acceptez notre Politique de confidentialité et les conditions d’utilisation. Pour obtenir des informations sur la façon de régler vos paramètres de confidentialité, veuillez consulter notre Politique sur les témoins.
Masquer
Accueil ON Grand Hamilton Burlington Appleby
911 - 5280 LAKESHORE ROAD
Directions Imprimer
911 - 5280 LAKESHORE ROAD 970 000 $
Depuis 4 heures
970 000 $
Masquer
Favoris

911 - 5280 LAKESHORE ROAD
Burlington (Appleby), Ontario L7L5R1

Numéro MLS® : W12706752
2
Chambres
2
Salles de bain
1200 - 1399
Pieds carrés

Résumé de la propriété

Type de propriété
Unifamiliale
Type de bâtiment
Appartement
Superficie
1200 - 1399 pi2
Titre
Copropriété divise
Impôt foncier annuel
4 275 $
Type de stationnement
Stationnement souterrain, Garage
Sur REALTOR.ca depuis
4 heures

Édifice

Chambres
Au-dessus du niveau du sol
2
Salles de bain
Total
2
Caractéristiques intérieures
Couvre-plancher
plancher en stratifié, Carrelage
Type de sous-sol
Pas de sous-sol
Caractéristiques du bâtiment
Caractéristiques
Ascenseur, Buanderie
Commodités qu'offre le bâtiment
Salle d'exercises, Salle de réception, Foyer(s)
Structures
Terrain de tennis
Chauffage et refroidissement
Système de refroidissement
Climatisation centrale
Foyer
1
Type de chauffage
Thermopompe (Électrique), Inconnu (Électrique)
Caractéristiques extérieures
Revêtement extérieur
Béton
Piscine
Piscine extérieure
Caractéristiques du quartier
Caractéristiques de la communauté
Animaux permis avec restrictions, Centre communautaire
Commodités à proximité
Parc, Transport en commun
Infos entretien ou copropriété
Frais d'entretien
1 147,41 $ mois
Les frais d'entretien comprennent
Chauffage, Eau, Entretien de la zone commune, Assurance, Parking, Électricité
Société de gestion de l'entretien
Arthex Property Management (1983) Inc.
Stationnement
Type de stationnement
Stationnement souterrain, Garage
Nombre total d'espaces de stationnement
1

Mesures

Superficie
1200 - 1399 pi2

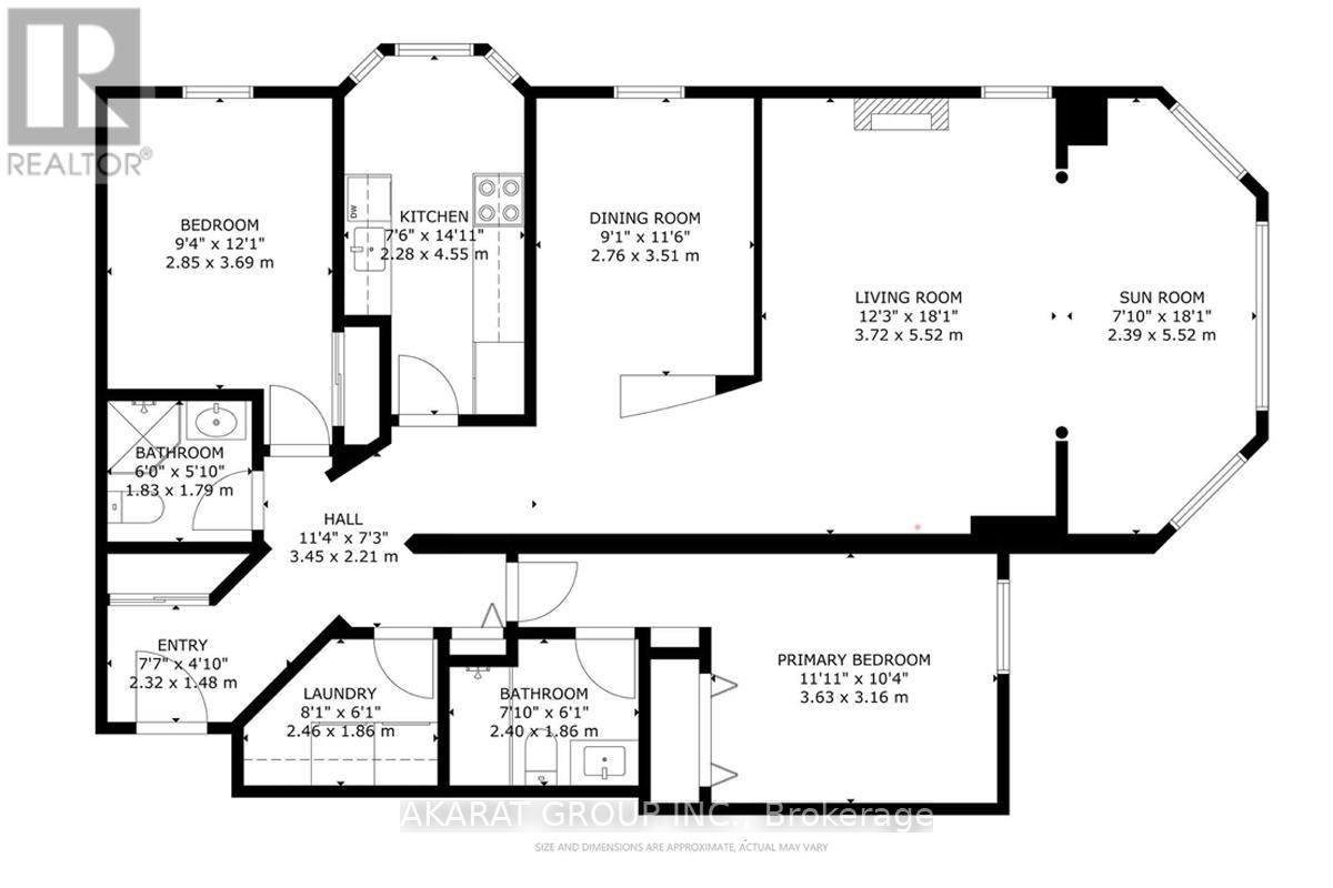
Pièces

MétriqueImpérial
Plat
Salon
Solarium
Salle à manger
Cuisine
Chambre principale
Salle de bain
Chambre à coucher
Salle de bain
Buanderie

Terrain

Caractéristiques du terrain
Vue
vue directe sur l'eau
Autres informations sur la propriété
Accès
Voie publique
Servitudes
Inconnu, Aucune
Caractéristiques du bord de l'eau
Bord de l'eau
Bord du lac
Eau de surface
lac/Étang
Données fournies par : Toronto Regional Real Estate Board
Souhaitez-vous visiter cette propriété?
Demander une visite

Inscriptions semblables

M. ABUSAA